非凡设计,誉满全球
联手“豪宅专家”
以见所未见的恢宏手
筑起传承时代的撼世钜作
风华南岸府公寓
(South Beach Residences)
万众期待的新加坡巨型豪宅项目

梦里寻她千百度
千呼万唤始出来!
尊贵、奢华、美景、文化、风格、价值以及无与伦比的整体构思就是风华南岸府的代名词!
风华南岸府的出现,颠覆顶级豪宅的想像,重新定义了跨时代生活的新标准!
风华南岸府不仅让您坐拥名人渴求的地区名片,更满足您对艺术性与独创性的完美追求!
未出茅庐已定三分天下,风华南岸府公寓未投入市场前便已获得多项房地产奖项,包括
2016年 亚太房地产大奖,新加坡好设计标志
2016年 度白金奖和绿色标志白金奖
2017年 FIABCI新加坡物业奖

世界顶级建筑师
精心的世纪之作
风华南岸府由世界顶级的建筑师们Foster + Partners、Aedas 精心设计与共同完成的世纪之作。
风华南岸府对建筑的整体有着严格的把控,善于在细节雕琢上下工夫,基于对理想情景的考究下,追求建筑的诗意,让贵族气息在建筑的冷静克制中优雅的散发出来,从气质上感染众生。
风华南岸府为追求高端生活并兼具极高审美品味的人士精雕细琢,以超越传统的空间尺度,打造荣耀全城的艺术宫殿。

此宅只应天上有
人间能得几回闻
奢华兼顾环保,正应了杜甫《赠花卿》那句“此宅只应天上有,人间能得几回闻。”
两栋银色超高层,搭配白金皇冠顶鹤立鸡群,融合巴黎官邸典雅华丽的法式风格和纽约曼哈顿区超高层建筑挺拔简洁的Art Deco外立面风格,形成前所未有的宏大气势。
高性能玻璃幕墙的使用,加上广阔的空中花园,有助于吸收热量并全天侯保持高水平的凉爽,减少了空调的使用。
此外,能源和节水配件以及绿色标签建筑材料的使用则实现了风华南岸项目作为新加坡最绿色发展之一的承诺。

风华南岸府还采用了先进的大面积“小型气候盖”整体设计的构思,这是环保设计的重要特征,涵盖了整个开放空间,将保护建筑物与两座高层建筑物以及地铁出口完美的连接起来。
动态的波浪形天篷设计更加强化了环保功能,它过滤和减少热量增加,加强通风流,遮挡雨水,最大限度地利用自然日光以减少人造照明,同时滤除太阳眩光并集成太阳能热能面板,利用热能发电。
一条行人“绿色轴线”从树冠下的循环脊柱通过几层分层的园景平台延伸出来,雨水将从建筑物中收集并用于园区的灌溉,提供广泛的绿化以减少城市热岛效应。

以王者之姿
尽享一城繁华
世界级经典豪宅,素来独揽绝版自然景观资源。风华南岸府独占稀缺一线海景,媲美法国塞纳河的黄金水岸线。
择居Beach Road 美之路第7区,拥有360度无敌全景,滨海湾、中央商业区风景线和乌节购物区尽收眼底,俯瞰著新加坡摩天观景轮,滨海艺术中心,滨海湾金沙等标志性地标。
居于万豪酒店顶部,可尽情享受新加坡一级方程式大奖赛和国庆节的烟花璀璨,让最为稀缺的新加坡全景在您的注视下完美相遇。
尊盛世繁华城央
享梦想居家之地
风华南岸府本身就是一个综合性发展项目,包括办公楼、设计型酒店、餐饮店面和会员制俱乐部。
45层高的南楼底下21层楼是有654间客房的高级酒店;
23至45层楼则是二到四房式的豪华公寓,其中包括六间顶层豪华公寓单位。

风华南岸府地处新加坡市中心位置,交通极为便利,公寓本身连接滨海中心地铁站(Esplanade MRT)和政府大厦地铁转换站(City Hall MRT),住户可以在滨海中心地铁站乘搭到地铁环线(MRT Circle Line)。
一流的地理位置同时连接着几个巨大购物中心,让您享受着一个又一个商场带来的购物愉悦,脚踏四通八达的地铁网,让您直达新加坡全国各地。
身处六星级般酒店的豪华居所,享受着无穷无尽尊贵皇族般奢华的高品质生活。
珍稀的城央资源
每刻都有不同惊喜
风华南岸府是由CDL(城市发展集团)和马来西亚IOI集团联合发展的大型综合项目,整个综合项目地段占地约34万5959平方米,是属于99年契。
风华南岸府提供190套豪华公寓,其中包括88套两卧室套房,61套三卧室套房,35套四卧室套房和6套顶楼复式单位套房。
公寓从23层开始到44层,6间复式单位在41层到45层,单位面积介于87平方米至625平方米。

古典的荣光
时代的激情
风华南岸府,对文化的珍爱、对艺术的纵容、对建筑空间极尽巧思的铺陈,始终如一。
这个时代,真正令人心动的奢侈,古典的荣光与时代的激情总是交相辉映。作为当代的艺术宫殿,风华南岸府从不墨守成规,每一种户型风格,是对传统致敬,更是对人性全新的理解和张扬。
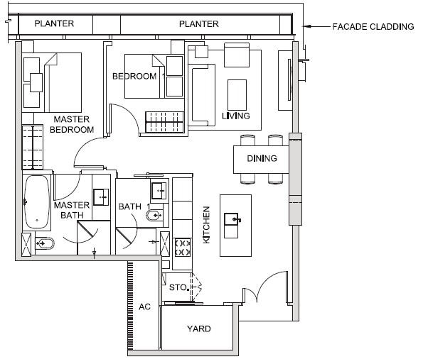
两卧室户型,套内面积87平方米起(936平方尺)

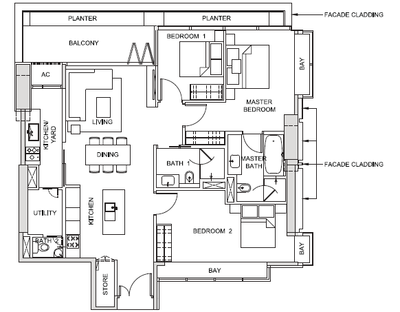
三卧室户型,套内面积149平方米起(1604平方尺)

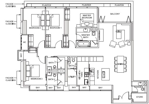
四卧室户型,套内面积208平方米起(2239平方尺)

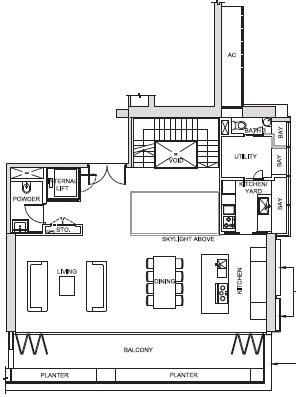
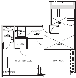
顶层阁楼户型分为3卧阁楼、4卧阁楼和5卧阁楼
下图为面积最小的3卧室阁楼,套内面积362平方米(3897平方尺)
底层Lower level

主层Main level

顶层Rooftop Deck
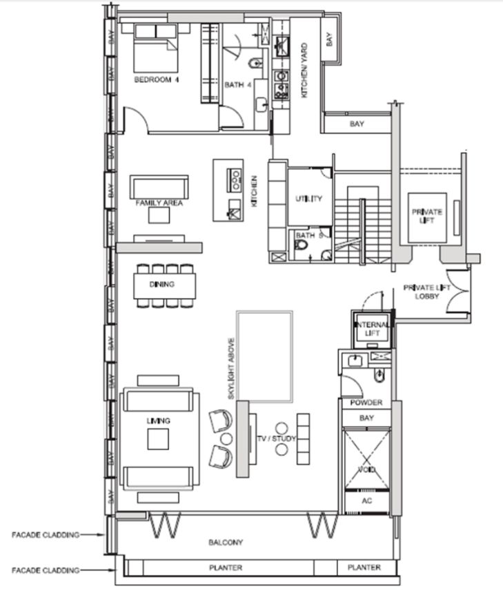
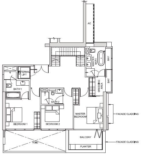
下图为面积最大的5卧室阁楼,套内面积625平方米(6728平方尺)。

主层Main level

屋顶层Rooftop Deck

自然的尊贵
巅峰的感受
空中花园上的享受源于前6世纪由新巴比伦王国的生活习惯,长久以来,这种奢侈只在皇室才能拥有。
如今风华南岸府的住户可以轻松的享受到由法国知名设计师菲利普·斯塔克设计的两个空中花园。
身处任何一个花园,景观与心情都可无限延伸,倚着白色栅栏看夜景,望天空,观蔚蓝的海水,让自己成为晚风中和谐的剪影。
风华南岸府还配备了22层和32层天梯的2层娱乐设施,包括一个小型游泳池,设备齐全的健身房,多功能厅等等,让您享受无与伦比的享受心和云在一个高度的巅峰境界。

私宅黄金地区
冠军头衔易位
提起让富人趋之若鹜的高档私宅区,买家往往会联想到的是乌节路和武吉知马为主的第9至11区。
然而,随着现代生活形态的改变,以及滨海湾和丹戎巴葛等新区的崛起,第9至11区传统黄金地区的霸主地位开始出现动摇。
根据《联合早报》报道,随着城市景观的不断变换,一些传统黄金地区的吸引力已渐渐消退。反观一些新崛起的地区吸引许多买家,房价高涨,足以媲美传统黄金地区。
例如在风华南岸府项目的推动下,第7区活力再现,第二季尺价同比上扬33%。
这样一个可以带动区域发展的黄金楼盘尺价仅为3200新币每平方尺起,投资总额从$370万新币起,风华南岸府-相信尊贵而又睿智的您一定不会错过这个从先锋到巅峰的宝贵机会!

若您对以上楼盘或者其他新加坡任何房产感兴趣,请免费联系我们的特约金牌房产经纪人吴洲,常年专业买卖全岛任何产业,开发商直接销售代理,买房无经纪费,一个电话或微信的距离,数十个楼盘数千款房产任您挑,总有一款适合您。投资新加坡房产,外国人也可贷款。
如果觉得我的文章对您有用,请随意打赏。你的支持将鼓励我继续创作!