新加坡西部当红楼盘心乐轩(Le Quest),又放出一批在售房源!是时候了解一下了。毕竟,之前讲了也没用,市面上没卖的。
2017年8月5日开盘当天,投放的280多套房源,几小时一抢而空~

排多长的队都不要紧,只要能抢到房!

现在,心乐轩最新一期房源放出,而且也是最后一期可售房源!

(心乐轩整体外观)
心乐轩是青建地产开发的综合体公寓,99年地契,位于新加坡西部的武吉巴督地区,预计2021年交房。

武吉巴督距离裕廊东只有一站地铁。以裕廊东为核心,是新加坡政府大力打造的第二个中央商业区及发展起来的休闲商务区。这里有新隆高铁终点站,世界级科学馆。还会修一个裕廊湖花园,这也是新加坡的第三个国家级公园。
在未来10年内,这里将会有翻天覆地的发展,再加上武吉巴督作为拥有十几万居民的大型市镇,已经十几年没有新公寓推出了。心乐轩可以说是集万千关注于一身。

而且,武吉巴督是一个成熟组屋区,有不少居民卖掉组屋,升级换公寓。有的人已经在一期、二期的时候抢到了,也有的人现在没有足够资金,将来打算买这里的二手房。
地理位置优越的学区房
学区房:
这附近有多所中小学,如伊丽莎白公主小学、裕廊小学、圣安东尼小学、克明小学、武吉巴督中学、德能中学、瑞士村中学、裕廊景中学、辅华中学等。

(加拿大国际学校)
国际学校方面,新加坡加拿大国际学校距离心乐轩大约2公里,德威国际学校也在附近。新加坡最知名的两所公立大学,新加坡国立大学和南洋理工大学也都离这里不远。到国大只需6站地铁,到南大车程约15分钟。
成熟商圈:
心乐轩附近有各种各样的购物商场和美食中心。如武吉巴督西购物商场、威城(West mall)。坐一站地铁就可以到裕廊东的Jcube、jem等大型商场,和IMM奥特莱斯打折店。这些商场里都有许多餐厅,而且因为武吉巴督组屋较多,所以随处可见小贩中心。

交通便利:
心乐轩距离武吉巴督市镇中心车程大约1.1公里,武吉巴督巴士转换站和地铁站也近在咫尺。在入住头两年,开发商将免费提供巴士服务到武吉巴督和裕廊东地铁站。在未来,还会建成裕廊区域线全程24公里,连接南北线和东西线。
(图片来源:陆路交通管理局)
对于驾车人士,15分钟车程便可去繁华的乌节路购物,到中央商业区也只需要16分钟车程。
万能综合体
作为一个商业+住宅的综合发展项目,心乐轩构建了一种便利和私密空间兼顾平衡的生活方式。

一层的零售商场(商铺只租不售)总面积超过6000平方米,目前确定的租户有职总平价精品超市(FairPrice Finest)和口福食阁等,将来会陆续有100家商户进驻!
商场内也将设有托儿所,心乐轩的屋主享有报名优先权。

智能家居
开发商青建集团在智能家居方面一直走在新加坡前沿。在心乐轩,智能家居的优势借助底商的便利,在O2O电商生活服务上表现得淋漓尽致。足不出户,就能完成了逛街、吃饭等多项活动。

青建的楼盘业主们都有“慧生活”手机APP。在手机上下订单,不用下楼,超市就直接送货到门口。在手机上直接点楼下食阁里的食物,外卖就送上来了。

小区设施满足各种需求
公寓设施包括50米标准泳池、家庭休闲泳池、网球场、居民俱乐部、健身房、烧烤凉亭、散步小径等等。

再也不用担心想打篮球、打麻将都找不到人,也可以通过“慧生活”手机APP约局!关键是,在公共区域都有免费WiFi,边烤肉边看电影妥妥滴~
多种户型可选
在商场上面的2至4层是停车场,再往上是五座12层楼公寓,共有516套房。最后一期放出多少待售房源,大家可以自行推算。

房型分为一卧房、二卧房、三卧房和四卧房单位,满足不同家庭需要。其中,一卧房的已经售罄,现在最后一期放出来的房源,是二卧房至四卧房的房型。
在大家都非常关心的价格方面,不同房型、朝向、楼层的价格都有差别,平均交易尺价为1400新元。
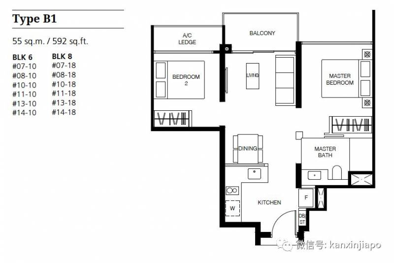
二卧房单位
面积:55平方米(592平方英尺)至66平方米(710平方英尺)

除了比较适合新婚夫妇或是家庭成员较少的普通两卧房单位,还有加了书房的两卧房单位,面积稍微大一些,给了大家更多处理空间的自由。

示范样板间:

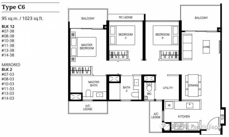
三卧房单位
面积:76平方米(818平方英尺)至112平方米(1206平方英尺)

三卧房单位的面积选择有很多,如果比较喜欢大房间,且经常在家里做饭的人家,可以选择面积比较大的户型。

示范样板间:
四卧房单位
面积:105平方米(1130平方英尺)至122平方米(1313平方英尺)

四卧房单位适合多代同堂的家庭,大家都可以有属于自己的私人空间,同时,客厅和餐厅面积较大,为一家人提供了足够的集体活动场所。
示范样板间:
售楼部地址:Bukit Batok West Avenue 8(在德威国际学校旁)
热线电话:6858 5777
如果觉得我的文章对您有用,请随意打赏。你的支持将鼓励我继续创作!