高档私人住宅正带领新加坡房地产市场复苏
随着新加坡股市走高,国际大环境好转,美国经济在复苏等,高档私宅市场明显好转。众所周知,高档私宅市场是带领房地产市场走势的,OUETwin Peak自从2016年重新推出市场以来,所有单位今年已经全部卖完,今年的格美华庭项目销售明显走高,剩余的单位也有限。另外一个高档项目雅茂园三号的单位最近全部卖完,有一套34楼单位以价格725万卖出,单价为新币$4157每平方英尺,另外一套32楼单位以价格新币710万卖出,单价为新币4077每平方英尺。接下来介绍的玛庭豪苑单价才27xx-28xx每平方英尺, 价格很有吸引力哦。相比世界第一高房价的香港,还有北京,上海,伦敦,纽约等大都市,新加坡豪宅市场处于价值低洼地,值得进场。
据新加坡商业时报Business Times报道,新加坡豪华公寓已经超过$4000/平方英尺的单价。

新加坡高档住宅比其他国际大都市有吸引力

新加坡作为全球化国际大都市,具有良好的经济基本面,新加坡稳定的政府、宜居的环境、社会治安好、稳定的货币、优质的双语教育、食品健康安全、适合小孩成长、完善的医疗体制、回中国只需4-5小时、可靠的法律框架和低税收等等,所以新加坡的高档住宅市场吸引很多投资者,很多国外的有实力高净知产人士纷纷选择买房定居新加坡。
如果和香港,伦敦,纽约,东京,上海,北京等投资者关注的高档住宅市场,2007年香港的高档住宅价格比新加坡贵41%,但到2016年这差距已经拉大到165%。
在2007~2008年金融危机以前,2007年,伦敦的高档住宅价格高出新加坡70%,由于英镑转弱,2010年,差距缩短到34%。不过再过去几年,伦敦的高档住宅市场高涨,而同时间,新加坡的政府连续多轮的降温措施,导致新加坡高档市场疲软,使得两者价格又拉大到92%,伦敦高档市场比新加坡贵92%。
纽约方面,2008年其高档私宅价格比新加坡高48%,但金融危机使得美国经济衰退,使得纽约的高档私宅下跌,2011年稍微低于新加坡。近些年来,纽约私宅市场逐步复苏,其高档私宅价格又领先新加坡,高出80%以上. (引用早报新闻)
随着中国经济这些年不断发展,已经成为世界第二经济实体,产生了大批制造业企业家,民营企业家,科技业企业家,金融,制造行业老板或者行业高管等,很多公司上市使得一些老板和高管们一夜暴富,而且我们中国人的喜欢买房,高档豪宅项目属于稀缺产品,高档豪宅自然就成为富人眼中的香饽饽,所以豪宅价格自然水涨船高,有实力的高资产人士首选购买豪宅,使得上海,北京,深圳的高档市场的价格高居不下,现在上海和北京,深圳的豪宅市场明显高于新加坡不少。
以上分析,显得新加坡的高档私宅市场有他的投资价值所在,如同股神巴菲特说的,投资一定要看股票的价值和基本面,同理,投资或者购买房产也是如此,关注价值和基本面.
以上用国际视野的眼光分析了全球的高档私宅市场,下面来重点介绍一个高档私宅项目
玛庭豪苑是由专做高档项目的国浩房地产(Guocoland)打造,国浩房地产里面绝对有豪宅的基因/DNA,项目位于新加坡最具盛名的顶级豪宅区-第9邮区,位于马丁广场和里峇峇利之间,总占地面积接近16000平方米,在寸土寸金的第9邮区绝对属于面积大的地块,开发商计划打造450个单位,分为南,北楼2栋30层单位,包括五种户型,有2房到4房不等,连2房的户型面积71平方米/764平方英尺,最大的4卧房单位面积高达167平方米/1798平方英尺,户型面积比一般新项目同户型面积都大,住起来绝对爽,爽,爽!重要事情说三遍,离地面挑高10米,让您的房子有居高临下的感觉哦。
参考价格:2房估计197.6万新币起,2+书房价格需问,3房317.3万起,大3房387.5万起,4房475.5万新币起 (以看房时价格为准)

豪宅项目领导者,豪宅DNA
先来聊聊玛庭豪苑的开发商国浩房地产(GuocoLand),国浩房地产一直坚持“以人为本”,打造独一无二现代化高品质的住宅,着重于开发高档住宅项目为主,在业界拥有良好的口碑,还有一批忠实的粉丝哦。项目设计以大户型为主,很受豪宅客户欢迎,近几年有两个非常成功的高端项目优景苑(Goodwood Residences)和丽敦豪邸(Leedon Residence),这两个项目分别荣获2014和2015,2016年新加坡最畅销豪宅项目,新加坡最高建筑—丹戎巴葛中心也是由国浩房地产打造,楼高65层,坐落于新加坡中央商业区CBD。这些项目诠释理性.高贵而细腻的生活方式,充分彰显精致.优雅的现代奢华感.


来聊聊项目的建筑设计师
四次新加坡总统设计奖获得者-叶润康(Yip Yuen Hong),将玛庭豪苑打造如此独一无二.闹市中的世外桃源.园林景观设计由著名ICN design设计国际公司操刀, 意在打造以人为本,舒适休闲的生活空间, 国浩房地产打造舒适的空间给每一位业主,我们意在给每个住这里的业主愿意走出房子来享受园林配套设施.还有新加坡当地著名的建筑设计公司ADDP Architects LLP, 打造很多不同的住宅项目,商业地产等,设计经验丰富,也是我喜欢的建筑设计公司之一。下图为“三剑客”-三位著名的建筑设计师和园林设计师.

小植物园,绿意盎然
超过80%的土地会设计成一个独特的植物园林,种植超过200多种独特的植物和50个品种树木分布于15种不同的特色主题园林,很多都是稀有的品种,有些树种可以长到高达30米。包括聚会草坪,森林小径,和雨水花园,水阁庭院,迎宾阁,竹林,迷宫,以及顶层还有2个秘密花园为主题。绿意与流水交融,营造出一个独一无二的第9区豪宅。整个项目的感觉就是,虽然玛庭豪苑位于都市中心,可是通过大门和走廊,就会感觉进入了一个安静迷人的世外园林,让您在每天忙碌工作后,感觉从繁华都市来到度假庄园,回家享受与自然为伴的生活惬意!

地点方面
位于马丁广场和里峇峇利弄之间,靠近2020年开通的大世界地铁站/GreatWorld MRT,步行距离到福康宁地铁站/Fort Canning MRT,如果您想区著名的福康宁公寓散步的话,15分钟步行距离就可以到达,等汤申地铁线开通后,只需一站地铁就可到乌节路。濒临乌节路购物街,总统府,克拉码头国会大厦,金沙赌场,滨海湾商业区等新加坡核心地段。总所周知,李嘉诚曾经说过,买房最重要的考量因素地点,地点还是地点。

全世界最受欢迎的购物街之一,乌节路购物街近在咫尺,世界上知名的服饰品牌,皮包品牌,手表品牌,香水品牌等,这里都可以买得到,商场如[email protected],威士玛,TangPlaza,义安城等。
如果您爱好社交或者对会所Club文化着迷的话,可以享受附近的美国俱乐部/American Club,东陵俱乐部/TanglinClub等。只需不到5分钟就可以驾车前往中央商业区CBD,可以携带家人小孩一起去滨海湾花园/Garden by the Bay散步,品尝烧烤,海鲜美食,享受美好生活!

教育方面
周围有一公里内有名校RiverValley Primary School/立化小学,比如政府的新加坡管理大学SMU(Singapore Management University),新加坡艺术大学SOTA(School of the Arts Singapore)等,国际学校包括ChatsworthInternational School,ISS国际学校,伊顿国际学校,瑞典国际学校SwedishSupplementary School, 挪威Norwegian Supplementary School等,幼儿园方便有新加坡著名的私立幼儿园伊顿幼儿园Eton House.从幼儿园到大学,国际学校,全面满足您的小孩教育方面需求.

项目周围是新加坡三大码头之一
分别是罗波申码头、克拉码头,船港码头,是新加坡当地人和外国人很喜欢去的夜生活场所。聚集世界各地有特色的餐馆,酒吧,咖啡馆,特色美食,大小型酒店等.喜欢夜生活的朋友,可以去克拉码头喝点小酒,泡泡酒吧/PUB,或乘坐浪漫的新加坡河水上游船,释放生活压力!在一饱口福的同时,有机会欣赏靓丽迷人夜景,无论是消磨午后的闲暇时光,还是体验刺激的夜生活,这里绝对是平时放心释放压力的好去处.

诠释极致生活体验
在玛庭豪苑项目,每一寸空间都经过精心设计,注重每一个细节设计,土耳其大理石铺设的卫生间、甚至阳台都用大理石、智能家居系统、酒店式礼宾服务,全部使用国际一线品牌,让您使用起来放心,省心! 如德国Miele美诺厨具,烤箱,Vintec酒柜,Laufen劳芬卫浴, 意大利SMEG斯麦格大冰箱,AXOR雅生水龙头,洗脸盆,秉持顶级的工艺和设计,发展商只为有品位的您打造高品质的房子给您安心入住,将玛庭豪苑的居住体验推到极致。

小区会所是建成下图这样子的,有没有住在植物园的感觉哦,呵呵…



聊完项目大体介绍,杰克君来聊聊这两年开发商标地价格,方便您对市场有更好的了解。
来分析一下2017年政府土地销售情况,东海岸的Amber Park被集体收购价地价为$1515每平方英尺,地处第15邮区,而玛庭豪苑的土地价格为$1228/每平方英尺,地处尊贵的第9邮区,有对比就有发现。
2017-2018年房产集体收购(Enbloc)的热潮,靠近巴特立地铁(实龙岗一带)的Sun Rosier集体出售成功,地价高达$1325每平方英尺,居然比玛庭豪苑地价还高.玛庭豪苑隔壁的太平洋公寓以地价$1806每平方英尺集体收购。Parkhouse公寓在今年4月以地价$2387每平方英尺集体出售成功。由于购买土地成本上涨,地价整体上涨幅度约30%,开盘价格自然上涨,建议想买房的朋友,最好是尽快入场。
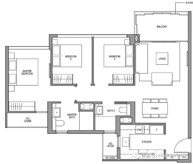
户型点评:高效和实用的豪宅户型设计,经典的户型2+S,优质三房和豪华四房户型设计。
2卧室,73平方米,开放式厨房,每个房间可以放双人床,价格$208万起,多5%优惠价格199.3万起

2卧室+书房户型,81平方米,每个房间可放双人床,喜欢烹饪的朋友最爱的封闭式厨房,户型方正,连书房可以挺容易放下单人床,价格236万新币起
3卧室标准型,1087平方米/1012平方英尺,户型方正,方便家私摆设,每个房间够大,可以放置双人床,设计做到房子得到充分利用,没浪费面积!价格317.3万起

3卧室标准型,101平方米/1087平方英尺,户型方正,方便家私摆设,每个房间够大,可以放置双人床,设计做到房子得到充分利用,没浪费面积!价格317.3万起

3卧室豪华型,132平方米/1432平方英尺,自带私人电梯,尽显尊贵,厨房分为干湿两部分,宽敞的客厅.除了大主人房,左侧还有小主人房哦。价格379.6万起
4卧室豪华型D1, 161平方米/1733平方英尺,自带私人电梯直接入户,舒适的主卧卫生间带浴缸,厨房为干,湿两部分,3个房间在右侧,另外一个小主人房在房子的左侧(自带浴室),如果碰上有亲戚朋友过来玩,可以灵活安排小主人房当客房用哦.价格为462.4万新币起

4卧室豪华型D2,167平方米/1798平方英尺,自带私人电梯直接入户,宽敞的客厅和主阳台朝向滨海湾,舒适的主卧卫生间带浴缸,厨房为干,湿两部分,3个房间在右侧,另外一个小主人房在房子的左侧(自带浴室),如果碰上有亲戚朋友过来玩,可以灵活安排小主人房当客房用哦.价格为500.6万新币起

漂亮样板房照片:
需要到现场看房才可以看出房子的豪华感,全部使用高品质的好材料,专为高档豪宅项目打造哦
客厅,看起来真敞亮,大气




超大主人房,放King床随意放,任性…
连普通房房间都够大,绝对符合“高档”项目的标准

连卫生间看起来都奢华

开车进入公寓小区入口是这样的

想主办生日趴,聚会的大草坪,够档次吧!

标准奥林比克50米长,雅致的游泳池


微信号:297264931
作者个人简历:
2002年拿新加坡政府奖学金来新加坡深造,已经定居新加坡15年多,熟悉中国和新加坡的国情,现任职于新加坡股票交易所SGX上市企业,新加坡最大的地产公司之一ERA地产公司担任高级营销总监,从事房屋经纪行业8年多,已经完成数百宗房地产交易,成交的房屋价值高达新币上亿元,服务过数百位中高档客户,广受客户们好评。包括企业家,企业高管,中小型公司老板,房地产发展商,新移民,教授,医生等等。
熟悉私人公寓,商业地产,组屋的交易流程,全面了解房屋贷款,协助顾客办理好贷款,律师办理房产相关手续等,提供新加坡任何公寓楼盘和商业地产买卖投资服务,买私宅无任何经纪费用。
感谢各位客户朋友的支持,本人在公司多次获得顶级销售奖,提供诚意十足,细心周到的为客户服务,所以收到客户们的广泛好评,服务好任何客户是我的最重要原则,欢迎买家或卖家联系我

发帖时间: 新加坡通
如果觉得我的文章对您有用,请随意打赏。你的支持将鼓励我继续创作!