The Tre Ver私人公寓位于新加坡第D13邮区波东巴西大道1号(Potong Pasir Ave 1),步行10分钟即可抵达波东巴西地铁站。
公寓占地约18,711平方米,拥有99年地契,将建造3栋20层和4栋7层楼高的住宅,合729个单元,包括159个一卧室、381个两卧室、162个三卧室和27个四卧室,单位面积45-128平方米。
公寓由著名发展商华业集团和联合工业公司(UOL and United Industrial Corporation)开发,由WOHA建筑师设计。
公寓西边是加冷河畔,独享200米河川和热带雨林,东边是比达达利,均是政府大力发展的地段,未来发展前景无量,四周的房产具有巨大的增值潜能。
The Tre Ver公寓从树木和河流中汲取灵感,建筑师设计了一系列塔楼,充分利用河流的景色和花园裙楼,享有度假风格的景观,打造真正的会呼吸的建筑。
82%的住户可以欣赏泳池或河畔景观,24个单元可以享用绿色露台(Green terrace),260个住户可以有绿色门厅(Green foyer),享受更新鲜的空气,更好的景观和气候条件。
前言
如果您翻开新加坡地图,就会发现波东巴西(Potong Pasir)这块宝地,属于新加坡的中部地区,位于新加坡的心脏地带。
100年前,这里是著名的采沙场,供应当时建筑所需的沙石,“Potong Pasir”就是马来文“割沙”的意思。
到了上世纪50年代,波东巴西成了新加坡的一个最重要的蔬菜种植区。
建国以来,波东巴西发生天翻地覆的变化,政府不但修建河道、改善排水系统、搭建桥梁,也大量兴建组屋、购物中心、设立民众俱乐部、教育机构等,极大改善了波东巴西居民的生活。
其中的组屋是建屋局(HDB)规划开发的。
但一些人可能不太清楚,建屋局在早期也建造中等入息公寓(Housing and Urban Development Company,HUDC)。
这类公寓建于上世纪七八十年代,消费群主要为本地的中产阶级公民,1987年后就停建了。
这类公寓的最大特点就是每个单元的建筑面积特别大,整个小区的面积也特别大。
由于这类公寓现在都至少有40年的历史,整体重建已提上议事日程。
许多发展商因其土地面积大,整体重建后可以建造至少双倍的单元,而对这类公寓感兴趣。
目前已有不少中等入息公寓获得整体重建。
位于波东巴西中等入息公寓Raintree Gardens,建于1980年代末,由两栋12层楼高和一栋7层楼高共3栋建筑组成,合175个单元。
该公寓在2016年以集体收购方式招标中,新加坡发展商华业集团(UOL Group)和联合工业公司(United Industrial Corporation)成功联合夺标。
新建公寓取名The Tre Ver,已火爆开盘,正在热销中,下面为您介绍这栋崭新的公寓。
楼盘优势卖点分析
具备5星级楼盘的特点
位于新加坡中部心脏地带,交通方便,四通八达;
提供1-4卧室合729个单元,选择多样化;
附近购物商场林立,拥有大量的休闲、娱乐设施;一栋有历史的建筑,见证过去,展望未来;
公寓西边是加冷河畔,独享200米河川和热带雨林,东边是比达达利,均是政府大力发展的地段,未来发展前景无量,四周的房产具有巨大的增值潜能。
属河畔公寓,临水而居,波光粼粼,聚财气、享生活;
四周树木林立,绿意盎然,静享繁华,如诗如画;
由著名发展商开发,享有盛誉的建筑师设计;
公寓设施齐全,室内装饰豪华,注重高品位;
附近名校林立,也靠近著名的国际学校,新加坡史丹福美国学校。

楼盘概况
The Tre Ver私人公寓位于新加坡第D13邮区波东巴西大道1号(Potong Pasir Ave 1),距离波东巴西地铁站约800米。
紧邻加冷河畔,占地约18,711平方米,拥有99年地契。
公寓由著名发展商华业集团和联合工业公司(UOLand United Industrial Corporation)开发,由WOHA建筑师设计。
The Tre Ver公寓将建造3栋20层和4栋7层楼高的住宅,合729个单元,包括159个一卧室、381个两卧室、162个三卧室和27个四卧室,单位面积45-128平方米。
The Tre Ver公寓由享有盛誉的发展商开发和由出类拔萃的建筑师设计!
华业集团创建于1963年,是新加坡乃至全球富有声誉的房地产发展商之一,业迹跨越亚洲、北美和大洋洲,从事精品公寓、写字楼、购物中心、五星级酒店等核心业务。
泛太平洋(PanPacific)和宾乐雅(PARKROYAL)是华业集团旗下的两个知名品牌。
新加玻华业集团管理及经营超过30个酒店和服务式公寓,遍布亚洲、澳大利亚与北美,如在中国拥有厦门泛太平洋大酒店和苏州吴宫泛太平洋酒店两家5星级酒店。
创立55年来,华业集团一直严以律己,在国内外荣获众多奖项。
如Brand Finance - Top 100 Singapore Brands (2014-2018)、BCI Asia Top 10 Developer Awards (Singapore,2012, 2013, 2015)、South East Asia Property Awards (2012、2015)、Singapore HEALTH Award 2014 – Bronze (2014)和Hermes Creative Awards 2013等。
在新加坡,华业集团的业绩遍布全岛,如在建的私人公寓项目就有Botanique Bartley、Principal Garden、The Clement Canopy、和Amber45等。
华业集团致力于创造价值,塑造未来;渴求智慧、自我更新,竭力为人们的生活、工作和娱乐塑造世界一流的环境。
集团追求目标,鼓舞人心,共同努力实现利益相关者的愿望。
华业集团深刻了解客户的需求,努力提供超出预期的产品和服务,致力于在所有工作中发挥积极影响。
WOHA建筑事务所由黄文森(Wong Mun Summ)与哈赛尔(Richard Hassell)两位合伙人于1994年成立,是新加坡最富国际名声的建筑师事务所之一,获奖无数。
如2018年世界高层建筑与都市人居学会(简称CTBUH)将全球最佳高层建筑大奖的荣誉颁发给由 WOHA 设计的新加坡市中心绿洲酒店(Oasia Hotel Downtown)。
皮克林宾乐雅酒店荣获新加坡总统设计奖(Singapore President’s Design Award 2013)、FIABCI Prix d’Excellence 2014和World Gold Winner、MIPIM Asia Awards 2015 Gold Award。
公寓设计方面,1 Moulmein Rise公寓荣获Aga Khan Award 2007 Award for Architecture、Singapore President’s Design Award 2007 Design of the Year和FIABCI Prix d’Excellence 2005 Winner –Residential Category。Newton Suites公寓获得Urban Land Institute (ULI) Awards for Excellence 2010 Asia Pacific –Winner、FIABCI Prix d’Excellence2009 Residential Category –1stRunner-up和Green GOOD Design Award 2009 Winner。
WOHA的设计将现代感、地域和环境有机融合,强调独特的地域特色。
WOHA认为,每一栋建筑都是独特的,设计中应当包含这个独特个性,并将每一个设计与当地的地理、文化、历史、自然环境、气候、社会、绿化及可持续性融为一体。
WOHA建筑事务所致力于在城市中进行超密度设计,将建筑场所的地域特征与气候条件、空间规划有机结合,选择最适合材质,建造环保绿色、可持续性的宜居建筑。

The Tre Ver公寓位于加冷河畔,有河有树,环境幽静,郁郁葱葱
位于The Tre Ver公寓旁边的加冷河流经碧山----宏茂桥公园,连接新加坡中部。
今天,加冷河已成为一个生活方式中心、休闲节点和自行车道,连接到市中心,这让The Tre Ver公寓成为一个方便的居住地。
长达220米的河流正面流经该地段,是世界上少有的拥有这么长河流的河畔公寓,可谓临水而居,波光粼粼,聚财气、享生活。
这是一个家庭的私人庇护所,具有共同的社区意识,人与自然和谐共存,在河边种植壮丽的雨林为背景,是河滨生活的最佳表现。
丰富的景观,郁郁葱葱的绿色植物,交织成自然的社交空间,成为创造生命、享受生活最珍贵的居所,也是学习、成长、生活和休闲的最佳场所。
The Tre Ver公寓从树木和河流中汲取灵感,WOHA设计了一系列塔楼,可以充分利用河流的景色和花园裙楼,公寓享有度假风格的景观,瀑布朝向蜿蜒的河流,这是'呼吸建筑'的具体体现。

The Tre Ver公寓享尽附近的便利、娱乐设施和教育资源
从The Tre Ver公寓步行约10分钟即可抵达东北线的波东巴西地铁站(Potong Pasir MRT)。
该地铁站距离多美歌地铁站 (Dhoby Ghaut MRT)只有4个站,还可轻易转换到小印度地铁转换站(Little India)和地铁环线(实龙岗地铁站)。
公寓100米范围内还有公交车站,转乘至全岛各地。驾车人士更是有福了。
The Tre Ver公寓位于新加坡的中心地段,可轻易连接到主要高速公路如中央高速公路(CTE)和泛岛高速公路(PIE),由此抵达新加坡的任何角落。
驾车人士只需10分钟车程就能到达中央商业区、滨海湾金融中心、乌节路等,真正享受交通便利。
The Tre Ver公寓不但交通方便,附近的购物、休闲、娱乐设施也相当丰富!
附近有NTUC平价超市、巨人超市,稍远一点还有Cold Storage和晟菘超市等。
波东巴西地铁站旁的博雅中心(The Poiz Centre)占地约5万平方英尺,拥有84个零售摊位。
NEX商场位于实龙岗地铁站(Serangoon MRT)附近,距离The Tre Ver公寓只有2个地铁站的距离。
NEX商场是新加坡东北区的大型商场,那里有非常多商铺、餐厅、电影院和24小时的超市,是购物、娱乐、休闲和用餐的好去处。
距离公寓最近的熟食中心是大巴窑7巷大牌22熟食中心,稍远一点的熟食中心还有大巴窑4巷的大牌93和72熟食中心、大巴窑5巷熟食中心以及芽笼峇鲁大牌69熟食中心等。
The Tre Ver公寓附近的教育资源也非常丰富!
公寓四周1公里范围内的幼儿园就有4家。
一公里范围内的中小学有圣安德鲁小学(St Andrew’s Junior School)和圣安德鲁中学(St Andrew’s Secondary School)。
稍远一点的中小学还包括公立培群学校(Pei Chun Public School)、大智小学(First Toa Payoh Primary School)、四德小学(Cedar Primary School)、圣加俾尔小学(St. Gabriel’s Primary School)、圣加俾尔中学(St. Gabriel’s Secondary School)、养正小学(Yangzheng Primary School)、海星小学(Maris Stella High School (Primary))、海星中学(Maris Stella High School (Secondary))、明智小学(Bendemeer Primary School)、明智中学(Bendemeer Secondary School)、宏文学校(Hong Wen School)、四德女子中学(Cedar Girls’ Secondary School)等。
此外,公寓距离史丹福美国国际学校(Stanford Ameirican International school, SAIS)只有400米之遥,这个学校是许多家长特别是来自中国的家长较感兴趣的国际学校。
该国际学校成立于2009年,位于兀里地铁站附近,占地5万3000平方米,耗资3亿美元打造,拥有超现代化的教学设施,为2-18岁的学生提供北美体制教育和国际文凭课程(IB)。
学校教师来自10多个国家,拥有丰富的教学经验,并获得相应的教学资格。
该校的国际学生中,有62%的学生拥有美国国籍。
学生包括驻新外交使节、跨国公司高管或社会知名人士的子女。
香港著名影星张柏芝的两个儿子就在此校就读。
该校采用大学预修课程(AP)计划,并得到美国大学西区联盟(WASC)的认可,是新加坡唯一一所设有SAT和ACT考试中心的学校,专业的学术和大学咨询团队熟悉世界各地大学的需求。
学校包括学前班(18个月至6岁)、小学(6-11岁)、中学和大学预科(11-18岁)。学费因所学学段和课程而有不同,介于每年新币S$15,000-40,000。
The Tre Ver是新加坡的“4G”公寓,增值潜能无量
The Tre Ver公寓位于新加坡中部(Great location),发展潜力巨大(Growth area),注重绿色和可持续发展(Green and sustainable product),是一个双赢项目(Gain on gain),所以是一个典型的“4G”公寓。
前面我们已经介绍了第一个“G”(Great location):近地铁、购物休闲娱乐和教育资源丰富、公寓独享200米河川和热带雨林。
第二个“G”就是指公寓附近发展潜力巨大。
公寓位于加冷河畔,加冷河是新加坡最长的河流,在新加坡政府“ABC”(Active,Beautiful和Clean,即活力、美丽和洁净)计划下,已改造成绿色、可持续的生态河道。
孩子们可以在清澈的水边嬉戏、玩耍,大人们可以在河畔休闲、运动。现在的加冷河沿岸也新建了许多组屋和公园。
河畔两公里范围内,目前已有约80万居民,未来20年,加冷河地段还可兴建10万多个住宅单位。
一些原有的工业区,将重新开发成濒水住宅,有些将转型为综合用途,结合未来经济发展,建造更加舒适的工作生活新环境,为这一区注入新活力,为房产保值提供保障。
公寓的东边就是比达达利(Bidadari)新镇。
比达达利新镇将建造1万多套住宅单元,其中91%为组屋,其余9%为私人住宅。
这样,这里的公寓比例将比其它住宅区低,也因而显得更具特色并具有更大的增值空间。
比达达利新镇的建造,结合人文、地理、历史和现代新兴技术,旨在打造一个有文化底蕴、历史背景、绿色环保的现代化城镇。
比达达利新镇将是一个充满绿意的家园,一条宽敞(20米)的绿色长廊将横贯整个新镇,连接巴特礼路与实龙岗路上段,把绿意带到新镇各个角落。
第三个“G”就是注重绿色和可持续发展,这是公寓本身的设计所然。
公寓结合了香格里拉和皮克林宾乐雅酒店的优点,附近有河有树,环境幽静,郁郁葱葱;公寓提供大量设施和社区空间;
公寓还建造公园,每栋楼之间享有足够空间;
公寓还拥有空中梯田(Sky Terraces)和绿色门廊(Green Foyer)。
正如设计师WOHA的掌门人所言,良好的设计改善了环境和我们的生活质量,通过引入创新、可持续和绿色的解决方案来创造有呼吸功能的宜居城市,在高密度建筑环境中提供互动空间和社区建设,解决气候和城市问题。
最后让我们讨论一下第四个“G”,一个双赢项目(Gain on gain)。
第一个双赢是:宁静的环境+良好的地段=两全其美;
第二个双赢是:令人惊叹的+可持续的建筑=独一无二的公寓;
第三个双赢是:清新空气与阳光明媚+迷人景色=健康生活;
第四个双赢是:生态降温与低能耗=可持续发展+机遇处处。
可以说,这是新加坡第一个“4G”公寓,一个绿色、环保、节能、宁静、便利、舒适、高雅、美观的现代化公寓。


The Tre Ver公寓价格优势明显,发展商还提供购房优惠券
The Tre Ver公寓地处新加坡中部地区,西边是加冷河,东边是比达达利,均是政府大力发展的地段,未来发展前景无量,四周的房产自然具有巨大的增值潜能。
与The Tre Ver公寓比邻且都是正在开发的新公寓项目还有两个,一个是Park Colonial,另一个是Woodleigh Residences。
Park Colonial的土地售价是每平方尺容积率S$1100(psfppr),Woodleigh Residences的更高,达S$1181(psfppr)。
Park Colonial公寓拥有805个1-5卧室私宅单元,已在降温措施推出前一晚开盘,目前售出过半,平均尺价达S$1,730。
Woodleigh Residences公寓还未推出,因其土地价格psfppr更高,其售价必定更高,据估计,每平方尺将达S$2,000。
相比较而言,The Tre Ver公寓的每平方尺容积率psfppr只有S$815,其售价已显著低于Park Colonial公寓。
另一个好消息是发展商可能对部分买家提供优惠折扣,金额分别是:1卧室S$8,000,2卧室S$12,000,3卧室S$15,000,4卧室S$20,000。

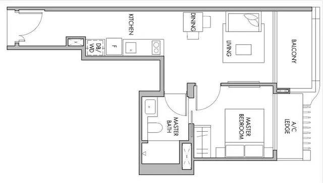
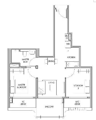
户型设计与雅居欣赏
The Tre Ver公寓由著名设计师设计,注重生态平衡、注重人与自然的和谐、注重可持续发展、注重舒适便利的生活设施与空间。
公寓的第二、三和八层均用作设施建设,为居民提供50多个休闲、娱乐、健身设施。
有17.6%的单元可享受花园景观,34.8%可欣赏泳池景观,47.6%可欣赏河畔景观。
其中有31%的单元可以同时享受河畔和泳池景观。
总体而言,82%的住户可以欣赏泳池或河畔景观。
有24个单元可以享用绿色露台(Green terrace),260个住户可以有绿色门厅(Green foyer),享受更新鲜的空气,更好的景观和气候条件。


一卧室,合159套,套内面积45平方米(484平方尺)至47平方米(506平方尺),整套售价从S$738,000元起(每尺S$1,459)。
特点是户型方方正正,布局合理,采用开放式厨房,无浪费空间。
一卧室户型非常适合夫妻情侣享受二人世界,以及专业人士和学生也适合相应的出租人士。

二卧室,合381套,套内面积57平方米(614平方尺)至74平方米(797平方尺),整套售价从S$908,000元起(每尺S$1,479)。
一进门有一个缓冲间,采用开放式厨房,户型方方正正,布局合理,无浪费空间。
两个房间均可放置双人床,客厅还配备阳台。
适合有一个孩子的夫妇,以及专业人士和学生。除了自住,也适合出租给高端专业人士。
三卧室,合162套,套内面积92平方米(990平方尺)至102平方米(1098平方尺),整套售价从S$1,538,000元起(每尺S$1,520)。
许多三卧室均有绿色门厅(Green foyer),户型方方正正,布局合理,干湿厨房分开,并有储物间。
三个房间均可放置双人床,主人房和客厅均配备阳台。
这样的户型非常适合有二个孩子的夫妇,或与父母同住。
除了自住,也适合出租给高端专业人士。

四卧室,合27套,套内面积123平方米(1324平方尺)至131平方米(1410平方尺),整套售价从S$2,080,000元起(每尺S$1,558)。
许多单元可以享用绿色露台(Green terrace),户型方正,布局合理,干湿厨房分开,并有储物间。
四个房间均可放置双人床,主人房、客厅及其中一间普通房配备阳台。
这样的户型非常适合有三个孩子的大家庭,或与父母同住,也适合出租给相应的专业人士及家庭。

小结
结合新加坡目前经济发展的基本面良好的事实,这里介绍的The Tre Ver公寓是新加坡第一个“4G”公寓,一个绿色、环保、节能、宁静、便利、舒适、高雅、美观的现代化公寓。
公寓位于新加坡中部地区,西边是加冷河,东边是比达达利,均是政府大力发展的地段,未来发展前景无量,四周的房产自然具有巨大的增值潜能。
The Tre Ver公寓的前身是中等入息公寓,地皮收购价位较低,售价也较低,因而有价格优势,增值潜能更大。
该公寓刚刚开盘,销售良好,欢迎垂询,期待客户的光临。
如果觉得我的文章对您有用,请随意打赏。你的支持将鼓励我继续创作!