萝卜点评,万事通说房事!
过去的萝卜点评系列,主要介绍的是新加坡公寓住宅。
今天咱们聊聊不一样的:新加坡的商业类房产。
商业类房产和住宅类房产,这两个类别的游戏规则很不一样。
住宅房产:包括组屋,公寓,有地住宅,是每家每户都有需求的类别,对社会稳定的影响力巨大。
新加坡政府对住宅市场非常关注,制定了非常多的规则,来限制住宅类房产过冷过热。
今年七月的楼市降温政策,是针对住宅类房产的。
降温政策的思路很清晰:
本地人购买二套房,或者外国人购买首套房,额外买家印花税(ABSD)增加5%。
• 本地人首套房不受影响
• 本地公民二套房,征收12%的额外买家印花税。
• 永久居民二套房,征收15%的额外买家印花税。
• 外国人首套房,征收20%的额外买家印花税。

萝卜一句话总结:
鼓励自住性质买房,不鼓励炒房。

国内两三年房价起五成的快炒法,新加坡这儿行不通。
但是不鼓励炒住宅楼,并不意味着,新加坡房产投资的渠道就此关闭了。
事实上,对于商业类房产投资,新加坡的政策向来是敞开大门的。
只是很多投资者对这方面不够了解。
新加坡的商业类房产,包括办公楼,商铺店面,医疗中心,工厂,酒店等众多类别,主要针对成熟的房产投资者,由市场自主决定供需,政府没有过多的限制。

体现在税率征收方面,所有商业类房产没有额外买家印花税(ABSD)。
只有工业房产征收卖家印花税(SSD),其他商业房产类型不征收卖家印花税(SSD) 。
商业类房产买卖,没有买家身份限制。
根据10月份最新的报道,新加坡办公楼租金市场,已经连续六季度平稳上涨,总共涨幅18%。

新闻来源自10月2日《联合早报》
在住宅投资被ABSD税率限制的局面下,新加坡办公楼租金市场平稳复苏,投资的优势更加凸显。
今天介绍的商业类房产,就是位于繁华市区的一处商业写字楼混合项目。
三个关键词:永久地契;市区近地铁;价位合理。
缺一不可。
办公楼单位面积在570平方尺-1012平方尺之间,起售价位146万6千新币。
下面的文章篇幅里,我会全方面介绍这个商业写字楼的项目细节,以供参考。
首先介绍一下项目名称:
CENTRIUM SQUARE

Centrium Square的地点在花拉公园地铁站 (Farrer Park) 对面,仅仅200米距离,3分钟步行可达。
花拉公园区域,位于新加坡的中南部腹地。从这个位置,只需两站地铁到多美歌市区,三站地铁直达政府大厦(City Hall)。
如果驾车就更方便了。
5分钟车程到乌节路和CBD,10分钟车程到滨海湾金融新区。

看区域实景地图。附近很多商场和店面。


再来看一下新加坡Master plan 2014版的地区规划。
打星号的就是Centrium Square所在地,深蓝色代表商业(Commercial) 用途。
附近有大片区域是商业和酒店用途。

新加坡大部分的商业地皮都是有年限的。30年,60年,99年,都是比较普遍的年限。
Centrium Square拥有少见的永久地契,占地约6300平米,发展商Tong Eng 集团,预计于2020年第三季度完工。
项目会建成一栋19层的高楼。其中一二层楼是商场,6-8楼是医疗中心,9-19层是143间办公楼。
整体设计如下图。

建好以后是下图这个样子。


下图是办公楼的内部设计。
内部挑高4.9米,宽敞大气,提供足够的空间个性化设计。
底楼商场可以满足白领的日常需求。
喝杯咖啡,中午简餐,足不出户就可以解决。

5楼的天际花园景观,可以在工作之余放松身心。

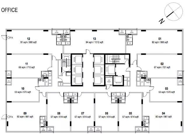
办公楼分布在9楼-19楼,总共143个单位,面积从53平米到94平米不等。
每层13间,基本格局可以参考下图。
每层设置8部电梯,其中2部货运电梯。

平均销售尺价在2500新币上下。
最小的办公楼单位(570平方尺),价位在146-152万新币之间。
最大的办公楼单位(1012平方尺),价位在250-260万新币之间。
文章的最后总结一下,购买办公楼类房产的注意事项:
1. 印花税 (Stamp Duty)
新加坡所有类别房产都需要缴纳3%的买家印花税。办公楼买卖无需交纳额外买家印花税(ABSD) 和卖家印花税 (SSD) 。
2. 商业贷款额度。
银行提供最高80%的贷款。贷款年限通常在15-20年之间。
3. 商业贷款利率
商业贷款利率比住宅贷款利率高0.5-1个百分比。目前新加坡银行提供的商业贷款利率在2.5%上下。
4. 消费税(GST)
个人买家需要交纳7%的GST。如果买家是GST注册公司,可以申请退回这笔费用。
5. 房产税(Property Tax)
商业类别房产税一律为年值的10%。
6. 买家身份
无限制,外国人和新加坡人购买无区别。
最后一个关键词留给有兴趣看到这里的筒子们。
投资者买下办公楼的后续事宜,包括拿钥匙,寻找租客,出租手续,萝卜全盘处理。
推荐了,就负责到底。
感谢阅读萝卜点评系列。
彭威
新加坡万事通房产专栏作者
彭威:毕业于南洋理工,后职任高级数据分析工程师多年,现任新加坡最大房产中介公司之一的Huttons的市场部董事近十载(CEA 注册号:R042525J)
初到坡,瘦高,好友称萝卜,岁月蹉跎,如今高而发福,好友依然称萝卜,萝卜点评,由此而来,萝卜点评,万事通说房事~
术业有专攻,萝卜不涉及留学移民开公司等等任何业务,只专注于房产,为买家处理银行贷款,房屋选购,联系律师,收房验收,房屋出租的一条龙服务,不向买家收取任何费用,十年磨一剑,深获买家好评!
给大家带来一个好消息!萝卜点评网站隆重上线!!
撒花!鼓掌~~
网址:www.luobodianping.com/
如果觉得我的文章对您有用,请随意打赏。你的支持将鼓励我继续创作!