顺福轩(Jade Scape)私人公寓位于新加坡第D20邮区,碧山成熟地区,顺福路(Shunfu Road)2-16号。
该公寓距离环线的玛丽蒙(Marymount)地铁站仅200米,距离碧山地铁转换站只有1个站,2023年完工的Upper Thomson地铁站也在附近。顺福轩占地约398,110.8平方尺(36,985.7平方米),拥有99年地契。
公寓由著名发展商青建地产开发,由本地建筑师Ong & Ong设计,引进全方位智能家居概念,让居民生活智能化。
顺福轩是一个大型公寓项目,将建造1栋21层、1栋22层和5栋23层楼高的住宅,合1206个私宅单位和6个商铺,户型包括236个一卧室、403个两卧室、265个三卧室、261个四卧室、39个五卧室和2个阁楼单元,面积介于527-4198平方尺(49-390平方米)。

顺福轩公寓距离环线的玛丽蒙(Marymount)地铁站仅200米
楼盘精华和卖点分析
公寓引进全方位智能家居概念,让居民生活智能化,是首个采用智能住宅管理系统的住宅项目;
超大型公寓项目,设施完善,拥有100多个便利设施;
由实力雄厚的发展商开发,出类拔萃的建筑师设计;
毗邻环线和汤申线两个地铁站,交通方便;
四周休闲娱乐设施丰富,如Thomson购物中心、Junction8购物中心、Thomson自然公园等就在附近;
教育资源丰富,名校林立,如公教小学是新加坡9所有天才班的小学之一;
自然环境优越,四周被公园和蓄水池包围,绿意盎然,环境清幽;
该地段少见的新公寓项目,供应低,需求高,升值潜力大;
较高的租金回报率。
顺福轩由实力雄厚的青建地产开发由出类拔萃的建筑师设计
顺福轩(Jade Scape)由著名发展商青建地产(Qingjian Realty)集团开发。
青建地产集团有限公司成立于1952年,主要经营中国国内和国际建设项目和投资、房地产开发、资本管理、物流、设计咨询等。
青建房地产因其优良的施工质量,获得了“中国著名房地产项目”和“中国创意设计创新房地产”等称号。
青建房地产旨在为社会提供高品质的房地产,其使命是“打造精致的艺术,创造和谐的空间”。自1999年以来,青建一直参与新加坡的各种商业和工业建筑项目。
青建房地产在2008年于新加坡注册成立房地产开发商参与了Nutura Loft Bishan(DBSS 2008)、位于Potong Pasir的Nin Residence(2010年公寓)、River Parc Residence Punggol(EC 2011)、RiverSound Residence Sengkang(公寓2011)、River Isles Punggol(公寓2012)、BelleWood(EC 2017)和Belle Water(EC 2017)等。
青建地产(南洋)集团的执行共管公寓项目(EC)在“2016年东南亚房地产奖”脱颖而出,共获得两个奖项。
位于榜鹅的翠林雅居(Ecopolitan)获得最佳执行共管公寓发展项目,位于兀兰的百丽居(Bellewoods)则获得最佳住宅室内设计奖。
2017年,青建地产在新加坡房地产开发商中,销售额最高,达1216个单元,排名第一。
青建地产获奖无数,主要奖项包括BCI Asia Awards – Top 10 Developers (2013, 2015, 2016, 2017, 2018)、Luban Prize – Natura Loft (2013)、Building and Construction Authority Green Mark Gold Plus Award – 2010, 2012,2013,2014,2015,2017、BCA Construction Excellence Award (Merit), 2013,2016、BCA Universal Design Mark Gold Award,2015,2018、FIABCI Singapore Property Awards 2015,2017、outh East Asia Property Award 2015,2016和Sia Property Awards 2017等。
发展商聘请重量级建筑设计公司Tange Associates负责公寓设计工作(Concept Design)。
这家日本设计公司在新加坡硕果累累,设计项目包括UOB Plaza、OUBCentre Skyscrapers、新加坡室内体育馆、Orchard Gateway商场、URA Centre、One Raffles Quay Tower2和滨海湾南的蓝图设计等。
该公司的加入将进一步提升公寓设计的质量的声誉。
发展商也聘请ONG&ONG作为建筑设计师,负责建筑和内部设计。ONG&ONG成立于1972,该公司由已故的Ong Teng Cheong先生和Ong Siew May女士创立。
作为一家多学科咨询公司,ONG&ONG为客户提供设计、工程和项目管理等服务。
ONG&ONG的理念是通过设计和创新提升用户体验,致力于“Experience + Make + Live”,为客户提供全面的解决方案。
ONG&ONG是一家通过ISO9001,ISO14001和ISO14064认证的企业。
公司也获得OHSAS18001,SGBC绿色认证和bizSAFE STAR认证。该公司成立以来,获奖无数,单在去年和今年就获得多个奖项。
Heartbeat @ Bedok是一座7层高的具有建筑特色的社区建筑,也是现代可持续发展的最高标准。
它将社区俱乐部,体育和娱乐中心,公共图书馆,综合医院和高级护理中心整合在一个地方。
此建筑荣获World Architecture Festival Finalist 2018。
位于印尼的Kamala Kandara住宅项目和义顺自然公园荣获World Architecture Festival Finalist 2017。
位于新加坡西部的一个高级住宅项目Faber-House和位于马来西亚的KAP-House荣获A’Design Awards Gold 2018。
位于马来西亚的Monterey Residences住宅项目荣获Asia Pacific Property Awards Winner 2018。
顺福轩引进全方位智能家居
(Smart Home)概念
让居民生活智能化,
是首个采用智能住宅管理系统的住宅项目
早在2014年,李显龙总理就宣布成立智慧国资讯与行政办公室,推动新加坡朝智慧国(Smart Nation)的愿景迈进。
“智慧国2015计划”是一个10年的计划,就是“利用无处不在的信息通信技术,将新加坡打造成一个智慧的国家、一个全球化的城市”。
李总理2017年的国庆群众大会上再次提及智慧国的愿景,强调发展智慧国可以让新加坡充分利用科技去制造就业机会和新商机,并提高生产力等,让无论老幼、不论是否精通新科技的人都能从中受惠。
而智能家居(Smart Home)概念可以被认为是智慧国的一小部分,智能家居的普及将是新加坡住宅发展的必然方向。
智能家居已在新加坡的多个私人公寓中普及,如城市发展开发的Forest Woods和Tapestry,CapitaLand开发的Cairnhill 9公寓。
青建地产是较早应用智能家居技术的房地产开发商之一,其代表作包括Visionaire、iNz Residence和Le Quest等项目。
以Visionaire项目为例,许多潜在买家对在示范单位展出的智能家居概念感兴趣,该项目的智能家居单元的售价比同一时期于附近地段推出的普通单元高3%,但销售速度是其它可比项目的3倍。
在Visionaire项目中,引进智能家居系统HiLife Smart HomeSolution。
智能家居应用可安装在智能手机上,通过小小手机,居民就可遥控家中空调、电子门锁、智能监控、洗衣机、电器开关、年幼及老人的活动等。
在顺福轩公寓中,所有的这些功能将被保留,并将添加新的智能项目。
该公寓的智能家居主要包括以下几个方面。
一是家居室内外遥控功能,包括室内外遥控开关大门、空调、洗衣机、和窗帘等,室外监控老人、小孩的健康、活动状况、室内外监控窗户开关、衣柜开关、室内烟雾火警、小区可疑人士活动等,让居民在任何时间均可知晓家中状况。
更为可贵的是,顺福轩还推出63个“金选良品”(The Gold Standard)单元,这些单元装备各种乐龄设施,如检测体温和心跳的检测系统等,满足老龄者的特殊需求。
此外,系统还安装面部识别功能,居民只需靠“脸蛋”就可开门。
二是智能访客功能,通过手机邀请访客,访客可以通过一次性密码进入居民家中,居民可以实时了解访客在家中的活动状况,你还可以设定访客的滞留时间;
对于租户也相当方便,租户不用钥匙、不用门卡,只需授权,通过指纹或密码即可入住。
三是智能社区功能,居民可以通过智能系统接收公寓管委会的相关信息、缴交相关费用、预定活动设施、与居民互动、信息反馈等。
四是附加功能,包括利用智能系统预定餐位、社区娱乐活动等,还可以享受折扣、获得积分等。

顺福轩公寓的智能家居系统


顺福轩公寓的智能家居系统
顺福轩位于新加坡的心脏地带
是市区边缘RCR区的黄金地段
顺福轩公寓位于第D20邮区的新加坡心脏地带。
公寓距离环线地铁站玛丽蒙(Marymount)地铁站仅200米,2023年完工的Upper Thomson地铁站也在附近,8分钟步行即可抵达(650米)。
公寓距离碧山地铁转换站只有1个站,距宏茂桥2个地铁站,大巴窑3个地铁站,乌节路6个地铁站,可轻松转换至南北地铁线以及将来的汤申线和跨岛线。
除了地铁,附近还有多条巴士路线,如52、130、132、162、163、165、166、167、310、855和980等,带居民通往全岛各地。
驾车人士则可轻松连接上泛岛快速公路PIE和中央高速公路CTE和将来的南北快速公路通往全岛各地。
约15分钟车程就可到达乌节路和中央商业区。
南北快速公路建成后,驾车前往乌节路和中央商业区的时间,将进一步缩短。
顺福轩位于碧山成熟社区,周边生活设施配套十分完善,四周食阁、超市、幼儿园等步行范围内就可到达。
附近还有大型商场如Junction 8、 Thomson Plaza、Ang Mo Kio Hub、NEX等,让居民尽享购物、休闲和娱乐。
此外,新加坡最有名气的高尔夫球场Singapore Island Country Club也在附近,让居民在自家家门口就可与朋友、商业合作伙伴拥有高端高尔夫球的顶级服务。
顺福轩公寓四周被绿意环绕,享有无限的自然风景。
坐落在公寓附近的新加坡麦里芝蓄水池是徒步、休闲的圣地。
在周末休闲时光,带上朋友、亲人或孩子漫步在池畔,想像一下就有满足感感觉,何况就在自家隔壁。
附近还有Lower Pierce、Upper Pierce蓄水池和碧山公园等,均是休闲、漫步、放松心情的好去处。
此外,公寓周边大多是有地私宅,与高端人士为邻,许多私宅的楼层不高,让公寓的视野开阔,有一览众山小的感觉。
新加坡顺福轩是典型的学区公寓,四周名校云集,教育资源非常丰富。
一公里范围内就有著名的公教小学(Catholic High School Primary),这是新加坡9所提供天才班(GEP)的小学之一;
同小学也是名校之一,距离公寓月1公里左右。
中学和初级学院方面,赫赫有名的莱福士书院也在附近,莱福士女中也将在2019年后搬来这一带。
国际学校方面,澳大利亚国际学校(Australia International school)、全球印度国际学校(Global Indian International school)和史丹福美国国际学校(Stanford Ameirican International school, SAIS)距离公寓也不远。

顺福轩公寓位于成熟社区,交通便利,教育资源丰富
该是投资进行时,该出手时就出手
最后一次降温措施推出以来,7月份的新公寓售出1,724套,这可能与降温措施推出前夜发展商提前推出三栋公寓Riverfront Residences,Park Colonial,Stirling Residences公寓有关。
但稍后推出的The Tre Ver表现也不俗,推出第一天就售出超过70%(200套中的141套),可见,市场依然相当活跃。
许多投资者认为,最新一轮的降温措施于7月5日推出以后,新加坡的私宅价格将显著下降。
然而,历史经验表明,自2011年12月提高额外买家印花税(ABSD)以来,政府还推出另外2次ABSD(分别在2013年1月和2018年7月),这三次的ABSD的提高并没有改变房价的走势。
政府推出降温措施的初衷并不是有意压制房价,而是要确保房价增值符合经济增长基本面。
那么,新加坡目前的经济基本面又是如何呢?
经济师预测,今年的经济增长将保持在2.5-3.5%。据商业时报《The Business Times》报道,尽管全球有些贸易摩擦升级,全球经济今年的展望依然看好。
数据分析表明,新加坡的房产依然还有升值空间。
更多的投资者依然看好新加坡的私宅市场前景,依然热衷于购买心仪的房产;
发展商也推出一些促销措施。
另一方面,ERA分析表明,去年和今年有大量私宅集体出售,总出售量超过S$180亿新元,至少有6000户家庭将需要搬家寻找新住址,这些家庭将平均拥有通过集体出售获得的S$300万新币的资产。
另外,新加坡人的家庭年收入也明显增加,如月收入介于S$17,500-S$19,999从2005至2017年增长了416%,达52,886;
月收入超过S$20,000的家庭增长了477%,达171,557,他们的购房能力也明显提高。
综合许多房产分析师的分析,今年的房产价格总体将会增长3-12%。
顺福轩投资潜力分析
顺福轩位于第D20邮区的汤申-碧山区,属于RCR区。
2013年1月政府推出第二轮ABSD。
让我们分析一下于2013-2014年第二轮ABSD推出后购买的位于D20邮区的5栋公寓的成交情况。
这5栋公寓包括Thomson Grand、Sky Habitat、Thomson Three、Sky Vue和Thomson Impressions。除了Thomson Impressions,其余4栋匀已在2015或2016完工。
这些买家购买后于今年出售,依然可以获得S$160,900-S$367,000盈利。
2013年九月,Thomson Three的平均售价是每平方尺S$1,355,到了今年7月,平均售价已上升至S$1,619。
又比如,2013年7月,Sky Vue公寓平均售价为每平方尺S$1,297,到了今年6月,平均售价提高到每平方尺S$1,705。
另一方面,让我们分析一下2018年的政府售地计划,我们发现,今年上半年在第D20邮区没有政府售地计划。
我们再来分析一下2016-2018年的集体出售计划,我们发现,在D20邮区近3年来只有2个集体出售项目。
这表明,D20邮区的私宅土地较为紧缺。
这从另一个角度说明了顺福轩的投资潜力。
获得投资回报的另一个考虑因素是租金回报率。
顺福轩位于新加坡的心脏地带,有位于RCR区,距离地铁环线、南北线以及将来的汤申线均相当方便,周围环境优美,四周名校林立,这些因素将确保租户的来源,并有较高的租金回报率。
让我们来分析位于顺福轩公寓附近的12栋公寓的租金情况,它们是Thomson V Two, Thomson V One, Centro Residences, Rafflesia Condominium, Floraview, Bishan 8, The Panorama, Bishan Loft, Sky Vue, Nuovo, Grandeur 8, Seasons View和 Sky Habitat。
分析表明,它们的租金回报率最低也可达3%,最高的租金回报率可达3.8%。
顺福轩是这一区数一数二的配备智能家居的公寓,必将得到租户欢迎,这也说明顺福轩公寓的租金回报率必将更高。
户型设计和雅居欣赏
公寓名JADESCAPE由两部分组成,Jade代表“绿色”的玉,是一种有价值的材料,就是将物业定位为豪华和庄严之意。
SCAPE,意为“风景”,代表财产的整体设置和自然灵感。
名称JADESCAPE可解释为如玉如意,代表象玉一样又豪华、庄严,又风景优美的、可视作财产的、富有的住宅项目。
顺福轩公寓由7栋错落有致的塔楼组成,它们通过独特的设计有机联系在一起,每个塔楼的正面均可看到水库,成为地道的临水公寓。
公寓呈现的镜像瀑布更是公寓的景观特色。
作为一个大型公寓项目,项目将提供100多个公共设施,许多设施将建在位于13层楼的空中花园,如空中泳池、健身房、烧烤台、按摩浴缸、蒸汽室、24小时保安、溪水池、会客厅等。
公寓还配备智能家居设施,让居民生活智能化。
公寓提供1-5卧室单元,设计各具特色,满足各阶层人士的住屋要求。
顺福轩公寓一角

顺福轩公寓一角

顺福轩公寓泳池

顺福轩公寓的镜像瀑布
一卧室,合236套,套内面积49平方米(527平方尺),整套售价从S$869,000元起。
一卧室户型方方正正,布局合理,采用开放式厨房,无浪费空间,客厅还配备阳台,房间配备内置衣柜。
一卧室户型非常适合夫妻情侣享受二人世界,也适合出租给相应的专业人士或学生等。
顺福轩公寓一卧室平面结构图
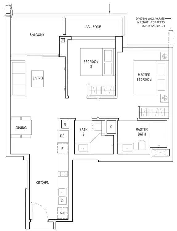
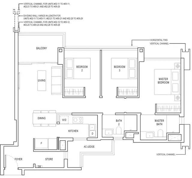
二卧室,合403套,套内面积60平方米(646平方尺)至72平方米(775平方尺),整套售价从S$111万元起。
二卧室户型方方正正,两个房间均可放置双人床,客厅还配备阳台。两个房间均配备内置衣柜。
二卧室户型有三种选择包括普通二卧室、豪华二卧室(Deluxe)和高级二卧室(Premium)。
二卧室适合有一个孩子的夫妇,以及专业人士和学生。除了自住,也适合出租给高端专业人士。

顺福轩公寓二卧室平面结构图
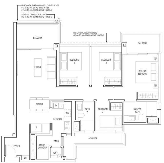
三卧室,合265套,套内面积84平方米(904平方尺)至107平方米(1,152平方尺),整套售价从S$145.4万元起。
三卧室的户型方方正正,布局合理,厨房相对独立,还配备储藏间。
三个房间均可放置双人床,客厅配备阳台。
三卧室户型有三种选择包括普通三卧室、豪华三卧室(Deluxe)和高级三卧室(Premium)。
三卧室非常适合有二个孩子的夫妇,或与父母同住,也适合出租给高端专业人士居住。

顺福轩公寓三卧室平面结构图
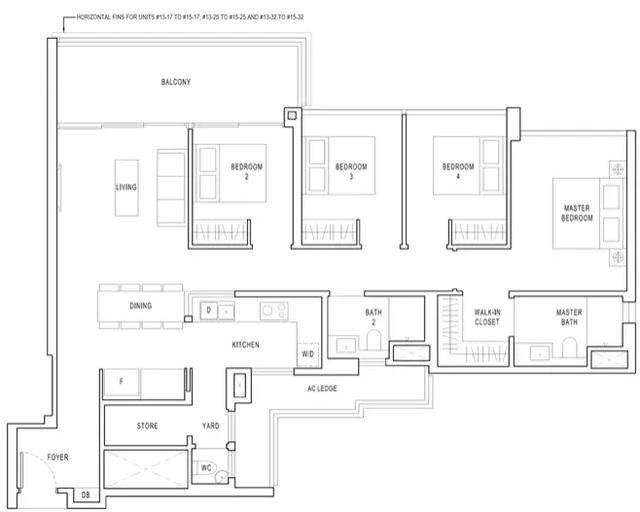
四卧室,合261套,套内面积116平方米(1,249平方尺)至153平方米(1,647平方尺),整套售价从S$208万元起。
四卧室的户型方方正正,布局合理,厨房相对独立,还配备储藏间。
三个房间均可放置双人床,第4个房间可放置单人床,客厅和厨房均配备阳台。
四卧室户型有三种选择包括普通四卧室、豪华四卧室(Deluxe)和高级套间四卧室(Suit)。
四卧室非常适合有三个孩子的夫妇,或与父母同住,也适合出租给高端专业人士居住。

顺福轩公寓四卧室平面结构图
五卧室,合39套,套内面积194平方米(2,088平方尺),整套售价从S$307万元起。
五卧室的户型方方正正,布局合理,厨房相对独立,干湿分开,还配备储藏间。
所有5个房间均可放置双人床,客厅配备阳台。
五卧室还拥有私人电梯。五卧室非常适合有四个孩子的夫妇,或与父母同住或三代同堂家庭,也适合出租给高端专业人士居住。

顺福轩公寓五卧室平面结构图

这里,我们为您介绍了一栋别具一格的智能化现代化公寓顺福轩,英文名叫“JADESCAPE”,意思是“如玉如意”。
其实,“JADESCAPE”的每一个字母均有其独特的含义。
“J”就是“J ust 200m to Marymount MRT”,意思就是距离地铁站只有200米步行距离;
“A” 就是“A bundance Of Amenities”,公寓四周休闲、购物、娱乐设施丰富,作为一个大型公寓,本身也提供100多个设施供居民享用;
“D” 就是“D electable food enclave”,公寓四周食阁、餐馆等随处可见,是享受美食的好去处;
“E” 就是“E nchanting views”,公寓四周绿意盎然,拥有三个水库,多个公园,视野开阔;
“S” 就是“S MART Living Development”,公寓采用引进智能家居新概念,让居民生活智能化;
“C” 就是“C ity Fringe Luxury Living”,公寓位于新加坡心脏地带,处于RCR区黄金地段,生活便利;
第二个“A” 就是“A ward winning developer”,公寓由实力雄厚的青建地产开发,由出类拔萃的设计师设计;
“P” 就是“P restigious Schools”,公寓四周教育资源丰富,1公里范围内就有新加坡9所有天才班的小学之一的公教小学;
第二个“E”就是“E RA is your choice Marketing Agency!”,公寓销售经纪公司ERA是新加坡主要房地产销售公司,实力雄厚,值得信赖。
拿起电话,联系我们,享受VIP折扣,选择心仪单元。
如果觉得我的文章对您有用,请随意打赏。你的支持将鼓励我继续创作!