对于很多国家的人来说
买房是最大也是最难实现的
人生梦想!

但是,在新加坡却画风突变
这里,是世界上拥房率最高的国家之一!
719平方公里的国土上
居住着561万人,新加坡人的
拥房率却超过90%
人口密度这么高
逆天的拥房率到底怎么做到的?

一
房价合理
简单粗暴,就是房价比较合理
控制房价新加坡政府有一手
早在1960s就推出居者有其屋政策
将土地分为了国有和私有
国有占近90%,确保土地供应
这还不够,还有《土地征用法令》
政府有权征用私人土地
还有权调整价格
感受到了大家长的支配
那么,手握土地房价调控的如何呢?
那也可谓是相当合理

图源:Bloomberg
新加坡非中心区组屋均价
四房式:33万1000;五房式:38万
公寓非中心区三室一厅
一般在110万新币左右
椰子之前给大家算过
按照新加坡人的月薪中位数
工作5年就能买到组屋
10年就能买到公寓
二
房贷形式
大多数人买房都是贷款
之前,也给大家深度分析过全款 VS 贷款
哪一种比较合适?
新加坡房贷全款还清 vs 贷款慢慢还,能省下多少钱?
看完不得不说新加坡房贷制度
那也是科学的成就了拥房率
新加坡人买房子
可以跟HDB或者银行贷款
哪个好?比比就知道

HDB贷款利率比较稳定
然而,这是针对新加坡公民的福利
银行贷款也是很好的选择
百花齐放,到底哪家比较合算?
这里,就为大家整理了
近期!利率最好的银行配套!

此信息是从新加坡16间银行的
所有配套中选出的最好的利率配套(
如果配套一样,会选择审批快的银行)
每月会及时更新
TIPS: 新加坡的银行利率相对较低
很利于贷款买房
一般配套中的前2-3年利率较低
但如果不注意更新配套(Refinance)
后几年的利率会升高不少
例如一个$60万的房贷过了配套期两年
不更新配套的话
每月房贷要可能多出$200新币或以上
(视具体情况而定)
如果放任不管
这本可节省的部分也不可不算
长期算下来是一个不少的金额
这就是在配套过期前的三个月
要着手换一次配套的原因
这样就一直可以保持
在享受银行最低利率配套

这期9月最好的
已建成私人房产利率配套中
中国银行和HSBC榜上有名
适用于新贷款的转售公寓和洋房
或已有贷款的更新配套(Refinance)

已建成私人房产最好的银行利率配套
在建中最好的新楼盘银行利率配套

组屋(HDB)最好的银行利率配套
三
新楼盘打折资讯
新加坡新楼盘发展商为了促进销售开始给力打折。政府加5%的额外税是吗,我打折变相还给你的意思!买房跟买衣服一样,趁著打折入手是硬道理~
7月5号新房政过后的3-6个月其实是买房黄金期,新房政市场情绪受影响,大家观望的居多,转售市场变得好还价,新盘市场发展商变得好说话。
因为这次的新政未像2013年6月的房政触及到收入与贷款比例挂钩TDSR这个致命点,根据以往的经验预测大多像以前的类似新政一样,缓一缓就过去了。

毕竟这次新政的目的只是为了“慢慢涨,不要太快”。大环境下,新加坡经济政治稳定,人口计划持续增长,房产抗通胀的本性,大方向是向上的。
现在房价仍然在底部向上勾的有利入手阶段,乌节路豪宅8月又开始频频动作,接连卖出,这不得不说是最先驱的买入信号。
下面是最新打折楼盘信息和最好银行利率配套供参考:
新加坡邮区分布:

1
滨海湾CBD一带
V on Shenton 珊顿.云尚 (D01 邮区 滨海湾)
新币S$1,454,000起

简介:
V on Shenton是一个拥有99年产权公寓,地址为5 Shenton Way,s068808,位于新加坡01 邮区。它由510个单位组成。V on Shenton公寓靠近丹戎巴葛地铁站(EW15),滨海湾地铁站(NS27)和莱佛士坊地铁站(NS26 / EW14),已经竣工。Shenton附近的五所学校包括Columbia Business School,FY技术学院和欧南中学。
概况:
楼盘名称:V on Shenton
开发商:UIC Investments (Properties)Pte. Ltd
产权:99年
竣工年份:2017年
单位数量:510
起始总价:新币S$1,454,000起
每平方英尺起始:新币 S$2,010起
卖点:
居住在5 Shenton Way的居民可以到附近的超市, 或该地区的购物中心购买杂货和零售购物。附近也有银行,餐馆等设施。
此公寓靠近Cold Storage,NTUCFairprice 超市,Prime超市和ShengSiong超市。它也靠近capital square,远东广场,牛车水,Chinapoint购物中心和滨海湾金沙酒店。
2公里以内学校:
康达小学(Cantonment Primary School)
户型分布:

主力户型:
Studio户型 474平方英尺 / 44平方米
新币S$1,880,000起
直降新币S$426,000
现价新币S$1,454,000起

A2户型 1室 506平方英尺 / 47平方米
新币S$2,020,000起
直降新币S$456,000
现价新币S$1,564,000起

B4户型 2室 883平方英尺 / 82平方米
新币S$2,980,000起
直降新币S$676,000
现价新币S$2,304,000起
B3户型 2室 958平方英尺 / 89平方米
新币S$3,020,000起
直降新币S$684,000
现价新币S$2,336,000起


BS4户型 2室+书房 1206平方英尺/ 112平方米
新币S$3,630,000起
直降新币S$821,000
现价新币S$2,809,000起


C2户型 3室 1765平方英尺 / 164平方米
新币S$4,347,000起
直降新币S$415,000
现价新币S$3,932,000起

C4户型 3室 1518平方英尺 / 141平方米
新币S$3,708,000起
直降新币S$356,000
现价新币S$3,352,000起


C5户型 3室 1356平方英尺 / 126平方米
新币S$3,510,000起
直降新币S$332,000
现价新币S$3,178,000起
2
乌节路一带

关于乌节路一带的公寓介绍与概况,可以参阅我以往的文章!
8Hullet (D09 邮区 乌节路)
新币S$1,829,200起

简介:
8 Hullet是永久产权公寓,位于新加坡第09邮区,Hullet路8号,S229160。该住宅物业包括一幢12层高的建筑,共44个单位。单位面积从538平方英尺(一室带书房的),到796平方英尺(2室单位)不等。
概况:
• 公寓名称::8 Hullet
• 开发商:HulletDevelopment Pte Ltd
• 产权:永久
• 预计交钥匙时间:2021年
• 楼层数量:12
• 单位数量:44
• 每平方英尺起始:新币S$3,300
• 起始总价:新币S$1,829,200
卖点:
公寓距离Somerset (NS23) 地铁站约300米,距离著名的乌节路购物中心仅几步之遥。
Chatsworth国际学校(乌节校园)位于8Hullet后面。 距离ParagonMedical Centre 和Mount Elizabeth Hospital / MedicalCentre驾车约2.0KM。
1公里以内的学校
英华学校(经禧)(Anglo-Chinese School (Junior))
圣玛格烈小学(St Margaret's Primary School )
2公里以内的学校
英华学校(小学)(Anglo-Chinese School (Primary))
立化小学(River Valley Primary School)
华苑小学(Farrer Park Primary School)
圣若瑟书院附小(St Joseph's InstitutionJunior)
户型分布:

主力户型:

2室 657平方英尺 / 61平方米
新币 S$2,216,550起
直降6.6万,
现价:新币S$2,150,054起


2室 797平方英尺 / 74平方米
新币 S$ 2,683,780起
直降8万,
现价:新币S$2,603,267起

1室 538平方英尺 / 50平方米
新币 S$ 1,829,200起
直降5.4万,
现价:新币S$1,774,324起

MartinModern 玛庭豪苑(D09 邮区 里峇峇利-河谷)
新币S$1,976,209起

简介:
Martin Modern位于RiverValley地区8 Martin Place的9邮区,S237992。Martin Modern是一个令人感觉温馨的楼盘,拥有宽敞的2、3或4间室的公寓,占地面积171,534.8平方英尺。Martin Modern拥有两座30层高的建筑,有450个单位,每个单位都有现代化的设施。可方便地通往许多配套设施,主要道路和优质学校。
概况:
公寓名称:Martin Modern
开发商:First Bedok Land Pte Ltd(Guocoland)
产权: 99年
预计交钥匙时间:2020
楼层数量:30
单位数量:450
每平方英尺起始:新币S$2,637
起始总价:新币S$1,976,209
卖点:
Martin Modern位于河谷路,也靠近somerset地铁站。
附近有很多美食以及咖啡馆,比如Cafeat Martin Road,Chopsuey Café,TheBook Café等。
附近还有一些优秀的学校,比如RiverValley Primary School,Anglo-Chinese Junior School,AlexandraPrimary,Zhangde Primary,Margaret'sPrimary School。
1公里以内的学校:
立化小学(River Valley Primary School)
2公里以内的学校:
英华学校(经禧)(Anglo-Chinese School (Junior))
圣玛格烈小学(St. Margaret's Primary SchooL)
Alexandra Primary School
Zhangde Primary School
Cantonment Primary School
户型分布:
主力户型:

B1户型 2室 764平方英尺 / 71平方米
新币S$2,080,220起
直降新币10万
新币S$1,976,209起


C3户型 3室 1087平方英尺 / 101平方米
新币S$3,173,000起


D1(PL)户型 4室 1733方英尺 / 161平方米
新币S$4,755,000起
直降新币13万
新币S$4,624,000起

户型 3室1399平方英尺 / 130平方米
新币 S$ 3,678,000起
直降新币5万
新币S$3,626,000起

111Emerald Hill 翡翠山 (D09 邮区 乌节路)
新币S$5,683,000起

简介:
111 Emerald Hill是位于111Emerald Hill Rd, Singapore 229391永久产权公寓开发项目,位于Somerset地铁站附近,距离乌节路购物区仅几分钟路程。于2012年竣工,高12层,共40个单位。
概况:
公寓名称:111 Emerald Hill
开发商:Emerald Land Pte Ltd
产权:永久
竣工时间:2012年
单位数量:40
每平方英尺起始:新币S$2,200
起始总价:新币S$5,683,000起
卖点:
111 Emerald Hill含有的设施包括游泳池,健身房,温泉池,泳池休息室,小屋休息室,游泳池甲板,娱乐厨房,阳光甲板和烧烤炉。
它距离乌节路沿线的餐馆和餐馆也只有步行路程。居民可以前往IONOrchard和Takashimaya等购物中心购买各类生活用品等。
对于车主来说,从翡翠山111号开往中央商务区(CBD)需要5-10分钟,途经中央高速公路(CTE)和克列孟梭大道。
1公里内学校:
圣玛格烈小学(St Margaret's Primary School )
英华学校(经禧)(Anglo-Chinese School (Junior))
2公里内学校:
立化小学(River Valley Primary School)
史丹福小学(Stamford Primary School)
华苑小学(Farrer Park Primary School)
英华学校(Anglo-Chinese School(Primary))
圣若瑟书院附小(St Joseph's InstitutionJunior)
户型分布:

主力户型:

D1户型 3室 1970平方英尺 / 183平方米
新币 S$ 5,683,000起
直降新币10万
现价新币S$5,580,000


D2户型 3室 2120平方英尺 / 197平方米
新币 S$ 5,724,000起


C1户型 4室 2497平方英尺 / 232平方米
新币 S$ 5,930,000起

B1户型 4室 3627平方英尺 / 337平方米
新币 S$ 8,523,450起
直降新币36万
现价新币S$8,160,000

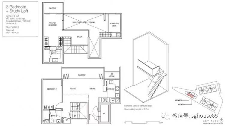
MonJervois 梦雅轩(D10 邮区 荷兰村)
新币S$3,263,150起

简介:
39, 41, 43, 45 & 47 Jervois Road,Singapore 249093。
Mon Jervois位于第10邮区的Bishopsgate和Chatsworth Park GoodClass Bungalow庄园隔壁。小区十分宁静,且靠近地铁站(绿色东西线的Redhill站,距离莱佛士坊4站路程,步行8分钟即可到达)以及诸如TiongBahru,Great World City,HollandVillage和登普西山。
Mon Jervois本身是一个低层住宅发展项目,由109个单元组成,户型从1室+书房公寓到阁楼。它还配备了一个小型游泳池,健身房和果岭。
概况:
公寓名称:Mon Jervois
开发商:Singland Development(Jervois) Pte Ltd
产权:99年
竣工时间:2016
楼层数量:5
单位数量:109
每平方英尺起始:新币S$1,693
起始总价:新币S$3,263,150
卖点:
Mon Jervois坐落在安静的住宅区,毗邻ChatsworthPark Good Class Bungalow庄园及使馆区,该地区外观感觉十分宁静。Great WorldCity和Tiong Bahru距离小区仅有2分钟车程。最靠近的车站是东西线的Redhill MRT,步行约8分钟。莱佛士坊距离小区9分钟(4站)。
1公里以内的学校:
立化小学(River Valley Primary School)
2公里以内的学校:
英华学校(经禧)(Anglo-Chinese School (Junior))
圣玛格烈小学(St. Margaret's Primary School)
Alexandra Primary School
Zhangde Primary School
Cantonment Primary School
主力户型:

PH3户型 3室 1475平方英尺 / 137平方米
新币S$3,263,150起
直降新币S$246,000
现价新币S$3,017,160


BL2A户型 2室+书房 1582平方英尺/ 147平方米
新币S$3,387,000起
直降新币S$652,000
现价新币S$2,735,003


PH5户型 4室 2842平方英尺 / 264平方米
新币S$5,760,450起

Ritz-CarltonResidences 丽思-卡尔顿 (D09 邮区 乌节路)
新币S$9,795,260起

简介:
Ritz-Carlton Residences是一个永久产权开发项目,位于Newton地铁站附近的第9邮,65 Cairnhill Rd, Singapore229721。于2013年完工,共有36层和58个单元。Ritz-Carlton Residences酒店靠近Far East Plaza和The Paragon。

概况:
公寓名称:The Ritz-Carlton Residences
开发商:Hayden Properties Pte Ltd
产权:永久
竣工时间:2013
楼层数量: 36
单位数量:58
起始总价:新币S$9,795,260起
卖点:
酒店附近有各种设施,包括餐饮场所,小贩中心,便利店,超市,银行,自动取款机,诊所和购物中心等。5分钟即可到达热闹繁华的乌节路;丰富多样的购物,餐饮及娱乐场所近在咫尺。
Ritz-Carlton Residences精美的构造和出众的设施,结合久负盛名的Ritz-Carlton尊贵服务,极力为奢华生 活诠释新标准。
业主专享:
- 服务总监随时提供规划咨询
- 代客泊车 - 24小时礼宾服务
- 咖啡吧(24小时提供咖啡和茶水)
- 免费早餐和下午茶
- Ritz-Carlton酒店预定
应业主要求可提供的其他服务:
- 家政服务
- 洗衣服务
- 儿童看护服务
- 加长豪华房车服务
- 公寓内或指定地点承办宴席服务
- 活动策划/管理
1公里以内的学校
英华学校(经禧)(Anglo-Chinese School (Junior))
2公里以内的学校
英华学校(小学)(Anglo-Chinese School (Primary))
华苑小学(Farrer Park Primary School)
圣若瑟书院附小(St Joseph's InstitutionJunior)
圣玛格烈小学(St Margaret's Primary School )
立化小学(River Valley Primary School)
Singapore Chinese Girls' Primary
户型分布:
3房式 263平方米 5-23层
4房式 284平方米 25-33层
标准阁楼 332平方米34层
豪华阁楼 604平方米35/36层,空中花园
主力户型:

3室 2,830平方英尺 / 263平方米
直降20万,
现价新币S$9,795,260起


4室 3,056平方英尺 / 284平方米
新币S$12,250,000起



豪华阁楼 5室6,499平方英尺 / 604平方米直降120万,
现价新币S$27,843,783起

3
东海岸一带
TheLine @ Tanjong Rhu (D15 邮区 东海岸)
新币 S$1,411,000起

简介:
The Line @ Tanjong Rhu是永久产权公寓,位于15区的6 Tanjong Rhu Rd Singapore 436883。它由130个单位组成。 The Line @ Tanjong Rhu靠近蒙巴顿地铁站(CC7),体育场地铁站(CC6)和Dakota地铁站(CC8)
概况:
公寓名称:The Line @ Tanjong Rhu
开发商:Lakeview Investments Pte Ltd
产权:永久
竣工时间:2016年
单位数量:130
起始总价: 新币 S$1,411,000
每平方英尺起始: 新币 S$2,163
卖点:
The Line @ Tanjong Rhu的设施包括:花园大堂,草地亭子,草地游乐场,天空甲板大堂,白色休息室,花园功能甲板,浮动室外健身房,花园温泉,瀑布休息室,芬芳花园,草坪,森林花园烧烤台,浮动俱乐部,森林按摩池,森林花园儿童泳池和天空阳台/无边泳池
高楼有海景房
Line @ Tanjong Rhu靠近NTUCFairprice和Cold Storage,公寓居民可以到附近的超市或该地区的购物中心购买生活用品。
车主可以通过East Coast Parkway高速公路(ECP)到达城市的商业中心或购物区。
2公里内学校:
光华小学(Kong Hwa School)
丹绒加东小学(Tanjong Katong Primary School)
主力户型:
B户型 2室 592平方英尺 / 55平方米
新币 S$ 1,411,000起
直降新币S$70,000
现价新币S$1,341,000起


AG户型 1室 829平方英尺 / 77平方米
新币 S$ 1,795,000起
直降新币S$89,000
现价新币S$1,706,000起


C户型 3室 1055平方英尺 / 98平方米
新币 S$ 2,343,000起
直降新币S$117,000
现价新币S$2,226,000起

C1户型 3室 1152平方英尺 / 107平方米
新币 S$ 2,634,000起


C2户型 3室 1184平方英尺 / 110平方米
新币 S$ 2,671,000起


PH-2户型3室 阁楼 2874平方英尺 / 267平方米
新币 S$ 7,028,000起
直降新币S$351,000
现价新币S$6,677,000起

4
其他地区
T-Space(D18 邮区 淡滨尼)
工业厂房 新币 S$688,000起
简介:
T-Space位于TampinesNorth Drive 1,是一个九层楼高的工业。它有很多不同的大小和品种的工厂户型选择。
新加坡邮区分布图:

概况:
名称: T-Space
开发商: Goldprime Land Pte Ltd (AJoint Venture Between Lian Beng Group Ltd & Oxley Holding Ltd)
产权: 30年
预计交钥匙时间: 2019年
单位数量: 249
起始总价: 新币 S$688,000
每平方英尺起始: 新币 S$323
卖点:
T-Space配有专为工作与生活平衡的游泳池和花园。
T-Space毗邻TampinesNorth Drive1和TPE,地理位置优越。
1公里内学校:
MERIDIAN PRIMARY SCHOOL
PARK VIEW PRIMARY SCHOOL
2公里内学校:
ELIAS PARK PRIMARY SCHOOL
POI CHING SCHOOL
TAMPINES NORTH PRIMARY SCHOOL
厂房户型分布:
CL户型 2196平方英尺 / 204平方米
新币 S$ 708,660起- 折扣新币S$20,660
打折信息有一定的时效,想了解更多详情,量身定制看房行程,请和Susie 联系 +65 90283676或个人微信号:susie77808
和各大银行的合作伙伴合作,最全的银行资讯,想要不排队,banker(贷款经理)一对一电话或上门解释详情,轻松快速解决贷款相关问题,请和Susie联系!
我坚信:when you add value to others,your value goes up- 当您向他人增加价值时,您的价值上升!
孙倩

孙倩,微信公众号 新加坡狮城房地产(账号:sghouse65)创办人,定居狮城18年,房地产行业任职8年,现任新加坡上市房地产经纪公司ERA的高级执行董事。为人热情真诚,通晓中英双语,有丰富的房地产知识与见解。帮助很多中国同胞在新加坡置业,安家及投资,成交总金额过亿新币。业绩一直名列前茅,坚信以诚待人,始终客户优先,做事认真负责,深获好评,获奖无数。
如要买房,卖房,资金计算
房屋贷款(外国人可贷款)
房产估值,房产托管
欢迎找我无条件咨询
不向买家收取任何中介费用
电话:+65 90283676
微信号:susie77808
本文转载自新加坡狮城房地产(微信号:sghouse65),更多房地产知识与干货,请扫码关注哦~

如果觉得我的文章对您有用,请随意打赏。你的支持将鼓励我继续创作!