萝卜点评,万事通说房事!

上周的萝卜点评文章里,重点介绍了全岛两处即将推出市场、备受瞩目的大型地铁学区盘。
其中碧山区的顺福轩公寓,已经确定于本周六(9月22日)开盘。
预定销售价位如下:
?一室一厅户型:83万8千新币起
?两室一厅户型:98万8千新币起
?标准三卧户型:138万新币起
?优质三卧户型:150万新币起
?四室一厅户型:186万新币起
支票收集程序即将在本周三下午6点(9月19日)截止。
截止日期前提交支票的意向买家,在开盘当天,将获得额外2%售价折扣。
今天的这篇文章,我会进一步提供更多的楼盘户型细节,价位信息,预计管理费,示范间图片等,以供参考。

位于新加坡中部碧山区的 JadeScape楼盘,具体位置在汤申-顺福路(Shunfu)地带,并以地名,起中文名为顺福轩。

楼盘距离最近的环线地铁站:玛丽蒙站(Marymont)约350米,步行5分钟即可到达。
这里毗邻本地著名的汤申上段美食街,各种风味的早茶馆,餐厅,精品咖啡店,大大小小的便利店,银行,商铺,分布在街道两边。生活非常便利。
Thomson Plaza商场位于步行范围内,提供了大量的衣食住行选择。
碧山地铁转换站和Junction 8 购物中心,距离公寓约1.5公里,开车5分钟可达。乘坐公共运输的话,可以从玛丽蒙站坐一站地铁,或者楼下公交10分钟直达。
正在建设中的汤申-东海岸地铁线,其中一个地铁站:汤申上段站(Upper Thomson)也位于公寓位置附近。

楼盘附近,名校林立。
公教中学附小(男校)位于公寓1公里之内。这是新加坡九所GEP小学之一,新加坡排名第一阶梯的名校。
另一所全国排名前二十的小学:爱同学校,位于公寓1-2公里范围。
新加坡顶尖学府:莱佛士书院,位于玛里蒙地铁站对面,顺福轩出门步行即可到达。莱佛士书院的多位校友,包括李光耀,吴作栋,李显龙等人,后来都成为了新加坡的领导者。
历史悠久的莱佛士女中,即将搬迁来碧山区。新校址选定在莱佛士书院附近,两者仅仅隔了一条街,预计于2019年建成并搬入。
新成立的诺雅初级学院,同样将搬迁至碧山区。新校址原属于碧山公园的一部分,即将于2019年建成并搬入。

新加坡最大的公园:碧山公园,占地达62公顷,公园内设置了儿童游乐场地,沿河步道,宠物乐园,餐厅,酒吧等众多设施,给居民提供了大量休闲运动的选择。
距离不远的麦里芝蓄水池,拥有11公里长的自然观光步道,是徒步爱好者的周末好去处。

顺福轩(JadeScape)所在的地皮,原本是中等入息公寓:顺福雅苑的所在地,于2016年通过集体出售方式,以6亿3800万新币售出给发展商:青建地产。
顺福轩拥有99年地契,占地3万6985平米, 预计将兴建7栋21-23层的小高层建筑,总计1206个公寓单位,以及6间商铺门面。

下图是示范间现场拍的模型。
可以看到楼间距比较宽,互相隔开,最大程度的保证了每栋楼的采光。(手机图渣莫怪)

户型设计包括1卧至5卧的多种户型,预计于2023年之前兴建完工。高楼单位可以无遮挡的欣赏到麦里芝蓄水池美景。
注意这个地契很新,发展商花钱填补过了,99年时间从2018年6月算起。
多达三万六千平米的广阔地皮,提供了足够的空间。公寓小区内设计兴建多达96种设施,数目惊人。
派对草坪,森林瀑布,迷宫花园,儿童俱乐部,户外健身区,两个网球场,竹林,宠物角,天际小屋等等,应有尽有。
全面智能家居设计,给居民提供耳目一新的现代居住体验。
厨房家电配备SMEG, Fotile, BWT等高级品牌电器。
优质四卧和五卧等大户型单位,配备私人电梯入户。




一室一厅户型,面积49平米(527平方尺),83万8千新币起售。
预计每月物管费:233新币。


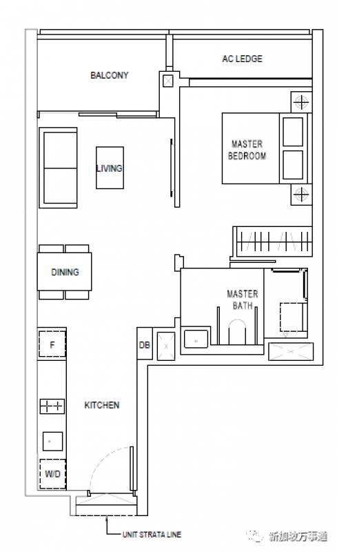
两室一厅一卫户型,面积60平米(646平方尺),98万8千新币起售。
预计每月物管费:280新币。

两室一厅二卫户型,面积71平米(764平方尺),120+万新币起售。
预计每月物管费:280新币。
标准三卧户型,面积84平米(904平方尺),138万新币起售。
预计每月物管费:280新币。


优质三卧户型,含储藏间,面积94平米(1012平方尺),150万新币起售。
预计每月物管费:280新币。


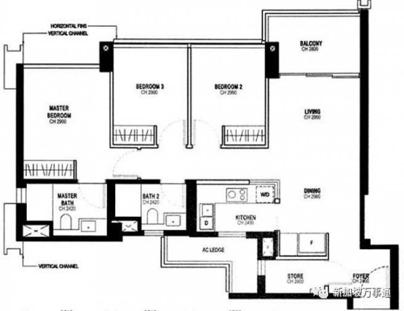
标准四卧户型,包括工人房和yard,面积117平米(1259平方尺),186万新币起售。
预计每月物管费:326新币。

优质四卧户型,包括工人房和yard,主卧步入式衣帽间(主卧很大!),面积132平米(1427平方尺),220+万新币起售。
预计每月物管费:326新币。



除了介绍的户型之外,还有四卧套间(私人电梯入户),五卧(私人电梯入户),以及顶楼Penthouse等大户型单位待售。
再次提醒,在星期三六点之前提交支票的意向买家,在所有预定售价的基础上,可以额外享受2%的折扣优惠。
时间有限,对JadeScape(顺福轩)楼盘感兴趣的读者,请尽快联系我。
感谢关注萝卜点评系列。
如果觉得我的文章对您有用,请随意打赏。你的支持将鼓励我继续创作!