前言
在新加坡,政府组屋的地契通常是99年。总理李显龙在今年8月的国庆群众大会上说,这样的地契可以确保对未来国人是公平的。他说,国人向建屋发展局(HDB)购买组屋后,可以传给子孙;屋契到期后,归还给政府,政府可以使用土地为未来一代兴建新组屋。
总理说,如果组屋屋契是永久性的,我国迟早没有足够的土地为未来一代兴建新房屋,整个社会就会分裂为拥屋者和无法拥屋者,他认为这是最不平等的现象,而且会分化社会。私人房产则不同,其地契主要有三种类型:99年、999年和永久产权。
自从新加坡独立后,政府已不再出售999年或永久产权的土地,这类产权的公寓将只减不增。目前新加坡房产市场上新开发的999年或永久地契新楼盘均是开发商通过集体出售购得的。从房产价格而言,新加坡999年或永久地契的房价会比99年地契的房价贵至少15%。99年地契的房价随屋龄增加而下降的速度比永久地契的快,特别是屋龄到了30年以后。如果屋契只剩下45年或更少,则房屋买卖将变得不活跃,因为申请银行贷款将变得相当困难。
这里为您介绍一个即将开盘的永久地契新公寓,Jui Residences。购买永久地契公寓,无需为地契担忧,可以永久居住,也可以遗赠给子孙后代。
楼盘概况
Jui Residences私人公寓位于新加坡第D12邮区实龙岗路和加冷河的交界处(实龙岗路1177号),该公寓距离波东巴西地铁站约600米,距离芽笼巴鲁地铁站(Geylang Bahru MRT)850米。
整个公寓将建造1栋18层高的住宅,合117个私宅单位和3个商铺,户型包括26个一卧室、39个两卧室和52个三卧室单元,面积介于40-93平方米不等。
楼盘精华和卖点分析
1、永久地契,保值增值,钻石永恒,世代相传;
2、位于市区边缘,价格合理,增值潜力大;
3、位于新加坡中部心脏地带,交通方便,四通八达;
4、位于加冷河畔,临水而居,波光粼粼,尽享河川和热带雨林风景;
5、附近购物商场林立,拥有大量的休闲、娱乐设施;
6、一栋有历史的建筑,见证过去,展望未来;
7、由著名发展商开发,品质保障,享有盛誉的建筑师设计;
8、附近名校林立,也靠近著名的国际学校,如新加坡史丹福美国国际学校。

Jui Residences公寓效果图
Jui Residences公寓位于新加坡中部,市区边缘的黄金地段
Jui Residences公寓位于第D12邮区的实龙岗区。如果我们查看一下地图,可以发现,Jui Residences位于新加坡的中部,就在加冷河畔。这是地道的河畔公寓,环境非常优美,可谓临水而居,波光粼粼,聚财气、享生活。
Jui Residences公寓之前是国家汽水公司的工厂,汽水厂在上世纪90年代停产后一直没有开发新项目。Jui Residences 公寓距离波东巴西地铁站约600米,步行7分钟即可抵达。从此站乘搭4个地铁站就可以抵达位于乌节路购物中心附近的 多美歌地铁转换站(Dhoby Ghaut MRT)。从波东巴西地铁站乘搭2个地铁站就到达实龙岗地铁转换站(Serangoon MRT)。从多美歌地铁转换站和实龙岗地铁转换站,可以抵达全岛各地。此外,从Jui Residences公寓步行850米也可抵达芽笼峇鲁地铁站(Geylang Bahru MRT)。
在公寓200米范围内还有多条巴士路线,如巴士8, 26, 31, 90, 142, 151, 154, 857, 966, 985等。如果是有车一族,附近就有泛岛高速公路(PIE)、加冷-巴耶利峇高速公路(KPE)和中央高速公路(CTE),由此驱往全岛各地。从Jui Residences公寓出发,10分钟车程即可抵达新加坡最大的乌节路购物商区,约13分钟的车程就可以抵达中央商业区(CBD)。

Jui Residences公寓位于新加坡中部
Jui Residences公寓不但交通方便,附近的购物、休闲、娱乐设施也相当丰富,如附近1公里范围内就有NTUC平价超市、巨人超市和晟菘超市等。波东巴西地铁站旁的博雅中心(The Poiz Centre)占地约5万平方英尺,拥有84个零售摊位。其它的购物设施包括星苑坊(The Venue Shoppes)、明地迷亚购物中心(Bendemeer Shopping Centre)、麦波申购物中心(Macpherson Mall)、邵氏商业大厦(Shaw Plaza)、马里士他大厦(Balestier Plaza)、Aperia、城市广场购物中心(City Square Mall)和慕斯达发中心(Mustafa Centre)等。
NEX商场位于实龙岗地铁站(Serangoon MRT)附近,距离The Tre Ver公寓只有2个地铁站的距离。NEX商场是新加坡东北区的大型商场,那里有非常多商铺、餐厅、电影院和24小时的超市,是购物、娱乐、休闲和用餐的好去处。
此外,附近还有多家熟食中心,如700米步行即可抵达的大牌69芽笼峇鲁巴刹与熟食中心或大牌29 明地迷亚路巴刹与熟食中心等。

Jui Residences公寓位于加冷河畔

Jui Residences公寓附近的购物中心
新中国汽水公司原址

新中国汽水公司新貌
Jui Residences公寓附近的教育资源也相当丰富。
1公里范围内的幼儿园就有7家,包括Kim Keat Christian Church Kindergarten、Elim Kindergarten、Canaan Church Kindergarten、The Ascension Kindergarten、PCF SPARKLETOTS PRESCHOOL @ KOLAM AYER Blk 64、PCF SPARKLETOTS PRESCHOOL @ POTONG PASIR Blk 143和PCF SPARKLETOTS PRESCHOOL @ WHAMPOA Blk 106 等。
1公里范围内的小学和中学包括明智小学(Bendemeer Primary School)、圣安德烈小学(Saint Andrew’s Junior School)、明智中学(Bendemeer Secondary School)、圣安德烈中学(Saint Andrew’s Secondary School)等。还有四德女子中学(Cedar Girls’ Secondary School)和圣安德烈初级学院(Saint Andrew’s Junior College)等。靠近的大专学府有新加坡科廷大学(Curtin University Singapore)、詹姆斯·库克大学。
此外,公寓距离史丹福美国国际学校(Stamford American International school, SAIS)只有1300米,这个学校是许多家长特别是来自中国的家长较感兴趣的国际学校。该国际学校成立于2009年,占地5万3000平方米,耗资3亿美元打造,拥有超现代化的教学设施,为2-18岁的学生提供北美体制教育和国际文凭课程(IB)。这里的教师来自10多个国家,拥有丰富的教学经验,确保具有一流的教学质量。该校的国际学生中,有62%的学生拥有美国国籍。学生包括驻新外交使节、跨国公司高管或社会知名人士的子女。香港著名影星张柏芝的两个儿子就在此校就读。学校包括学前班(18个月至6岁)、小学(6-11岁)、中学和大学预科(11-18岁)。学费因所学学段和课程而有不同,介于每年新币S$15,000-$50,000不等。

公寓附近的史丹福美国国际学校
新一轮房市降温措施是为了确保房价增值符合经济增长基本面,新私宅的售价将保持稳定
最新一轮的降温措施于7月5日推出以来,根据新加坡国立大学发布的最新整体房地产价格指数(NUS SRPI)预估数据,7月份整体转售价格指数为154.4,环比下跌0.5%,而6月份则是上升0.7%。这样,从最新一轮的降温措施推出以来,总体房价呈平稳状态。自2011年12月提高额外买家印花税(ABSD)以来,政府还推出另外2次ABSD(分别在2013年1月和2018年7月)。
历史表明,这三次的ABSD的提高并没有改变房价的走势。新加坡上一次的房价下跌是在2013年6月政府调整总债务偿还率(Total Debt Servicing Ratio, TDSR)之后。降温措施推出以来,7月份的新公寓售出1,724套,表现良好。除了降温措施实施前夜推出的Riverfront Residences,Park Colonial,Stirling Residences公寓外,稍后推出的The Tre Ver表现也不俗,推出首3小时售出70%(200套中的140套),可见,市场依然相当活跃。
事实上,政府已明确表明,新一轮房市降温措施是为了确保房价增值符合经济增长基本面,而如今新加坡的经济基本面良好。这样,私宅市场接下来应保持平稳态势,而新私宅的售价不太可能下跌。一方面降温措施推出之前发展商标得的土地的价格不低,发展商不太可能以较低价位出售。
另一方面,去年和今年有大量私宅集体出售,至少有5000户家庭将需要搬家寻找新住址,这无形中为市场注入活力。再者,新加坡人的家庭年收入也明显增加,如月收入超过S$20,000的家庭从2005至2017年增长了477%,达171,557,他们的购房能力也明显提高。
永久地契公寓的增值空间明显高于99年地契公寓
据新加坡经纪人吴洲获得的数据表明,地契剩余99年的新公寓,其价值为永久地契公寓的96%;当地契只剩60、30和15年时,其价值分别只有永久地契公寓的80%、60%和40%。如位于兀里地铁站旁于2007年建成的永久地契公寓Blossoms,面积1195平方尺的单元,其最近的售价为每平方尺S$1419。
同样位于兀里地铁站旁的于2017年建成的99年地契公寓(从2008年算起)[email protected],面积1163平方尺的单元,其最近的售价为每平方尺S$1338。尽管[email protected]公寓更新、更靠近地铁站,其售价仍不如更旧的、离地铁站稍远的永久地契公寓。
永久地契公寓的价值也表现在集体出售上。同样位于DUNEARN路的两栋公寓,一个是99年地契的CHANCERY COURT(建于1981年),其集体出售的每平方尺容积率S$1,610(psfppr);另一个是永久地契公寓DUNEARN GARDENS,其集体出售的每平方尺容积率S$1,914(psfppr),每平方尺高出约S$300元。位于Cuscaden路的一块地皮,99年地契,投标价为每平方尺容积率S$2,377(psfppr),就在这块地皮旁的一栋40多年的永久地契旧公寓,其集体出售的每平方尺容积率S$2,910(psfppr),每平方尺价位比99年地契的高出S$533元。
此外,永久地契公寓的价值还表现在“稀有”上。永久地契公寓只会越来越少,因为政府已不在出售永久地契地皮了,所有的永久地契公寓都是发展商通过集体出售收购购整体重建而来的。这样,其保值、增值的空间将更大。
一座有历史的公寓,靠近政府重点发展区域,提供潜在租赁市场和增值空间
Jui Residences公寓将建在前新中国汽水公司(National Aerated Water Company)厂址。去年12月,市区重建局宣布这座富有装饰艺术风格的、于1954年竣工的工厂已列入国家受保护建筑,国家发展部长黄循财也在他的脸书上刊登了这个消息。这座汽水厂生产伴随许多人成长的Sinalco和Kickapoo Joy Juice等饮料。
市建局执行长Lim Eng Hwee先生说,这座建筑不仅具有历史意义,而且是加冷河沿岸熟悉的地标,也为新加坡人在20世纪50年代至90年代生产的流行软饮料留下了美好的回忆。据报道,面向实龙岗路的两层L形主楼将得到保护。
这座保存完好的建筑将被整合到一个新的住宅开发区,通过适应性的再利用,使建筑的故事得以实现。这样,Jui Residences公寓将是一座有故事的公寓,是新加坡国家历史的一部分,将永载史册。
Jui Residences公寓位于市区边缘,靠近许多国家重点开发区,如巴耶里巴中心(5分钟车程)、实龙岗区域中心(Serangoon Sub-Regional Centre,5分钟车程)、实里达航空园(12分钟车程)、纬壹科技园(14分钟车程)和樟宜商业园(15分钟车程)等。巴耶里巴中心(Paya Lebar Central)将是一个繁华的综合商业节点,拥有办公室,零售店和充满活力的公共空间;12公顷土地可供开发,相当于约500,000平方米的商业建筑面积;除了引入新的商业开发项目外,未来的Wisma Geylang Serai还将增强独特的本地特色,以及芽笼路沿线的新步行街和广场空间。实龙岗区域中心(Serangoon Sub-Regional Centre)将为新的商业开发提供空间,为企业外的办公空间创建一个替代位置,为东北地区的居民创造更多就业机会和便利设施。
从长远来看,实里达区域中心有可能增长到淡滨尼地区中心的两倍,毗邻实里达航空园区,提供一系列活动,例如飞机和部件的维护、修理和大修;制造和组装飞机发动机和部件;商务和通用航空;培训和研发。实里达地区中心和实里达航空园区将成为北部和东北部居民的主要就业节点,目前拥有60多家航空航天公司,包括跨国公司(MNCs)和当地中小企业(SME),到今年年底将创造10,000多个就业岗位。所有的这一切,将为公寓提供巨大的租赁市场和增值空间。
户型设计和雅居欣赏
Jui Residences公寓的设计灵感来源于其旧址新中国汽水公司那富有艺术情调的建筑,如立体垂直长笛、拱形和独特的曲线等。公寓的每一套单元均精心设计,自然采光、空气清新。公寓在5楼设计了Sky Terrace,无边泳池就在加冷河畔,延伸到无缝视野,给居民一种解放空间之感觉。泳池旁还配备其他设施如水上健身、浅水池和泳池甲板等。
此外,还有一个多功能活动区和观景台带有阶梯式休闲座椅,让居民放松身心。作为对新中国汽水公司这座旧建筑的致敬,墙上装饰着色彩鲜艳的艺术品。值得一提的是由雕塑家Colin K. Okashimo博士精心制作,并命名的’瓶装配:填充空隙和空隙填充’(The Bottle Assembly: Filling Voids and Voids Filling’),粉红色,蓝色和黄色的柔和色彩应用于瓶子,展现出迈阿密艺术装饰风格。空间设计给人一种舒适感,微妙的装饰艺术特色延续至卧室,人字形木地板提供温暖和宁静的氛围。
Jui Residences 公寓的游泳池


Jui Residences公寓一角

Jui Residences公寓客厅

Jui Residences公寓阳台
Jui Residences公寓卧室
一卧室,合26套,套内面积40平方米(431平方尺)至43平方米(463平方尺),整套售价从S$741,000元起(每尺S$1,719)。一卧室户型方方正正,布局合理,采用开放式厨房,无浪费空间,客厅还配备阳台,房间配备内置衣柜。一卧室户型非常适合夫妻情侣享受二人世界,也适合出租给相应的专业人士和学生。

Jui Residences公寓一卧室平面结构图
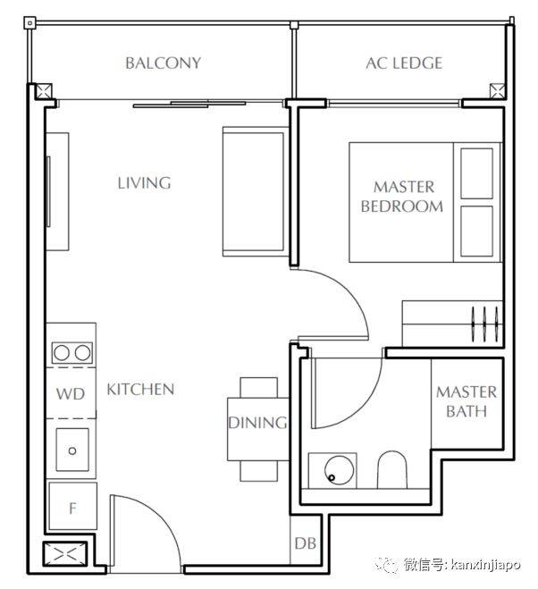
二卧室,合39套,套内面积61平方米(657平方尺)至66平方米(710平方尺),整套售价从S$1,163,000元起(每尺S$1,770)。二卧室户型方方正正,厨房相对独立。两个房间均可放置双人床,客厅和主人房或普通房还配备阳台。两个房间均配备内置衣柜。二卧室适合有一个孩子的夫妇,以及专业人士和学生。除了自住,也适合出租给高端专业人士。
Jui Residences公寓二卧室平面结构图
三卧室,合52套,套内面积82平方米(883平方尺)至93平方米(1001平方尺),整套售价从S$1,479,000元起(每尺S$1,675)。三卧室的入口有一个缓冲间,户型方方正正,布局合理,厨房与餐厅分开。三个房间均可放置双人床,客厅配备阳台。三卧室非常适合有二个孩子的夫妇,或与父母同住,也适合出租给高端专业人士居住。

Jui Residences公寓三卧室平面结构图
小结
新一轮房市降温措施是为了确保房价增值符合经济增长基本面,新私宅的售价将保持稳定,不太可能持续下跌。永久地契公寓将越来越稀缺,其增值空间明显高于99年地契公寓,具有较强的投资潜力。Jui Residences公寓拥有永久地契,将成为新加坡国家受保护建筑的一个组成部分,是一座有历史、有故事的建筑。Jui Residences公寓位于新加坡中部地区,属市区边缘地段,靠近许多国家重点开发区,如巴耶里巴中心、实龙岗区域中心和实里达航空园等。公寓的每一套单元均精心设计,自然采光、空气清新。公寓的无边泳池就在加冷河畔,视野无边,给居民一种解放空间之感觉。公寓也充满艺术色彩,展现出迈阿密艺术装饰风格。总之,Jui Residences公寓集万千宠爱于一身,有着潜在的投资增值潜力。该楼盘开盘在即,拿起电话,联系我们,享受VIP折扣。
即刻与我们登记,在开盘当日选房,还可在以上价格上,享受额外3% 的开盘特惠价格。
添加金牌经纪人吴洲微信,
常年免费获取新加坡最新楼盘价格折扣和解答房产疑问。
若您有新加坡置业买卖需求,请免费联系新加坡眼特约金牌房产经纪人吴洲,常年买卖各类产业和征集二手房源,数百个楼盘数万款房产任您挑,也可足不出户在线视频看房www.kangongyu.com ,我们办事,您放心。
关于吴洲:任职于新交所上市企业,新加坡最大的国际性产业集团ERA担任高级营销董事,金牌房产经纪人(新加坡IEA房地产经纪协会2013/2014 年度金奖得主),他从业8年,秉承专业诚信,事无巨细的工匠精神从业理念,迄今为止,成交完的产业总市值以数亿新币计算,服务过数百位中高端客户投资新加坡产业,为精英人士的首选金牌经纪人,欢迎买家/卖家联系我们。
联系吴洲,请加微信号:peterwu99
手机:(+65) 88 139 139
政府执照号:R009913B
如果觉得我的文章对您有用,请随意打赏。你的支持将鼓励我继续创作!