置业投资女皇镇,一个靠谱的选择
• 开售2天近万名访客光临
• 买家彻夜排长龙抢购
•开售4小时卖出187个单位
• “3P”级经典楼盘
• 发展商强强联手,实力雄厚

尚景苑,究竟是一个什么样的神奇楼盘?
尚景苑项目是龙光地产和南山集团合作开发的大型住宅项目,该地块2017年以10亿新币的总价成交以来,一直受到各方的关注,经过精心地研发和设计,现在,它以崭新的姿态站在人们面前!

尚景苑位于第3区的女皇镇区(Queenstown),是属于新加坡的中央区。
尚景苑主体由三座经典设计的大厦组成,该项目集情怀、位置、尊享(3P)三大特色于一身:
情怀(Passion)——为了吸引投资者和各年龄段的尊贵买家,该项目共设置了80处豪华设施,同时配套了约2.14万平方米的庞大园林景观,容积率为4.2。
三大森林主题区为蕨类植物森林、热带雨林和热带雨林,中间还穿插著各种展馆、草坪和花园游泳池,打造了一个郁郁葱葱、宁静优雅的小区环境。

位置(Position)——女皇镇 (Queenstown) 是新加坡最具传统特色的城镇之一。
凭着它得天独厚的城郊位置,它目前仍然是新加坡最抢手的居住地之一,也是海外房产投资者热点区。
尚景苑位于安静的史德林路(Stirling Road)上,这里交通便利,属于本地租售两旺的热门居住地段。
尚景苑享有99年产权,距离女皇镇地铁站只有3分钟的步行距离,让居民在返回家园时既能享受便利,又能享受宁静。
从尚景苑所在地出发,无论是乌节路商圈,市区CBD,滨海湾金融新区,都在5到6公里距离左右,10分钟车程内。
周边配套齐全是项目的另一个亮点,因为它靠近无数的商业中心、娱乐和休闲设施、公园和学校。如宜家(Ikea Alexandra)、女皇道购物中心(Queensway Shopping Centre)、Anchorpoint Shopping Centre和亚历山大中心(Alexandra Central)。
住户还可以到亚历山大村(Alexandra Village),它就座落于女皇镇购物中心和艾格坊购物中心的对面。
那里的商店提供不同种类的货品及服务可以满足不同年龄的需要。
住户可轻易地找到青少年流行饰品、塑料制品、大众化价格的电器、特色藤家具、画廊、美发店、银行,美容院、诊所、摩托车陈列室、汽车零件商店等各种商店。
亚历山大村也设有亚历山大村熟食中心(Alexandra Village Food Centre), 那里有许多的本地美食摊位,是用餐的好去处。
尚景苑靠近的学校有女皇镇小学(Queenstown Primary School)、光道小学(New Town Primary School)、颜永成小学(Gan Eng Seng Primary School)、布兰雅坡小学(Blangah Rise Primary School)、女皇镇中学(Queenstown Secondary School)、女皇道中学(Queensway Secondary School)、红山中学(Bukit Merah Secondary School)、克信女子中学(Crescent Girls’ School)和达善中学(Henderson Secondary School)。靠近项目的国际学校有环球印度国际学校(女皇镇校园)(Global Indian International School,Queenstown Campus)、ISS国际学校(ISS International School,Preston Campus)等。
尊享(Privilege)——当你进入史德林路,首先映入眼帘的是三栋38到40层的高层建筑。
该项目包括20个天台和屋顶平台,居民可以在这里欣赏壮阔的大海美景、一览无余的动感城市景观和令人惊叹的绿色植被景观。

发展商实力雄厚
龙光地产控股有限公司创立于1996年,于2013年在香港联合交易所主板上市,是中国一家以住宅开发为主的一体化物业发展商,其发展核心区域位于亚洲和澳洲,开发产品为主要针对首次置业人士及改善型置业人士的住宅物业项目。
南山集团则是以房地产、铝业、纺织服饰、金融、航空、健康、教育、旅游等为主导的多产业大型跨国公司。
尚景苑占地超过2公顷,是女皇镇最大的公寓地段。地皮于2017年在政府售地计划下推出时,引起了市场的广泛瞩目,多达13家发展商热烈竞标,最后由龙光地产和南山集团联手,以10亿零272万新币拍下,相当于容积率每平方尺1050新币。
两家发展商财大气粗,以超过10亿的地价一举刷新了当时的政府售地纪录。

超高性价比,魅力之所在
尚景苑不仅拥有优越位置,还有奢华的设施和壮观的景色,无论居住还是投资,这里都是绝佳选择。
尚景苑由3栋38到40层高的现代化建筑组成,共有1259个单位,户型包括112个一卧房单位、115个一卧加书房单位、536个2 卧房单位、151个两卧加书房单位、263个三卧房单位、76个四卧房单位,面积约41到125平方米之间,项目更有6套4居室的顶层公寓,面积约为183平方米,为顶端圈层打造极致体验。
所有房间都配有进口厨房用具、卫生洁具和智能家居用品。

尚景苑超过2公顷的土地面积,为小区设施提供了无限精彩可能。
公寓设有多达80种的配套设施,包括两个50米和30米的大型泳池,长达500米的森林漫步小径,150平米面积的水中健身场地,135平米面积的大型儿童游乐场地,80平米的儿童水上乐园,网球场,大草坪,各种花园,SPA池,天际观景台等等,应有尽有。
除此之外,小区内还有一个500平方米大的幼儿园。

尚景苑非常注重户型空间的合理利用,秉承“优雅舒适、以人为本”的现代设计理念,将户型打造成空间高利用率的时尚家居。
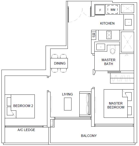
1.一卧室户型面积41平米(441平方尺)起。
还有一卧室+书房户型,面积47至66平米之间,现代开放式厨房,户型方正,充分利用室内空间。
下图为一卧室单位,面积41平米(441平方尺),价格$89.9万起

2. 两卧室户型面积介于58至91平米之间,厨房设计为可封闭式,适合中式烹饪的家庭,卧室面积相对较大,更容易大床布置。
还有两卧室+书房户型,面积63-91平米之间。
下图为两卧室户型,面积58平米(624平方尺),价格$106.3万起。

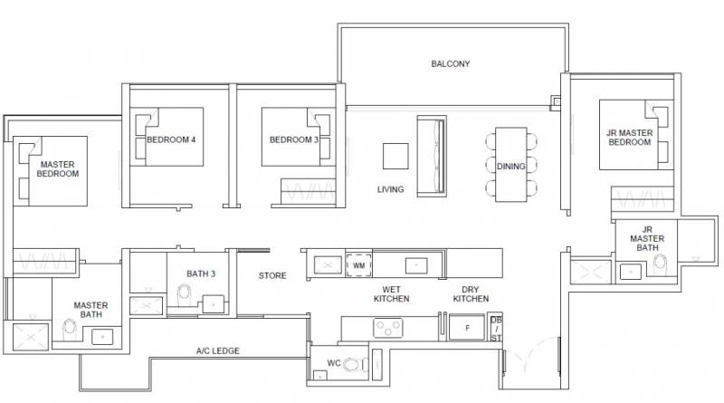
3. 三卧室户型面积介于82至119平米之间,主次分明,客厅宽敞。
还有三室一厅+佣人房户型,面积98平米(1055平方尺)。
下图为三卧室户型,面积82平米(883平方尺),价格为$156万起。

4. 四卧室户型,面积125平米(1346平方尺)起,双套房设计,厨房干湿分区,卧室私密性好,价格$217.9万新币起。

从长远角度看,尚景苑的升值空间良好,因为周边一带地块发展频繁。
项目周边其他地块的成交,也将继续拉动这个片区的整体增值,而且邻近地块的成交价格已超过$1800 新币/平方英尺并仍有上升趋势。
近代军事理论家、战略学家李德·哈特(B.H.Liddell Hart)爵士在阐述其“大战略”思想时,曾有这样的话:“尽管战斗是一种物质上的行为。可是其指导却是一种心理上的程序,战略愈高明,则愈容易把握有利机会,而只需付出最低的成本。”
在新加坡房地产市场角逐的决斗中,智慧的花朵往往开放在竞争最激烈的地方,这也很好的解释了为什么这么多买家排长龙购房。
在政策瞬息万变的当下,买房投资亦是一种谋略,成为尚景苑的业主,谋与勇、财富与荣耀将在您身上相映成辉!
如果觉得我的文章对您有用,请随意打赏。你的支持将鼓励我继续创作!