Casa Al Mare公寓位于第D18邮区的惹兰罗央勿刹(Jalan Loyang Besar)75号,靠近巴西立地铁站(Pasir Ris MRT)。
该公寓拥有越来越稀缺的永久地契,由Sustained Land公司开发,AGA ARCHITECT 建筑师设计。
Casa Al Mare公寓将建2栋5层楼高建筑,合49个住宅单元(套)和1个地下停车位(平均一户一个停车位)。
住宅单元包括11套1卧室、19套2卧室、10套2卧室加书房和9套3卧室。
公寓位于私人有地住宅区,又靠近大海,四周绿意盎然、环境幽雅。步行范围内拥有大量休闲娱乐、购物用餐等设施,如东市中心(Downtown East)。
公寓连结多条主干道和高速路如泛岛高速公路(PIE)和淡滨尼高速公路(TPE),交通便利。
公寓附近教育资源丰富,小学、中学林立,也靠近著名国际学校新加坡海外家庭学校(Overseas Family School)。
公寓紧靠樟宜商业园(Changi Business Park),一个东部的中央商业区,提供大量就业、租赁需求。
家,是休憩的港湾,需要安静的小区;
家,是放松心情的栖息地,需要休闲的环境;
家,也是一生的依托,需要永恒的住所。
人人都想要一个家,一个安静、可以放松心情的永恒栖息地,但不是人人都可拥有这样的家,因为这样的家已经成为稀缺资源。
这里让我们为您推荐这样的新楼盘,Casa Al Mare, 一个安静的、临海的永久地契新公寓。
购买新公寓,无论是自住还是投资,买家都需要考虑投资的潜能。
这是一个风险评估和承受能力的问题。只要是投资,就会有风险。今年7月5日,政府出乎意料地推出自2009年以来的第九轮房地产降温措施。
有些媒体称之为“重拳出击”,新措施将额外买方印花税(ABSD)在现有基础上进一步上调5%。
但对购买第一套房产的新加坡公民和永久居民而言,不受该条款限制,只是银行贷款与估值比率顶限收紧5%。
新一轮降温措施对购买第一套房产的新加坡公民和永久居民将是一个不错的消息。自该措施推出以来,发展商已推出各种各样的促销活动。
这样,不论买家购买的是第一套还是第二第三套房产,均可以较低价位购得心仪的房产。
而从目前的经济基本面而言,房价只是暂时被抑制或可能略有下行,但长远而言仍将继续前行。
低落的房产市场并不是政府希望看到的。
对于长线投资者而言,这是个低价买入的好时机。
而这时选购拥有永久地契的公寓楼盘将有更好的缓冲能力。
Casa Al Mare新公寓就是这样一栋楼盘,安静、舒适、方便、濒海、永恒并物超所值,且听我们一一向你道来。
楼盘优势卖点分析
Casa Al Mare
• 属越来越稀缺的永久地契楼盘,永恒、保值、长长久久;
• 属濒海公寓,与大海只有一步之遥,感受海天一色的每一天;
• 位于私人有地住宅区,四周绿意盎然、环境幽雅;
• 步行范围内拥有大量休闲娱乐、购物用餐等设施,如东市中心(Downtown East);
• 连结多条主干道和高速路如泛岛高速公路(PIE)和淡滨尼高速公路(TPE),交通便利;
• 教育资源丰富,附近小学、中学林立,也靠近著名国际学校新加坡海外家庭学校(Overseas Family School);
• 附近的樟宜商业园(Changi Business Park)是东部的中央商业区,提高大量就业、租赁需求。
• 政府东部发展计划和星耀樟宜计划将为公寓添砖加瓦,进一步提升投资潜力

楼盘概况和发展商简介
Casa Al Mare
Casa Al Mare公寓位于第D18邮区的惹兰罗央勿刹(Jalan Loyang Besar)75号,靠近巴西立地铁站(Pasir Ris MRT)(约1.0公里米),占地2,466.8平方米(26,337平方尺)。
Casa Al Mare公寓拥有永久地契,由Sustained Land公司开发,AGA ARCHITECT 建筑师设计。
Casa Al Mare公寓将建2栋5层楼高建筑,合49个住宅单元(套)和1个地下停车位(平均一户一个停车位)。
住宅单元包括11套1卧室、19套2卧室、10套2卧室加书房和9套3卧室。

开发商Sustained Land公司成立于2006年,总部位于新加坡,拥有为各类客户提供服务的子公司,合资企业和合作伙伴。
Sustained Land的使命是成为首屈一指的房地产开发商,创建美好家园,为居民提供不仅功能齐全,而且散发着时尚、品味和精致的高档住宅。
迄今为止,Sustained Land已经开发并完成了许多住宅项目。
如在新加坡,开发的项目包括Sturdee Residences、TRE Residences、The Poiz Residences、Sea Horizon、 Coastal Breeze Residences、 833 MB Residences、Tivoli Grande、The Line、38i Suites、Regent Residences和8M Residences等。由此可见,开发商经验丰富、享有盛誉、资金雄厚。
稀缺的永久地契海滨公寓,享尽附近的便利、娱乐设施和教育资源
Casa Al Mare公寓坐落在巴西立公园(Pasir Ris Park)最东端,北部临海,让居民濒海而居,心旷神怡。
“富贵贫贱在水神”。
“上善若水,水善万物而不争”。
水是生命之源,也是生命所需,临水而居,波光粼粼,静享繁华,如诗如画,尽享人生。
水是财气的象征,临水而居,旺事业、聚财气、享生活。
同时,这一带也是有地住宅聚集地,环境异常安静,是繁华都市的静地。
这一带的永久地契公寓并不多,从另一个侧面说明了其投资的回报潜能。

Casa Al Mare距离东西线东部的终点站巴西立地铁站(Pasir Ris MRT)约1.0公里,步行需15分钟,但附近就有巴士,2站即可到达。
从该地铁站可直达政府大厦地铁转换站(City Hall MRT)和莱佛士坊地铁转换站(Raffles Place MRT)。
巴西立地铁站的下一站就是淡滨尼地铁转换站(Tampines MRT),由此转换到滨海市区地铁线(MRT Downtown Line)。
通过地铁站旁的巴士转换站也可轻松抵达全岛各地。
公寓附近连结多条主干道和高速路如泛岛高速公路(PIE)和淡滨尼高速公路(TPE),交通便利。
距离新加坡樟宜机场(Singapore Changi Airport)、博览会(Expo)和樟宜渡船角码头(Changi Ferry Point Terminal)等只需约10分钟车程,到乌节路和中央商业区(CBD)也只需30分钟车程。

东市中心(Downtown East)距离该公寓不到300米,步行几分钟即可到达。
东市中心是东部的一站式娱乐与休闲中心,设有度假屋,大型的水上主题乐园和娱乐商场。
商场内设有零售商店、超市(如Fairprice)、各类特色小吃和餐厅、电影院、电动游戏中心、保龄球场以及一间超大型的室内家庭式娱乐操场。
值得一提的是离公寓800米的现代新型小贩中心(Pasir Ris Central Hawker Centre)。
这个中心两层楼高,设有42个熟食摊位和770个用餐座位,提供传统与现代美食。
稍远一点的超市有巨人超市(Giant,1公里)和晟菘超市(Sheng Siong,1.7公里)。
稍远一点的商场有White Sands(1.0公里)、Loyang Point (1.4公里)和Elias Mall(1.7公里)等。
公寓附近的康乐设施还包括Pasir Ris Park (0.4km)、Aranda Country Club(0.4km)、Civil Service Aloha Loyang Resort(0.7km)、PA Water-Venture – Pasir Ris (1.7km)和PA Staff Club 1.8km)等,为各年龄层居民提供各种各样的康乐服务。
公寓附近的教育资源,幼儿园、小学、中学、国际学校应有尽有。
如1公里范围内的幼儿园就有5家。
1公里范围内的公立学校有康岭小学(Casuarina Primary School)和巴西立小学(Pasir Ris Primary School )。
附近的中学有海星天主教中学(Hai Sing Catholic Secondary School )、励志中学(Pasir Ris Crest Secondary School)、青景中学(Greenview Secondary School )、洛阳中学(Loyang Secondary School )、美廉中学(Meridian Secondary School)和德明中学(Dunman Secondary School)等。
公寓也靠近新加坡海外家庭学校(Overseas Family School,OFS)。该校建于1991年,在校生3800多人,来自世界70多个国家。
OFS提供从幼儿园到大学一年级的课程。包括小学课程(PYP),中学课程(MYP)和教育文凭课程(DP)。
毕业后可申请前往美国、加拿大、欧洲、日本、韩国、澳洲等国家的大学就读学士学位课程,可以继续在OFS读大学一、二年级的课程,然后申请美国的加州州立大学,攻读三、四年级的课程,最终获得学士学位。
IB课程的6个学科包括语言和文学、语言习得、个体和社会、科学(生物学、化学、计算机科学和物理学、环境系统)、数学、艺术(视觉艺术、舞蹈、音乐、戏剧)。
东部发展远景和星耀樟宜计划
新加坡政府发展蓝图的目标是为新加坡人提供一个包容、宜居、具经济活力的绿色家园。
根据政府发展蓝图,淡滨尼北区将建造一个全新的公园,并将现有的Tampines Eco green和Sun Plaza等公园相连接,同时增添更多设施、商业中心、社区俱乐部和中小学等。
淡滨尼市镇枢纽 (tampines town hub) 将在淡滨尼区域中心大放光彩。
巴西立也已迎来全新的小贩中心。
政府在东部的发展计划主要反映在4个方面包括
1)将市中心变成充满活力的枢纽、
2)通过升级公园和新住房改善自然生活、
3)活跃社区的活动空间、
4)改善连通性。
如巴西立公园和海滩将重建,增添设施和活动空间;Pasir Ris West Plaza 和Elias Mall 将翻新升级。
除了市区线(downtown line)和东部区域线 (eastern regional line),环岛线(cross island line)也将开通,确保大部分的东部居民可以步行距离内乘搭地铁。
现有的东西线也将提升信号系统和增加20%的运输能力。
星耀樟宜位于新加坡樟宜机场第一航站楼,是一个综合性项目,集航空设施、购物休闲、住宿餐饮、景观花园等于一体,预计2019年初开放。
星耀樟宜不但提供航空设施,也是一个游乐胜地,可以在此购物、休闲、住宿和美餐。
星耀樟宜将大自然带入室内,营造出新加坡规模最大的室内花园,提供一个绿意盎然的休闲场所,让游客们沉浸在一系列有声有色的独特巧思,以及无限的感官体验与惊喜创意之中。
星耀樟宜将设有多个室内游乐设施,包括天空之网、迷宫世界、奇幻滑梯、森林谷、雨漩涡、星空花园、天悬桥、塑形树与花奔园、云雾缭绕的碗状活动区、樟宜机场数码互动体验馆等。
想像一下登上五层楼高的森林谷、欣赏星空花园(Canopy Park)、感受天空之网、迷宫世界、奇幻滑梯的感觉就让人期待不及。
再想像一下,这些设施就在您家附近,随时都可以去品味,将是如何的感觉呢?
另外,这些发展项目将会增添上万个工作机会和吸引无数国内外游客来到东部,来到巴西立,来到淡滨尼,来到樟宜机场。
意味着将有更多的人在附近置业和租房,毫无疑问会进一步提升附近的物业价值和租金市场。
为该公寓的投资回报提供强有力保障。

具有潜在的较高投资回报
Casa Al Mare
预计许多组屋升级者将转向购买大众私宅市场公寓。
市场成交数据显示,尽管东部房产的成交价高于平均水平,成交量在OCR的公寓中仍高于其余邮区。
2016年10月推出的东部公寓The Alps Residences,售出270套,平均成交价为每尺新元S$1,089。
而今年3月推出的The Tapestry卖出315套,平均成交价为每尺新元S$1,310,最高成交价达S$1,532。
也许许多潜在购房者认为今年7月的新一轮降温措施将使房价下调,准备静观市场再决定是否进场。
历史表明,多数降温措施并未改变房价的上升趋势,只是改变上升的速度。
政府也明确表示,降温措施是为了确保房价增长的速度符合经济的基本面。
事实上,新一轮降温措施出台后的第一个月(7月),新加坡的非有地私宅转售价仍上扬1%。
我们再来分析一下为什么大幅度下调房价的可能性不高。
2017年,集体出售总价达87亿新元,到7月份为止,今年的集体出售成交价已达88亿新元。
这些集体出售的公寓的售价每平方尺容积率许多都高于S$1,000(psfppr),这样,新建公寓的出售尺价至少应在S$1,500。
因此,这些公寓的售价不可能大幅下调。
另外,这些集体出售的屋主合计估计至少5,000个家庭,超出15,000人将需要购买或租用房产。
这为房产市场提供强大的购买需求。
据ERA分析,月收入在S$10,000-S$11,999之间的家庭从2005至2017年增长了137%,达101,902。
月收入在S$12,000-S$13,999之间的家庭从2005至2017年增长了189%,达79,974。
月收入在S$14,000-S$17,499之间的家庭从2005至2017年增长了302%,达107,062。
月收入在S$17,500-S$19,999之间的家庭从2005至2017年增长了416%,达52,886。
月收入超过S$20,000的家庭从2005至2017年增长了477%,达171,557。
一个月收入达S$12,000的家庭,可申请的银行贷款可达S$1,603,000。
如果这样的家庭只购买一套S$100万的公寓,需贷款S$75万(30年),若贷款利率为2%,购买新公寓的起始还贷款额为每月S$359.7,TOP后的还贷额为每月S$2,338。
从这样的分析可知,市场上具有购买新公寓能力的家庭近10年来呈急速上升趋势,充分说明市场的购买潜力。
综合以上分析,Casa Al Mare公寓以目前的价位看,仍具有潜在的较高投资回报。
户型设计与雅居欣赏
Casa Al Mare公寓镶嵌在郁郁葱葱的绿色公园与湛蓝色的大海之间,这里的每个空间,从地面草坪到屋顶露台,都为您和您的家人提供休闲和宁静的环境,每个单元都配有私人阳台,为您提供灵感空间,让您创造自己的避风港。
您可以打开窗户,欣赏大自然的美景,您也可以潜入游泳池或在屋顶露台上的铁板烧亭用餐,或者在孩子们在1层楼的儿童游乐场玩耍时烹饪烧烤,同时欣赏公园和蔚蓝大海的美景。
无论是1卧室、2卧室还是3卧室,所以单元都拥有一系列功能齐全的内部布局可供选择。
你的家就是你的灵感源泉,旨在改善您的生活品质,所有优质的配件和饰面都经过精心挑选。





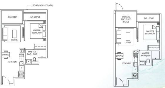
一卧室,合11套,套内面积44平方米(474平方尺)至55平方米(592平方尺),整套售价从S$760,000元起(尺价S$1,620起)。
特点是户型方方正正,布局合理,采用开放式厨房,无浪费空间。客厅还配备阳台。以楼的一卧室还有额外的私人空间。
这样的户型非常适合夫妻情侣享受二人世界,以及专业人士和学生及出租给高端专业人士。

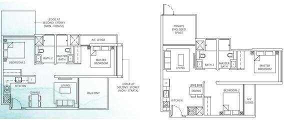
二卧室,合19套。套内面积68平方米(732平方尺)至72平方米(775平方尺),整套售价从1,120,000元起(尺价S$1,510起)。
特点是户型方方正正,布局合理,无浪费空间,客厅和主人房共享阳台。
这样的户型非常适合夫妻情侣享受二人世界,也很适合有个小孩的夫妻,以及专业人士和学生。
除了自住,也适合出租给高端专业人士。

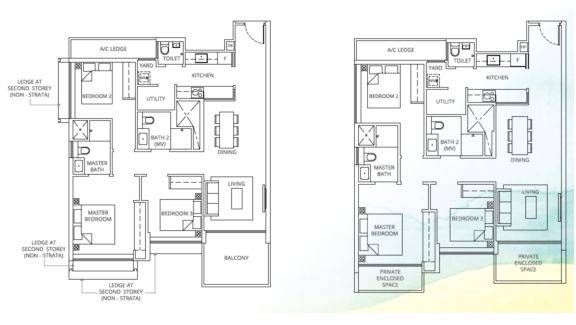
三卧室,合9套。套内面积102平方米(1,098平方尺)至105平方米(1,130平方尺)。
整套售价从1,730,000元起(尺价S$1,580起)。
共同特点是,户型方方正正,所有房间均可放置双人床,客厅配备阳台。
适合有2个小孩的夫妻,以及专业人士和学生,以及出租给相关高端专业人士。

小结
这里为您介绍了越来越稀有的滨海永久地契公寓,这栋公寓户型不多但设施不少;
平均一户一个停车位,内部设施高档齐全,安静优雅;
又靠近东部开发区以及樟宜商业园,升值潜能大,租金回报率有保障。
小米科技董事长雷军说“有机会一定要试一试,其实试错的成本并不高,而错过的成本非常高”。
这句话是否也可用在房产市场呢?
是否也应该试一试呢?
要知道,新一轮降温措施出台后的第一个月(7月),新加坡的非有地私宅转售价仍上扬1%。您的房子您作主,仔细想想,细细分析,拿起电话,寻求专业援助。
也许您会有自己明智的抉择,不错过任何机会。
如果觉得我的文章对您有用,请随意打赏。你的支持将鼓励我继续创作!