2018年度最火爆热卖公寓
·新加坡乌节路准现房·
永久地契
---银峰(New Futura)
一套宜居的艺术品
大自然赐给每个人相同的机会
---达·芬奇

时尚是物质的流行,格调才是天然的品性。
从不尾随品牌的虚伪表象
银峰(New Futura)公寓,让您轻松获得拥抱纯粹艺术的机会!
银峰公寓,倾城名筑,新加坡首席繁华核心所在!
全城顶级便利生活配套中心圆点,
即刻抵达高端生活挚爱所在!

实力雄厚
新加坡顶尖开发商城市发展(CDL)倾情奉献
名家手笔
Skidmore, Owings & Merrill LLP(SOM)原创设计, 乌节路的地标性建筑,独一无二的建筑外观,完美流线型阳台,艺术与商业的完美结合
钻石地段
身处乌节路商圈,繁华核心,无以伦比
豪华配置
5星级酒店礼宾管家式服务,重新定义高端生活概念
作为世界闻名的花园城市,很多人都会对新加坡的干净整洁和绿意盎然印象深刻,高度发达的绿化覆蓋率打造了人与自然和谐而居的画面,绿色资产也成为代表新加坡旺盛生命力的符号之一。身处此地,银峰公寓(New Futura)自然不会辜负这座城市的盛世美颜,在国际知名建筑设计公司Skidmore, Owings & Merrill LLP(SOM)精心设计与著名发展商城市发展(CDL)的匠心锻造下,银峰公寓成为完美承袭新加坡城市特质又融入人性化居住理念的最佳结合体。

进一步则踏入繁华的灯红酒绿,漫步乌节路;
退一步便守候喧闹中的宁静,徜徉罗尼山路。
一种悠然而居的生活意境,钻石级区位优势,
令您尊享无限从容与优越。
银峰公寓地处新加坡最中心的地段第9区,坐落于义安城背后的罗尼山路(Leonie Hill Road),地点介于乌节路和索美塞中间,距离这两个地铁站均为500米左右,步行10分钟距离
这里既有步行去乌节商圈购物的方便,又有罗尼山路那一份喧闹中的宁静,是很多高净值人士心仪的理想地段。在这个很多新加坡人梦寐以求的钻石地段,银峰公寓为您带来了非同凡响的极致居住体验
银峰公寓傲居新加坡最高尚的豪宅地段,荟萃城市高端资源。咫尺之遥即是乌节路顶级购物和娱乐商圈、洋溢着艺术与文艺气息的市政区、充满着商机与生机的中央商务区以及令人耀目的滨海湾。
与项目比邻的便是新加坡最著名的生活休闲区--位于新加坡河畔的罗拔申码头。罗拔申码头汇聚了各国美食和时尚潮店,而新加坡河延续著城市的历史与文脉,新加坡的过去与现在在此完美交融。而更重要的是,在如此优越的地段,您的生活将无限便利,而您的房产也将价值永存!

银峰公寓还畅享多维交通网络:地铁、快速公路、自行车道,令您心之所向,身之所往,都市繁华与享受随心掌控。银峰公寓地点优越,也是少有的临近3个地铁站的永久地契新楼盘,只需10分钟还可步行到达地铁市区线的世界城站(Great World City),这里连接银峰公寓与新加坡数个知名地标,如滨海湾,新加坡植物园以及汇聚新加坡顶尖名校的武吉知马区。此地的连通性无以伦比,显而易见,银峰公寓的区位价值也将逐年提升。

上风上水,成就豪宅尊贵。
名家手笔,方显御品豪门。
银峰公寓的设计
来自于Skidmore, Owings & Merrill LLP(SOM),它是世界上最大、最具影响力的建筑、室内设计、工程和城市规划事务所之一。自1936年创立以来,该事务所已在逾50个国家完成了10000多个项目。
银峰公寓,这个钻石地段的永久产权豪宅
,让您拥有动静结合的高端生活方式。银峰公寓的设计是由有机建筑与弯曲的铝檐篷组成,跨越两个不同层次且尺寸不同的现代化高层豪宅。
每逢夜色降临
,拥有2座大型青铜灯塔般大厦的银峰公寓将成为罗尼山路、乌节路一代新的时尚生活地标。每天晚上,青铜灯塔般的铝合金顶盖都会亮起耀眼的灯光,这光辉的色彩照亮天空。一个真正令人难以忘怀的美景,闪烁的灯光给整个公寓带来了童话世界的感觉,将您带入梦幻般的境界。
银峰公寓,令人印象深刻的展示了与自然、艺术和科技的无缝对接。

品味,居所有欲望之上。
盛宴是一场奢华的寻觅,
美食唤醒您味蕾最根本的需要,
厌倦奢侈烦琐的饮食体验,
银峰公寓带给您的,
是这拈之即来的人间美味。
位于乌节路的银峰公寓给您带来最大优势就是饮食非常方便,只需步行几分钟就可到达新加坡最大的购物区。那里的商场非常多,也提供了无数的零售、餐饮和娱乐设施。您可以尽情享受到各式各样不同的的购物体验和各国际的美食。如果想品尝到本地的美食,身居银峰公寓的您也会有无数选择。

宽敞、舒适且兼具实用功能的户型设计,每一个单位都享有一览无遗的迷人景致,一部贵族式的地产传奇由此开启!银峰公寓,邀您共享经典人生!
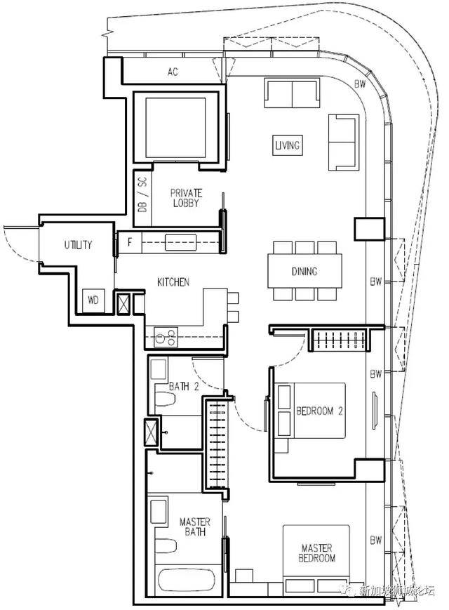
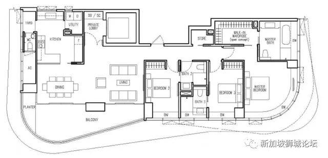
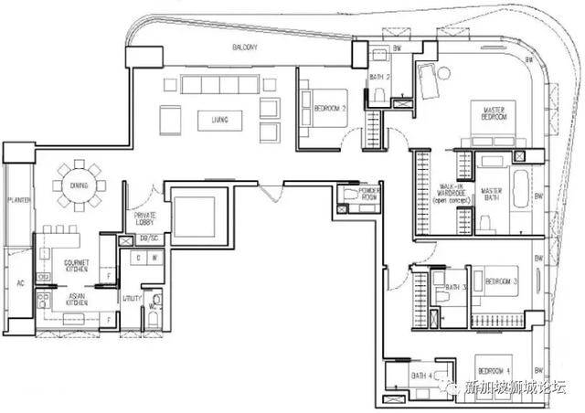
银峰公寓位于第9区的乌节区(Orchard),是属于新加坡的中央区,也是新加坡最高尚的住宅,同时是房地产投资热点之一。该项目的位置是位于罗尼山路(Leonie Hill Road)在浩然大厦(Horizon Towers)的对面。银峰公寓由城市发展集团(CDL)开发,占地约8086平方米,是属于永久地契。项目包括2座26层高的豪华大厦,共有124个单位,包括2卧房单位、3卧房单位、4卧房单位和2间特大复式顶楼单位(728平方米) ,其中3卧和4卧单位以及顶楼单位拥有180度无遮挡的市区景观。
由于火爆热卖,顶楼单位已经售罄,
其他户型包括:
1)经典2卧房户型,大气格局设计,带有私人电梯,空间设计合理,全落地窗尽收新加坡美景,意大利Cascina名牌家具,两个房间两个卫生间,102平米(1098平方尺)起,价格403.38万起。

2)高端3卧房户型,带有私人电梯,空间方正,布局合理,厨房、客厅、房间采用大空间设计,全落地窗尽收城市美景,意大利Cascina名牌家具,3个房间,3个卫生间,170平方米(1830平方尺)起,价格590.4万起。

3)豪华4卧房户型,带有私人电梯,超大空间,人性化布局,厨房、客厅、房间采用大空间设计,全落地窗设计,主人房拥有意大利Cascina牌私人衣橱,4个房间,4个卫生间,209平方米(2250平方尺)起,792.038万起。(有些房型有高顶设计)

6个匠心独具的主题花园
50多种配套设施
精心规划、典雅尊贵
顶级社区配套设施,迎合居家所需。
超大空中娱乐区让您尽享别致生活,
融观景、娱乐、休闲、运动等多功能于一体,
成就了您的典范生活。
所有单位拥有私人电梯间
地下室有253个可超级跑车的超大车位
平缓的车道斜坡专为保护您的豪车而设计
特有的公寓礼宾服务部,拥有5星级格拉梅西公园酒店(GramercyPark)一样的酒店式服务
超大型双层会所和俱乐部
David Harper的经典雕塑
银峰公寓缔造了豪宅社区神话
,社区里提供了超过五十种的公寓设施,它们分布在1楼,3楼,10楼,14楼,28楼以及30楼,包括了无边泳池,六个美轮美奂的主题花园,SPA池,健身房,双层会所,宠物草坪,儿童游乐场地等等,应有尽有。
别样的绿色景致配合独特的建筑风格
,在每一个细节都渗透著设计师的智慧,到处都洋溢着浓浓的园林艺术;那一池水、一棵树、一簇花、一个亭台、一个景点都散发着令人心动的艺术气息,个个成经典,令人悠然神往。

银峰公寓,临近便捷和优越
,每项配套设施,只是为更方便愉悦的生活贴身打造。金沙酒店般高配置无边泳池,零距离接触自然的空中花园,无以伦比的超宽视野,居于银峰公寓,您身心皆会陶醉于一种超然的境界。在游泳池旁边的桑拿房,让您在畅游之余享受一下美妙的蒸汽浴,宛如此世外桃源般的生活,尽在银峰公寓!

不仅社区配套齐全
,银峰公寓管理还为住户提供贴心的全天候礼宾管家式服务,管理日常琐事,免除后顾之忧,让您有真正贵族般的享受。
小结:
在银峰公寓,您生活的基本,却是别人眼中的奢侈。在银峰公寓,让您体会有格调的生活定义,自然而然,感受一份与众不同。银峰公寓,只为尊贵的您量身定制!给您一个典雅的品味生活!
在去年如火如荼的房地产市场中,新加坡各类非有地私宅的转售价全部上涨。在2018年7月6日,政府重拳出击,再次调高房地产印花税。然而,令人瞠目的是,同六月相比,新加坡7月份有地私宅转售价仍然上扬1%,于2017年相比,7月份有地私宅转售价格更是上升12.3%!
这说明什么?对,新加坡非有地私宅比美元还要坚挺!像银峰公寓这样秉承人性化、舒适感、高端服务三大主流风格的顶极豪宅将更加坚挺!!!它势必为您的财富升值保驾护航!!!行动力决定成功,银峰公寓欢迎您的大驾光临!
添加金牌经纪人吴洲微信,
常年免费获取新加坡最新
楼盘价格折扣和解答房产疑问。
若您对以上房产感兴趣或者想了若您有新加坡置业买卖需求,请免费联系新加坡眼特约金牌房产经纪人吴洲,常年买卖各类产业和征集二手房源,数百个楼盘数万款房产任您挑,也可足不出户在线视频看房www.kangongyu.com,我们办事,您放心。
关于吴洲:
任职于新交所上市企业,新加坡最大的国际性产业集团ERA担任高级营销董事,金牌房产经纪人(新加坡IEA房地产经纪协会2013/2014 年度金奖得主),他从业8年,秉承专业诚信,事无巨细的工匠精神从业理念,迄今为止,成交完的产业总市值以数亿新币计算,服务过数百位中高端客户投资新加坡产业,获得客户满意好评,为精英人士的首选金牌经纪人,如果您有任何产业需求,欢迎买家/卖家联系我们。
如果觉得我的文章对您有用,请随意打赏。你的支持将鼓励我继续创作!