
此文介绍项目属于新加坡金融区的地标式建筑,属于豪华公寓级,地处新加坡南部滨海湾金融区核心地段,单价只需21xx/平房英尺起(有兴趣者,请添加文章下面微信哦)
大家期待已久的第23栋已经开盘了
参考价格:1房$176万起,1+书房188.3万起,2+书房255.9万起,3+书房价格352.2万起,4房564.3万起(以看房时价格为准,价格为新币)
市区重建局4月初公布的数据显示,2018年第一季私人住宅创下8年来最大涨幅,代表高档住宅的核心中央区(CCR)的表现强劲,价格环比上涨5%。本地的一些豪宅项目如银峰和玛庭豪苑(Martinmodern) 销售表现亮眼,成交价格都达到项目新水平,银峰是今年1月推出市场,至今已经卖出93个单位,中位数约每平方英尺3478元。
这几年香港和伦敦的高档住宅市场价格大涨,反之,新加坡高档住宅这几年持续下跌,两者之间的价格越拉越大。新加坡高档豪宅市场从2017开始反弹,除了市场买气提高,受到有实力的外国买家看好新加坡高档豪宅市场,外国买家强劲需求推高,特别是来自中国、马来西亚和印度尼西亚的买家,还有来自日本、韩国和美国等。
新加坡稳定的政府、社会治安好、稳定的货币、优质的双语教育、适合小孩成长和低税收等等,是很多国外的高净资产人士喜欢新加坡的原因,纷纷来新加坡买房定居。
据联合早报报道,外国买家够豪宅上半年比率上扬,占比38%(引自联合早报),可见外国买家青睐新加坡豪宅市场。
项目要点点评:
新加坡地标项目:全新地标,官方认证,新加坡李显龙总理亲自上电视为“滨海湾盛景”做宣传,李显龙总理说滨海盛景为新加坡和马来西亚都会自豪的项目。
新加坡政府直接开发项目:由新加坡政府投资公司淡马锡控股和马来西亚国家投资公司Khazanah Nasional一起合作开发。新加坡李显龙总理和马来西亚首相那吉亲自来共同为项目主持开幕。

中央金融区绝对核心位置:引领新加坡现有中央金融区,新加坡作为全球四大国际金融中心之一,展望未来新加坡滨海新城,及政府将来计划周边新发展规划,引领新一代项目发展。
限量发行,住宅数量稀缺:整个滨海湾金融区,至少在一段时间内将再无住宅项目规划(都是政府在规划如何发展,所以大家应该懂得。物以稀为贵,绝对有投资价值。
独占众多资源:前无古人,后无来者的资源整合,让滨滨海盛景拥有其他任何项目都无法企及的投资优势。放眼世界,也属独一无二。
2018年交房大型综合项目:项目集住宅,甲级写字楼,零售商店为一体,由2栋34层住宅和2栋30层的甲级写字楼组成,住宅部分为1042个单位,项目已经完工, 全部采用高档项目才有的大户型设计,楼下为14万平方英尺的零售,主要在B2, 第1楼,2楼和4楼,其中4楼有2个特色主题大型餐厅。从超市Cold Storage,豪华餐厅,到2楼日常食阁,各种类型及档次一应俱全。

四条地铁线路就在项目门口,300米内地铁站包括滨海湾地铁站/Marina Bay MRT(南北线地铁、黄色地铁环线),市中心地铁站Downtown MRT(市区地铁蓝色线), 珊瑚道地铁站Shenton MRT,地下通道可直达Downtown MRT和Shenton MRT,其涵盖的地铁网络广度之大,其数量之多,全球罕见!加上其中心位置,方便去往新加坡任何地方,而且有三条线都是起始站,或者起始的头几站,不需要担心上地铁没座位

优质甲级办公楼,总楼面面积达188万平方英尺,坐拥中央商业区项目面积最大的绿化空间,也拥有全亚洲优质甲级办公楼中最大的无支柱楼面。建筑的第28和29层都拥有10万平方英尺的办公空间,贯穿东西两座办公楼,可同时容纳2000人,租户包括著名的美国脸书Facebook公司,全球四大会计事务所之一普华永道PWC,三菱UFJ金融集团,保诚保险Prudential和英国石油公司British Petrol等。
庞大的地下人行道网络:全空调,风雨无阻,同时遍布商业,餐饮等设施,地下人行道在新加坡这样的气候,实用价值非凡!周边写字楼工作人士,也可以很方便地来滨滨海盛景居住。
不管是走底下人行道,还是坐一两站地铁,滨海盛景住户可享受到:
滨海湾金沙娱乐城享受博彩之乐,摩天轮欣赏城市美景,去参加国际级会展,看明星演唱会,或尽享购物之乐等等。

滨海湾花园:健身,和家人度过美妙户外周末.
三个花园中最大的滨海南花园,于2012开业。其屡获殊荣的冷却温室和标志性的大树,使新加坡花园登上国际舞台。在温室花房里面,不断变化的花卉展示,包括郁金香,兰花,让人们感受到植物的美好及多样

新加坡河畔:享受精彩纷呈夜生活的乐趣
加上周边的公园,滨海盛景让住户拥有新加坡最丰富最多乐趣的生活,未来滨海新城建好后,精彩程度将更上一层楼!
可观赏每年新加坡国庆庆典,政府每年会在滨海湾搭建临时舞台,为庆祝新加坡国家生日,国庆阅兵仪式,烟花表演,直升机,战斗机表演,总统阅兵仪式等。

中央商业区CBD核心地段唯一的都市绿洲:项目中庭自带65000平方英尺绿色花园,简称“绿肺心脏”,有多达100多种不同植物,水景,光感应步行道,人造瀑布等,中央商业区唯一一个自带大型花园项目,其花园占地已超过很多新加坡小区总占地面积。
专为项目留出的金融区中央公园:纽约中央公园附近,公寓价格频频突破10000美金每平方英尺大关,相比滨海盛景的价格约新币21xx/平方英尺,是新币哦,可见滨海盛景极具投资价值。在寸土寸金的金融区,前后皆留出大块空地,居然留土地作为公园,如此大手笔,私人开发商根本无法复制。住宅单位面对的公园,为住宅留出长达约230米的绿化空间,政府提倡的工作,生活,玩耍一体化。

配置豪华装修:大理石地板,作为一栋高端公寓,所有单元均配备完美设施,使用国际一线品牌如美诺(Miele)、博宝德(Poggenpohl)和唯宝(Villeroy & Boch)等,Miele美乐厨具,德国 Villeroy & Boch唯宝洁具,博德宝Poggenphol橱柜等,简直是秒杀滨海湾周边现有项目。
专设两层楼设施:包括50米标准池,面积达200平方米室内健身房,水中健身设施,高尔夫推杆练习场,室内会所,餐饮会所,休闲贵宾厅,烧烤区BBQ,前台贵宾式服务丰富公寓配套设施。

该项目获得新加坡建筑局白金奖BCA Award,该奖项是颁给建筑使用可持续性的材料,提倡节省能源,节省水资源,小区内部的绿色区,更健康的室内环境。

该项目获得新加坡建筑局白金奖BCA Award,该奖项是颁给建筑使用可持续性的材料,提倡节省能源,节省水资源,小区内部的绿色区,更健康的室内环境。
国际建筑大师作品,得3座奖项,滨海盛景豪苑由德国著名建筑大师、可持续绿化建筑权威克里斯多夫·英恩霍文(Christoph Ingenhoven)操刀,独揽三座设计大奖包括最佳高层设计(Best High-rise Architecture)、最佳综合项目(Best Mixed-use Development)和最佳综合建筑设计(BestMixed-use Architecture)。
漂亮图片大放送,让您一饱眼福




户型点评:
方正实用,空间大:周边很多项目为追求项目外观看起来好看,牺牲了内部实用性。滨海盛景的居住空间更合理,更舒适(请参考下面户型图介绍)
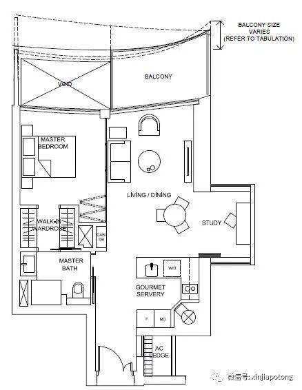
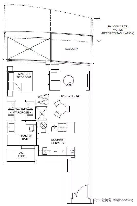
项目户型图介绍:(价格供参考,具体价格以看房时为准)
1房,有几种不同户型,657-700平方英尺,价格176万起
1+书房,70平方米/753平方英尺,带一个小书房,价格188.3万起

2+书房,108平方米/1163平方英尺,自带私人电梯,私密性好和显档次。价格为新币253.4万起,单价只需$2178/平英英尺起

3+书房户型,面积148平方米/1593平方英尺,私人电梯直接入户,私密性好和显档次,价格352.2万起,单价只需2210/平方英尺起

4房户型,面积从190平方米/2045平方英尺, 自带私人电梯,私密性好和显档次, 带大阳台,单位朝南,高楼单位可以看海景哦,价格为新币564.3万新币起

样板房照片供参考:





如果觉得我的文章对您有用,请随意打赏。你的支持将鼓励我继续创作!