萝卜点评,万事通说房事!

5%额外印花税调控措施,给火热的楼市踩了一记刹车。
也给大小发展商们当头浇了一桶冷水。
有一部分发展商立刻清醒了。
直接结果就是:
——已经消失很久,大家喜闻乐见的降价促销活动又回来了。

今天介绍的乌节路豪宅楼盘,发展商全面削价,承担额外印花税调控额度。
两卧公寓直降10万新币,三卧公寓直降18万,四卧公寓直降24万。
这处新加坡核心区的豪宅楼盘,就是Martin Modern(玛庭豪苑)。

玛庭豪苑位于新加坡第9邮区:乌节路区域,具体位置在River Valley一带。
River Valley是新加坡传统的高尚住宅区,历史可以追溯到19世纪,毗邻新加坡河畔,豪宅遍地,众多的新加坡本地富豪聚居此处。
大名鼎鼎的乌节路商业区,距离楼盘约1.2公里,步行15分钟距离,开车短短3分钟车程即可到达。
最近的世界城地铁站距离楼盘位置约500米,索美塞(Somerset)地铁站约1.2公里。
距离市区CBD约2.5公里,5分钟车程可到达。
滨海湾金融新区约3.8公里,8分钟车程可到达。

世界城购物中心(Great World City)距离楼盘约500米,这是一间零售店面超过4万平米的大型商场,拥有Zara,施华洛世奇等品牌进驻,开设了众多的餐馆,大型超市,品牌家居,电影院等。日常衣食住行的需求来这里足够了。
楼盘200米区域,有众多的精品咖啡餐饮店可供选择。
乌节路商业圈近在咫尺,世界级品牌购物,米其林星级餐厅,应有尽有。

对于家有学龄儿童的家庭来说,楼盘1公里内有立化小学,1-2公里有英华小学(Junior),这都是本地排名很不错,而且小一抽签竞争不大的好学校。
SOTA艺术学校,ISS国际学校,和新加坡管理大学(SMU),都在住家2-3公里距离,约5分钟车程。

喜爱绿地和大自然的家庭,周末可以到1公里外的福康宁公园散心。
占地达18公顷的福康宁公园,不仅拥有广阔草坪和众多景点,也是著名的露天音乐会:【星空下的芭蕾】的承办地点。

Martin Modern楼盘占地约一万六千平米,99年地契,设计兴建两栋30层高的摩天高楼,总共450个公寓单位,预计2021年建成完工。

发展商国浩置地(GuocoLand)具有丰富的高端公寓市场经验,建成的标志性项目包括市区的丹戎巴葛中心综合项目,武吉知马区的豪宅楼盘Goodwood Residence和Leedon Residence。
操刀整体景观设计的ICN公司,是新加坡国家美术馆,新加坡动物园等著名景点的设计者。
一句话概括Martin Modern的设计理念:
闹中取静,都市园林。

1.6公顷的广阔占地面积,八成会转化成植物庭院,设计多达15个各有特色的园林,包括聚会草坪,雨林花园,以及顶层的秘密花园等。
独一无二的五十米空中走道,竹林,流水瀑布,都令人印象深刻。


除了众多的林园景观,小区还设计了大量的公寓设施,包括50米泳池,网球场,宠物角落,水力按摩池,健身房,私人会所等等,应有尽有。

负责住宅大楼主体设计的首席建筑师Yip Yuan Hong,是四度新加坡总统设计大奖的得主,因为设计过许多优质洋房(GCB)而著名。这次玛庭豪苑的设计,也是借鉴了优质洋房的居住体验,获得不一样的设计灵感。
全部450个公寓单位,没有一室一厅户型。最小的两室一厅户型面积71平米,最大的四室一厅户型面积167平米。
优质三卧和全部四卧单位,采用私人电梯入户。
所有公寓单位都拥有宽敞的大客厅,以及3.2米的挑高空间。
客厅的阳台设有滑动屏风,雨天可以放下遮风挡雨,平时收起来,把客厅的空间延展到阳台。
阳台同样铺设大理石,进一步营造了客厅和阳台合二为一的大气感觉。

大户型单位特有的两个阳台的设计,一个设计在客厅外,一个设置在饭厅旁,极大的增加了空间采光,屋主也可以更合理的利用阳台面积。
干湿厨房分区。西式厨房可以小煮,中式厨房隔断油烟。
厨房电器配备的是米勒和SMEG等顶级品牌。
公寓户型从两卧到四卧不等。
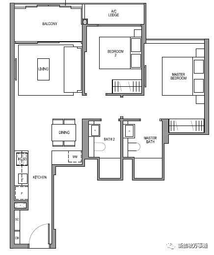
两室一厅两卫户型,现代开放式厨房设计,面积71平米(764平方尺)。5楼单位定价208万新币,发展商促销价197万6千新币,直降10万4千新币。
红字提醒注意,两卧户型的促销尺价2586新币每尺,一下子降到去年开盘时的价位了。

三室一厅两卫户型,面积101平米(1087平方尺),18楼定价317万3千新币,发展商促销价301万4千3百新币,直降15万8千新币。

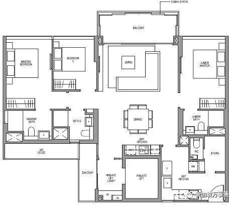
优质三卧户型,面积130平米(1399平方尺),私人电梯入户,干湿厨房分区,配备工人房。
5楼定价367万8千新币,发展商促销价349万4千新币,直降18万4千新币。
红字提醒注意,优质三卧的促销尺价2498新币每尺。

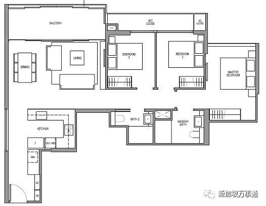
优质四卧大户型单位,面积161平米(1733平方尺),私人电梯入户,入门补妆间,主卧次卧双套间设计,干湿厨房分区,配备工人房。
9楼定价475万5千新币,发展商促销价451万7千新币,直降23万8千新币。
玛庭豪苑去年7月开盘,销售至今,卖出了57%的单位,平均尺价2728新币每尺。
从最近半年的成交价来看,这次是实打实的降价了。
特别是两卧户型和优质三卧户型,两卧房价降到了200万新币以下,优质三卧的尺价降到了2500新币每尺以下,值得关注。
有意的买家可以微信联系我实地看房,并且第一时间了解发展商最新报价。
感谢阅读萝卜点评。

彭威
新加坡万事通房产专栏作者
给大家带来一个好消息!萝卜点评网站隆重上线!!
撒花!鼓掌~~
网址:www.luobodianping.com/
快狂戳左下角“阅读原文”访问吧!
个人微信号:luobodianping
如果觉得我的文章对您有用,请随意打赏。你的支持将鼓励我继续创作!