萝卜点评,万事通说房事!

文章的开头,先说说七月五号,政府突然调高额外买家印花税(ABSD)这事儿。
当天傍晚宣布政策,第二天生效。事先没有放出一点风声,市场猝不及防。
然后,大家应该都听说“7.5.新加坡剁手夜”的故事了。

三个大型楼盘提前开盘,场面极度混乱,一晚上成交了1000套,总价超过15亿新币。
今天要重点推荐的,就是提前开盘的三个公寓楼盘之一:位于女皇镇地铁站附近的Stirling Residences(尚景苑)。
推荐原因简单粗暴:调——价——了。
针对上调的5%印花税率,发展商全面下调价位,不同户型的下调幅度在3%-8%之间。
我们来看最新价位:
- 两室一厅价位,从109万2千新币起,下调到106万3千新币起。下调幅度约3%。
-三室一厅户型,从149万8千新币起,下调到138万3千新币起。下调幅度约8%。
- 四室一厅户型,从228万8千新币起,下调到217万9千新币起。下调幅度约5%。
调整后的价位区间,在毗邻市中心的女皇镇地区,已经属于性价比极高的范围。
特别是三室一厅户型,138万起的价位,非常难得。
文章后面我会具体说说这个三室一厅的价位,发展商基本不赚钱了。值得还是不值得,大家自己考虑。
文章下面的篇幅,我会全面介绍尚景苑的项目细节,以供参考。

Stirling Residences(尚景苑),位于新加坡第3邮区:女皇镇 (Queenstown) 。
女皇镇属于新加坡南部的次核心区域,毗邻市中心,10分钟车程可到达乌节路商圈和CBD区域,是本地租售两旺的热门居住地。
今天介绍的新盘,是区域内最大型的公寓楼盘,近地铁,近商场,5分钟步行即可到达。

Stirling Residences的具体位置,距离女皇镇地铁站300米左右。
从公寓出发,步行可到达宜家商场,Anchor Point商场和女皇镇购物中心,这三处商场提供了大量的餐饮,生活和日用购物选择。
女皇镇小学位于公寓一公里内,家有学龄儿童的家庭上学无忧。

下面的区域地图,可以清楚地看到Stirling Residences相对于新加坡几个核心区域的位置。
真正的中南部腹地。

从楼盘所在地出发,东北方向去乌节路商圈,向东去市区CBD,东南方向去滨海湾金融新区,都在短短5-6公里距离,10分钟车程内。
往西开往新加坡国立大学的校园,仅4公里距离,7分钟车程可达。

南部的VivoCity购物中心,是新加坡本地最大的购物中心,购物,电影,餐饮,休闲娱乐,应有尽有。
从Stirling Residences开车过去,距离5公里左右,10分钟车程到达。
周末从VivoCity的步道散步去圣淘沙岛,沿路风光无限。

Stirling Residences占地超过2公顷,是女皇镇最大的公寓地段。
地皮于2017年在政府售地计划下推出时,引起了市场的广泛瞩目,多达13家发展商热烈竞标,最后由龙光地产和南山集团联手,以10亿零272万新币拍下,相当于容积率每平方尺1050新币。 记住这个地价。
两家发展商财大气粗,超过10亿的地价,一举刷新了当时的政府售地纪录。(顺便说一句,刷新的是总价,不是尺价。今年的一副乌节路地段,以每平方尺2377新币的惊人尺价刷新了政府的售地尺价纪录。)
Stirling Residences拥有99年地契,总面积2万1100平米,设计兴建3栋38层到40层的超高楼建筑,总共1259个公寓单位,包括一卧到四卧的各种户型,预计将于2022年4月前竣工。
超过2公顷的土地面积,为小区设施提供了无限精彩可能。
公寓将兴建多达80种的亲家庭设施,包括两个50米和30米的大型泳池,长达500米的森林漫步小径,150平米面积的水中健身场地,135平米面积的大型儿童游乐场地,80平米的儿童水上乐园,网球场,大草坪,各种花园, SPA池,天际观景台等等,应有尽有。
除此之外,小区内将为居民兴建一个幼儿园。




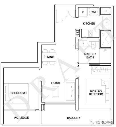
户型设计方面,一室一厅户型面积41平米,一卧+书房户型面积47-66平米之间,现代开放式厨房设计,户型方正,充分利用室内空间。
两室一厅户型面积介于58-91平米之间,厨房可封闭,适合中式烹饪的家庭下面的两室一厅一卫户型,面积58平米(624平方尺),2楼最新定价:106万3千新币。

三室一厅户型面积介于82-119平米之间。
下面的三室一厅两卫户型,面积82平米(883平方尺),2楼最新定价138万3千。
标红字注意,尺价1566新币每尺。
还记得这块地皮的地价吗?容积率1050新币每尺。
再看看这尺价。
基本没留下什么利润空间了。

三室一厅+工人房户型,面积98平米(1055平方尺),2楼最新定价:161万6千新币。
再次标红字注意,尺价1531新币每尺。
这块地皮的地价是1050新币每尺。

四室一厅+储藏室户型,面积125平米(1346平方尺),两个套房,厨房干湿分区,2楼最新定价:217万9千新币起。尺价1618新币每尺。

文章的最后,说说最近的楼市情况吧:一片混乱!
三个大型楼盘提前开盘,反应快的几处楼盘迅速推出5%-10%的调价优惠,抵消印花税率上调的冲击,但是随即又有几个楼盘取消了这个调价优惠,恢复原价。
最初的冲击过后,各方都在观望,都在等待趋势。
原本处于复苏上升周期的楼市,这下被政策强行干预,往后怎么走,谁也说不准,只能等市场本身的数据出来。
印花税率突然上调,房市震荡,市场分析哀鸿遍野。但从另外一个角度看,现在震荡的局面下,无论是个人还是发展商都是一片混乱,又何尝不是趁乱披沙拣金的好机会。
提前开盘的三个公寓新盘,为什么专门挑出Stirling Residences推荐。我只能这么说,女皇镇近地铁,近商场的大型楼盘,如果没有突如其来的印花税调整,发展商是不会定出这么低的价钱的。
好设计,好地段,好价钱,为什么不推。
感兴趣的买家可以联系我,参观样板房,对比户型,并且第一时间获取发展商的最新价位信息。
感谢阅读萝卜点评。

彭威
新加坡万事通房产专栏作者
给大家带来一个好消息!萝卜点评网站隆重上线!!
撒花!鼓掌~~
网址:www.luobodianping.com/
快狂戳左下角“阅读原文”访问吧!
个人微信号:luobodianping
相关阅读 :
萝卜点评| 滨海湾超级豪宅:滨海盛景(Marina One)二期来啦,电梯入户,地铁站环绕
萝卜点评| 东海岸地铁学区房,永久地契三卧159万起,即将售罄!
萝卜点评| 滨海湾超级豪宅:滨海盛景(Marina One)二期来啦,电梯入户,地铁站环绕
萝卜点评| 东海岸永久地契学区房,近地铁,三卧公寓159万起!
萝卜点评 | 东部地铁公寓楼盘,四卧五卧大户型打折促销,售价直降三万新币!
萝卜点评 | 滨海湾豪宅二期新房推出,海景尺价2300新币起,即刻入住!
萝卜点评 | 新加坡商业房产投资介绍:永久地契写字楼
萝卜点评|新加坡那些遭疯抢的豪宅~
萝卜点评| 这才是坡岛真正的地铁房:地铁站10米圈的新公寓~
萝卜点评 | 如今的坡岛市场,还有比面粉便宜的面包吗?
新加坡和中国的房子到底有什么不一样?这篇文章终于讲透了~
萝卜点评 | 2018财政预算:买方印花税(BSD)调整政策详细解读
萝卜点评 | The Crest楼盘新年大促销,折扣8万8千, 5%首付即可入住!
萝卜点评 | 市场唯一提供24个月延迟付款的楼盘,5%首付即可入住,三卧首付 11万起!
萝卜点评 | 新加坡式拆迁:浅谈新加坡的土地征用政策
萝卜点评 | 2018年新建成的公寓项目大盘点!
萝卜点评 | 乌节路商圈高端公寓即将开盘!永久地契豪宅,享受VIP预售折扣!
萝卜点评 | 新加坡房市年度总结,关键字:触底反弹、房价涨、集体出售......
萝卜点评 | 新加坡房产税缴纳指南
萝卜点评 | 新加坡唯一的三钥匙公寓,原来是它。
萝卜点评:乌节路精品豪宅 - Gramercy Park(格美华庭)
萝卜点评 | CBD罕见的永久地契地铁新盘,全部精装修,即刻拎包入住!
萝卜点评 | 新加坡房事目前是什么情况?
萝卜点评 | 红山区的小金沙,即将建成,已售出九成!
萝卜点评 | 新加坡公寓打折促销!尺价1530新币起,24个月租金收益保证!
新加坡的房子到底多少钱?
5分钟走到地铁站的新公寓竟有这么多,总有一款适合你~
新加坡核心区的投资型公寓 – 索菲亚山庄
住在新加坡市中心的豪宅是怎样一种体验~
拎包入住坡岛豪华公寓不用立还房贷,是怎样一种体验
【萝卜点评】在东南亚最有风格的街区生活,是怎样一种体验~
萝卜点评 |新加坡第七条地铁线:裕廊线24个新站位置详细解读
如果觉得我的文章对您有用,请随意打赏。你的支持将鼓励我继续创作!