在楼市一片红火,私宅价格飞涨的2018年,组屋(HDB)都有不少超过$100万的价位,时至今日,新加坡真的还有$50多万的新公寓吗?
答案是:Riverfront Residences,一个拥有超级early bird计划的超大型生态公寓即将面世!楼盘样板房参观计划已经推出并正在接受注册中!
1
目前新加坡房公寓市场性价比最高的优质楼盘
2
东北区核心地带,本地顶尖发展商强势联合标地开发
3
前身为Rio Casa公寓,人气旺地,经典再现
4
3万6811平方米超大占地面积,新加坡首席生态豪宅

价格决定一切
2017年以来,随着集体出售地段与政府售地的价格接连创新高,房价接连攀升,原本在观望的买家已不再迟疑而纷纷进场。在这样的潮流下,Riverfront Residences这样超大型公寓的价格堪称全国罕见!作为理想的投资和居住房产,Riverfront Residences公寓不仅拥有旨在提供度假式生活的优质自然环境、1472个户精装修可拎包入住的住宅,还拥有21个分层屋契有地住屋和6个商铺,可以为小区提供零售和餐饮的服务。
米尔顿·弗里德曼(Milton Friedman,1912-2006)是著名的美国经济学家,他以研究宏观经济学、微观经济学、经济史、统计学、及主张自由放任资本主义而闻名于世。他曾经说过:“宏观上看,价格决定货币供求和资金流向。从微观上讲,价格决定经济单位的购买和投资决策。”1卧室户型仅$578,000!!!这,就是决定您在Riverfront Residences购房的原动力!

新加坡首席生态豪宅
纵横于实龙岗河畔(Serangoon River),挺拔的高层建筑群,面水而立,气势浩然,雄伟壮观,空前绝后,是位于新加坡东北部独一无二的滨海高级豪宅---Riverfront Residences。Riverfront Residences共有1472个居住单位,将是第19区最大的私人公寓区。Riverfront Residences依水而建,随时随地欣赏岸边美景,这将毫无疑问地增加了中心地区的独特性。自古以来,人类就是依水而居,能人志士往往对水景情有独钟。临水而居,享居高临下的优越之感。推窗可见海阔天空的美景,而非密集排布的高楼大厦,享受这一望无垠的视野自由感,体验那放飞自我的无拘无束。闲暇的傍晚,河畔徜徉,放松身心,美不胜收。这一切,都是Riverfront Residences给您带来的真实感受!
旺地重建,发展商实力雄厚
Riverfront Residences的所在地正是在2017集体出售成功的私有化的中等入息公寓,Rio Casa。Rio Casa当时是以5亿7500万元集体出售给由金成兴(KSH)、豪利控股(Oxley Holdings)、联明(Lian Beng)及Apricot资本组成的合资公司Oxley Holdings Limited。Riverfront Residences属于旺地重建而并非荒地新建,要知道,Rio Casa的业主现在各个因楼而旺、身价不菲,福气运气自然传承。

拥抱自然的东南区核心位置
Riverfront Residences 位于第19区的后港7道(Hougang Avenue 7),这里是属于新加坡的东北区。Riverfront Residences享有将近300米的美丽河畔风景,水景近在咫尺。公寓外的后港7道就有公车站,在公车站乘搭公车3个站就能抵达后港市中心(距离后港市中心800米左右,也可以步行),那里有很多食阁、商铺、超市和大型商场,以及后港地铁站(Hougang MRT Station,NE14)。地铁站营运的东北线非常方便,可直接通往市区如多美歌和牛车水。如果您喜欢驾驶爱车出行,那么您14分钟即可到达新加坡樟宜机场(Singapore Changi Airport),16分钟即可抵达乌节路(Orchard Road),18分钟即可抵达金沙购物中心(Marina Bay Sands),19分钟即可到达新加坡中心商务区(CBD),这是因为公寓非常靠近淡滨尼高速公路 (TPE) 和加冷-巴耶利峇高速公路(KPE),为您带来交通便利。

Riverfront Residences一带环境清幽,面向 Sungei Serangoon 天然河道,您可以享受长达300米的美丽河景,摇曳多姿的绿树,温柔拂面的清风,在繁忙的都市生活中找回轻松自在的家的气氛。此外,距离仅800米的榜鹅公园也是让您能健康慢跑或者欢乐骑车的最佳场所,环园绕一圈,您就可以发现这里别样的胜景:巨大的芭蕉扇叶,垂直的垂叶榕根藤,笔挺的水杉,这些都是有灵性的植物。小径上漫步,天空是由枝叶组成的巨大绿盖,不时的缓缓飘落几片数叶,在风中旋转,如果是清晨,你还可以踩着厚厚如柔软地毯的叶子,感觉园林的古朴之美,虬曲的枝干相互缠绕、错落,组成一幅幅奇妙的图画。

最好的投资,莫过于让孩子成长在一个有文化底蕴的环境里。好的居家环境应该时刻弥漫着浓厚的文化氛围。公寓最大特色之一便是周边名校云集,星罗棋布。收获有很多种,与高素质学府为邻也是人生的一笔宝贵财富。

上风上水,顶级性价比
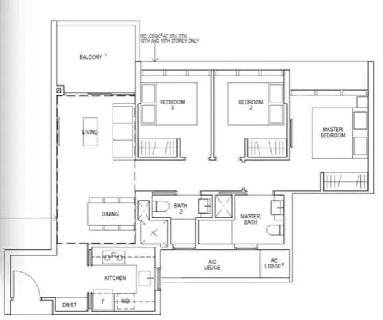
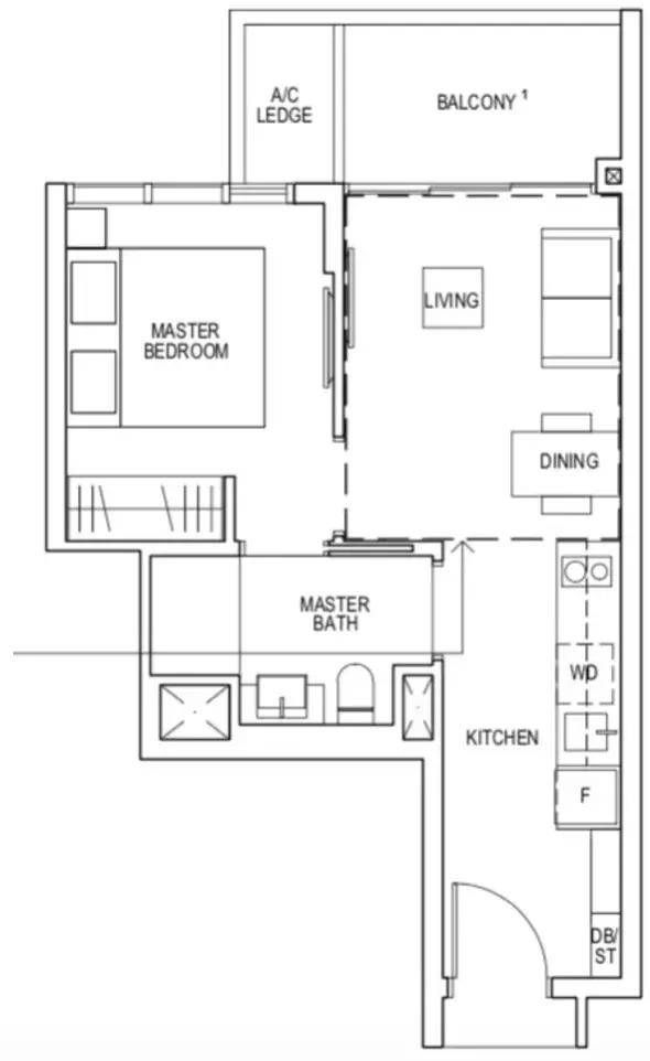
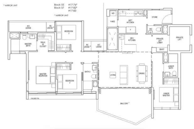
Riverfront Residences的所处地段占地约36,811平方米,容积率为1.8,是属于99年地契。项目包括9栋17层高的建筑,共有1451个私宅单位,21个分层屋契有地住屋和6个商铺。项目拥有的公寓单位户型包括281个一卧房单位,202个一卧加书房单位、430个两卧房单位、436个三卧房单位、34个四卧房单位、51个四卧房私人电梯单位和17个五卧房私人电梯单位。单位面积介于43平方米至196平方米:
1.一卧房单位,房间方正,空间利用率高,套内面积43平方米(463平方尺)起。
2.一卧房+学习室户型,租住均优,空间独立,套内面积48平方米(517平方尺)起。

3.两卧房居室,格局清晰,主次分明,单卫生间设计,让房间利用率超高。套内面积56平方米(603平方尺)起。
4.三卧房户型,大空间设计,家具自由摆放,多种家装设计,随心所欲。套内面积81平方米(872平方尺)起。

5.四卧房户型,设计经典,布局合理,动静分明,套内面积131平方米(1410平方尺)起。
6.五卧房户型,坐拥总统套房般感受,超豪华布局,私人电梯保障生活隐私。套内面积156平方米(1679平方尺)。

Riverfront Residences小区内周边设施齐全,共有101个配套设施,包括3个会所,3个设有私人泳池的度假式的用餐凉亭,3个游泳池,分别是75米,50米和25米长,网球场等等。

Riverfront Residences目前1卧室户型单位售价仅为$578,000。作为一个还有超大型自然生态公寓,Riverfront Residences如此之低的价格以及如此之高的性价比在该地区实属罕见,相信该项目一旦投入市场必将引起轰动和抢购。

2018,正是新加坡楼市大展鸿图之年,房价攀升已成定局,无数买家已经抓住机遇毅然进场。像Riverfront Residences这样集生态美景和超高性价比的楼盘已经为数不多,机不可失,相信拥有敏锐眼光的您绝不会错过这成为Riverfront Residences尊贵业主的最佳时机!即刻联系吴洲获取最新折扣信息。
添加金牌经纪人吴洲微信,
常年免费获取
新加坡最新楼盘价格和解答房产疑问。

若您对以上房产感兴趣或者想了解新加坡其它任何房产楼盘信息,请免费联系我们的特约金牌房产经纪人吴洲,常年专业买卖全岛任何新楼盘/二手公寓,开发商直接销售代理,买房无经纪费,一个电话或微信的距离,最新科技定位数百个楼盘数万款房产任您挑,总有一款适合您,外国人也可贷款。

关于吴洲:
任职于新交所上市企业,新加坡最大的国际性产业集团ERA担任高级营销董事,金牌房产经纪人(新加坡IEA房地产经纪协会2013/2014 年度金奖得主),他从业8年,秉承专业诚信,事无巨细的工匠精神从业理念,迄今为止,成交完的产业总市值以数亿新币计算,服务过数百位中高端客户投资新加坡产业,获得客户满意好评,服务过的客户群体有新移民,企业家,艺人,教授学者和房地产开发商等,常年专业提供【新加坡任何公寓楼盘和商业地产以及地皮的买卖投资服务,买私宅无任何经纪费用】,如果您有任何新加坡产业需求,欢迎买家/卖家联系我们,常年买卖各类产业,我办事,您绝对放心。
如果觉得我的文章对您有用,请随意打赏。你的支持将鼓励我继续创作!