永久地契,东海岸新贵,
Amber 45公寓璀璨现世!
匠心力作,本地顶尖开发商华业集团联合著名设计公司ADDP倾情奉献
黄金区位,新加坡第15区高端公寓,步行8分钟到达东海岸
世代传承,永久地契,千秋功业,惠及子孙
低密集度公寓设计,皇家花园般的高隐私写意生活
权威地产商坐镇,投资潜力无穷
Amber 45公寓的发展商为华业集团有限公司,简称华业集团(UOL Group Limited),它在1963年创立,业务主要在新加坡、中国等地区经营房地产,旗下酒店业务为泛太平洋酒店集团有限公司,股份在1975年于新加坡交易所主板上市,同时被大华银行收购。
华业集团每年的经常收入超过3亿元,这有助其面对景气循环周期。
截至全球金融风暴以前,集团在集体出售市场是最大的土地买主之一,并已成功将全数房子售出,无需与其他同业一样面对沉重的罚款。
正在进行的发展项目也有不错的预售成绩。
华业集团收购Amber 45这块地的地价是周边最低的,也就意味着在2018年即将开盘的这些15邮区公寓里,Amber 45可能比它们尺价便宜$S300到$S500左右。
Amber 45地皮是去年15邮区集体收购中最便宜的,未来售价极具竞争力!

学区购物中心林立,生活便捷方便
新加坡第15邮区是私人公寓最集中的地区,这里很多公寓濒临海岸,属于新加坡高档住宅区之一,也是本地公民和喜欢海景的买家最喜欢的邮区之一。
第15邮区也被房地产市场誉为潜力无穷的传统黄金邮区,Amber 45步行8分钟即可到达东海岸,更是黄金邮区中的黄金地带。
Amber 45坐享该地区稳定品质的消费层,巨大的市场消费基础以及庞大的租房人群打造坚固的市场价值链。
Amber 45周边配套设施完善,名校林立,tanjong katong 小学就在1公里范围内,加拿大国际学校,chatsworth国际学校,Tao Nan School(道南小学)都在5到15分钟步行距离。
Amber 45临近商业街区,数步之内就可以抵达马林百列市镇中心,那里附近有许多商场如I12 Katong、加东购物中心、加东村、白汇广场等等。
那里还有许多的商铺、餐馆、超市、银行等等,提供非常充足的购物和娱乐设施。住户无需出远门就能购买到琳琅满目的商品及日常用品,欢乐购物尽在咫尺。
此外,在马林百列市镇中心那也有个湿巴刹及熟食中心,Amber 45的住户可在那买到新鲜的蔬菜、水果、肉类等和经济及美味的本地美食,让您在都市休闲的风格走廊享受Amber 45为您量身订做的高品质的便捷生活。

交通发达便利,出行便捷无忧
Amber 45 位于新加坡 15 区的格安珀路 (Amber Road),靠近马林百列路,步行550米即可到达未来的安珀地铁站(Tanjong Katong MRT Station),位于该地铁站的汤申-东海岸地铁线将在2023年开始运作。
住户可以乘搭该地铁线直通道乌节地铁转换站(Orchard MRT Station)。该地铁站将有地铁南北线可让Amber 45 的住户通往新加坡其他角落,十分便利。
对于驾车人士来说,Amber 45的交通也非常方便,只需通往附近的主要道路,丹戎加东路,就能连接东海岸公园大道(ECP)、泛岛高速公路(PIE)和加冷-巴耶利峇高速公路(KPE)。
只需使用这些高速公路就能抵达新加坡的任何地方。从Amber 45开车只需8分钟就可以到达中央商业区(CBD),而到达乌节路也只需约10分钟的车程。

永久地契,多元设计,典雅氛围
Amber 45的所处地段占地约6490平方米,地契是属于永久地契。
Amber 45采用低密集度公寓设计,让住户享受皇家花园般的高隐私惬意生活,公寓为1栋高21层楼的豪华大厦,大厦内共有139个高档单位。
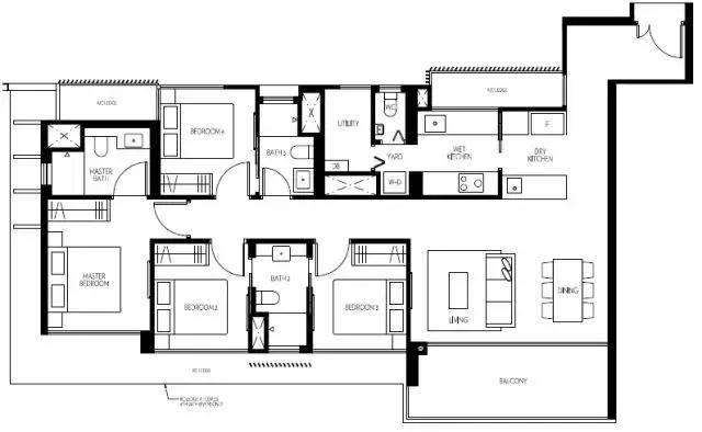
户型分别是60个两卧房单位,40个三卧加客房房单位以及39个四卧房单位。每个单位的面积都很充足。单位面积介于57平方米至167平方米。

Amber 45让您身临其境的感受体验高雅生活,浓郁的英伦情调被浓缩在公寓社区内的园林里。
小区内绿意浓浓,碧波漫漫,小区外几步便是商场繁华,人流涌动,这完美的动静结合,只有在Amber 45才可以独享,社区花园的花香、咖啡香交织著飘散在Amber 45的午后,成为独特的皇家花园味道。
在这里停留,就是充满格调且高品位地享受生活。

标准的50米现代化泳池和水上乐园区被尊贵的业主们分享。
或是游泳池内享受自由游弋的惬意,或是在池边的健身房里挥汗如雨,或是静坐树旁品茗观景,无拘无束、写意浪漫的生活,尽在Amber 45。

Amber 45是著名设计公司ADDP的经典之作。
室内设计极具现代豪华风格,配备设施完善的开放式厨房和名师设计的高档家具,从无遮挡的落地玻璃窗望出去,狮城海景,一览无余。
Amber 45的室内设计体现了传统生活的雍容、典雅,兼顾实用,同时又富有朝气的生活气息。

客厅采用大开间设计,满足您一家人对美好生活的梦想,让幸福一步到位。大阔空间,增添生活乐趣,与家人多一份相聚,即是多一份快乐!

具体户型介绍如下:
(1)2卧房单位:户型方正,布局合理,无浪费空间。开放式厨房,客厅适中,阳台大小合理。室内面积57平方米(614平方英尺)。

(2)豪华型2卧房单位:布局合理,双卫双卧,隐私性好,空间利用率高,室内面积65平方米(700平方英尺)。

(3)3卧房+客人房户型:款式新颖,独特客人房,灵活舒适,三卫生间,室内面积105平方米起(1130平方英尺)。

4)4卧房户型:布局合理,动静分明,通透性好,室内面积125平方米起(1346平方尺)。

集海景房、学区房、永久地契、商圈核心位置于一身,是豪宅永恒价值!高端品质,成就Amber 45的经典内涵!
海景房、学区房、永久地契、商圈核心位置的集大成者---Amber 45。
Amber 45,用优雅的身姿演绎健康自然、关怀友邻的人文环境,让您的家园时刻弥漫幽雅尊贵之气。从名人到名门,Amber 45是关键一步,事业有成之后,势必问鼎名门,以一座豪华名宅的内涵、价值,成就您家族荣耀,打造传世家徽。
Amber 45,热切盼望您的到来,成就当代名门望族,共铸辉煌!
如果觉得我的文章对您有用,请随意打赏。你的支持将鼓励我继续创作!