优质洋房区、核心商圈、地铁站旁豪宅、顶尖教育资源环绕,
景悦苑
(Margaret Ville),
将成为楼市新霸?
开门见山,经典再现,
笑傲周边,高下立判。
景悦苑(Margaret Ville)的四大特点:
1、身居优质洋房区,周边低层建筑群,狮城美景一览无遗
2第三邮区的高端私宅项目,二、四、六、九、十邮区傍身周围,乐享顶级豪宅区、中央商圈、著名旅游景点环绕。

3、黄金地段,无比便捷。步行仅5分钟即可到达女皇镇地铁站,前往周边诸如乌节路商圈、荷兰村、武吉知马等地仅需十分钟车程。

4、顶尖教育资源环绕,名副其实的学区房。景悦苑附近拥有多所中小学及国际学院,距离最近的女皇镇小学仅有两分钟车程,光道小学、亚历山大小学、新加坡国立大学、新加坡理工学院等优质名校学府环绕着项目。优越的师资力量、设施齐全的教育配套,居住在景悦苑的孩子步行即能准时入校,让孩子在优质的教育环境中成长。
为什么说景悦苑将成为楼市新霸?
女皇镇一带虽然私宅项目林立,但大多单位已售出,可供买家选择的新私宅不多,必然会对景悦苑销售带来利好因素。
景悦苑是由亚洲著名发展商 MCL Land 所开发,项目位于新加坡第3邮区的玛格烈道(Margaret Drive),这是属于新加坡的中央区,项目具体位置在玛格烈通道和联邦道的交界处,就在女皇镇中学(Queenstown Secondary School)的旁边。
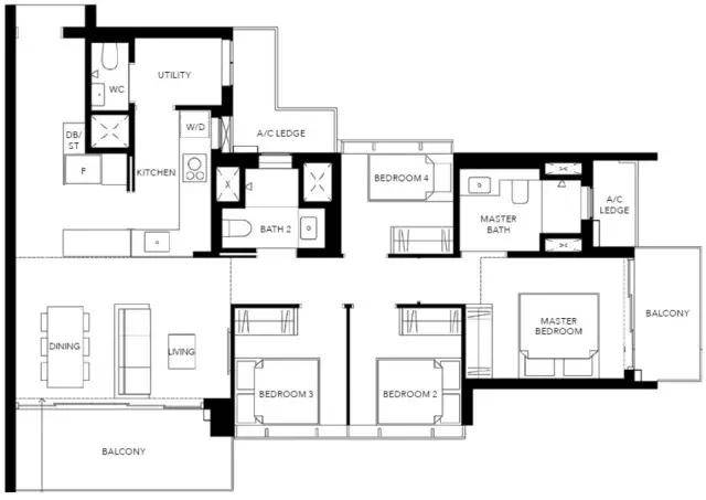
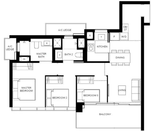
景悦苑的占地面积约4810平方米,容积率为4.6,是属于99年地契的1座40层高的豪华建筑。景悦苑共有309个私宅单位,户型包括39个一卧房单位、39个一卧加书房单位、78个两卧房单位、36个两卧加书房单位、78个三卧房单位和39个四卧房单位。
“楼市新霸的预估”并非草率,这是根据公寓本身及附近的设施、开发商信誉度、价位、所处的地段、交通、教育资源、投资回报等所作的综合性评估。
景悦苑的总体报告---地处黄金地段,具有丰厚的文化历史背景,附近设施完善、交通便利、教育资源丰富;著名发展商建造,名师设计,价位合理,租住均可,升值空间大,具有中高端租户来源,属高回报投资项目。
集历史文化、新兴发展与休闲娱乐于一身的楼盘
景悦苑位于新加坡成熟住宅区女皇镇(Queens town)。女皇镇的历史比现代新加坡建国历史还悠久,可追溯到新加坡独立之前。1953年,英国官员为了庆祝英国女王伊丽莎白二世登基而将这里命名为女皇镇。

曾经的新加坡改良信托局(Singapore Improvement Trust,建屋局前身)就建在女皇镇。后来这里建造了新加坡的首批租屋。几十年来,女皇镇发生了天翻地覆的变化,周边兴建许多新建筑、新设施,其周边的东西地铁线也已延伸,为这里注入新的活力。

景悦苑附近就有步行即可抵达的大型商场宜家(IKEA Alexandra)、亚历山大中心(Alexandra Central)、女皇道购物中心、Anchor point购物中心和The Star Vista商场等,那里有许多新加坡的当地美食、休闲娱乐设施。如果您时间充裕,步行远一点就可以到达新加坡著名的综合娱乐、购物或休闲中心如怡丰城(Vivo City),圣淘沙(Sentosa)和花柏山公园(Mount Faber Park)等。附近还有多条巴士路线,如51, 64, 111, 145, 186, 195, 970和NR5等,您可以乘搭这些巴士抵达全岛各地。

外观设计华丽,单位宽敞舒适,室内外配套设施齐全,
名牌的装饰配备彰显高雅气派
景悦苑外墙采用流线型设计方案,平滑自然,与周边自然风景融为一体,高贵而不突兀,经典而不庸俗。

景悦苑配套设施齐全,本着“自然和谐”的社区理念为住户打造简洁安逸的生活,让住户心灵重归平静,享受自然。

景悦苑室内采用智能家居配套设施,人未到家即可掌控家中一切,智能温度调节、指纹锁、实时监控等现代化家居高端功能一应俱全,为住户打造高质量、绿色环保的品味生活。

室内设计方面,景悦苑同样秉承“细节决定一切”的理念进行在格局设计和家具布置,无论是客厅、卧室还是阳台,都兼备美观与实用,以流畅的线条感加上精美装饰材料带来的生活质感,让住户有着最完美的居家体验。

景悦苑室内单位面积介于
43平方米至110平方米,其中:
1.一居室户型套内面积为43平方米起(463平方尺),价格为$86万新币起。

一居室户型
2.一居室+学习室户型,套内面积为49平方米(527平方尺)起,价格$98.04万新币起。

一居室+学习室户型
3.两居室户型,套内面积为61平方米(657平方尺)起,价格为$115.63万新币起。

两居室户型
4.两居室+学习室户型,套内面积为77平方米(829平方尺)起,价格为$145万新币起。

两居室+学习室户型
5.三居室户型,套内面积为85平方米(915平方尺)起,价格为$158.6万新币起。
三居室户型
6.四居室户型,套内面积为110平方米(1184平方尺)起,价格为$211万新币起。

四居室户型

小结
一个良好的生活居住体验,自然离不开蓝天白云、绿色生态的自然环境,景悦苑亦是如此。景悦苑周边公园遍布,Kent Ridge Park、Mount Faber Park、Telok Blangah Park...鳞次节比,植物园距离这里也仅有七分钟车程。清晨慢跑,沿着林荫小道,穿过重重乔木,在呼吸天然氧吧的同时体验著惬意的生活...这,就是您的style。
女皇镇一带的私宅供应量相对短缺,私宅与组屋价格差距较小,私宅升值潜力相对较高。与其它私人公寓相比,景悦苑的价位相当合理。此外,与景悦苑邻近私人公寓的租金回报率都非常高,房价也在持续上涨,相信刚刚投入市场的景悦苑也同样拥有巨大升值空间,潜力无限。景悦苑是您的最佳选择,也是您成功的最好证明。景悦苑,期盼您的到来!
如果觉得我的文章对您有用,请随意打赏。你的支持将鼓励我继续创作!