
期盼已久的设计师们终于考察回来了,这次新加坡之行,他们从设计的角度,以专业的眼光对新加坡住宅,酒店以及商业进行了一次较深入的考察。
现代风格案例:翠城新景(The Interlace)

The Interlace(翠城新景)是由享誉国际的大都会建筑事务所 (Office for Metropolitan Architect,简称OMA)精心设计,并由亚洲最大的跨国房地产公司之一 ——凯德新加坡进行开发。
项目总建筑面积约为17万平方米,未来将设有1,040套公寓以及开阔的室外空间和景观。基地与Kent Ridge, Telok Blangah Hill及Mount Faber公园连接形成9公里长的绿化带,同时被Alexandra路和Ayer Rajah高速公路环绕。
奥雷·舍人认为:“这一设计直接探讨当代社会中共享空间与社交需求的问题,并通过提供针对热带环境的多种室内和室外空间,兼顾公共居住空间和私密性的要求。”
31栋住宅,每栋6层楼高,尽管看起来不高耸入云,却拥有相当于24层楼的高度。以六边形的格局相互联结叠加,构成6个超大尺度的通透庭院,其交织的空间形成一个包括空中花园、私人和公共屋顶平台,提供休闲娱乐的场地。这栋高尚公寓的前卫设计也在建筑业激起两极化的评语,拥护者认为公寓设计充满科技化的几何美感,成功创造视觉上的新奇。但是有者也指公寓设计所采用的层次叠砌架构手法,非常类似俄罗斯(Soviet Architects)传统建筑之风格与特色。然而,无可否认的是,这栋高尚公寓肯定会成为新加坡另一个独特的地标。


这个项目有趣的地方是,这么多零散的体块如何组织成一个如此高密度住宅体,但同时又保证私密性和从效果图中看到的长范围的视线景观。叠置的策略带来的第二个结构是,公共空间可以与热带植物交织在一起。从平面图上看,块与块之间的空旷空间形成了一系列内庭院。从而使次项目形成了一个丰满的竖向社区,而不是此区域中随处可见的单调塔楼项目。大量的住宅辅助设施也交融在这片绿色中,为社会交流、休闲和娱乐提供了大量机会。


公寓新颖、优美及具气派的外观,错综层叠的设计其实有助提升和培养社区意识,除了提供隐私和宁静的空间,也综合考虑所处地质条件、风向、天气条件、绿化设计等。以确保每名住户都拥有最佳的风景、最好的通风、最好的阳光;获得平等及最接近自然的居住条件!跳脱新加坡传统的住宅孤立的、垂直的建筑模式,探讨延伸热带居住空间的可能性,提出一种与自然环境协调并注重交流互动的热带生活方式。

通过开阔的视野和雅致的建筑空间,保护公寓私密性的同时,The Interlace提供公共社交活动空间。配套居住设施交错部署在绿色景观中,满足社交活动、休闲和娱乐的需求。

私人阳台提供公寓大型室外空间和个人的种植面积。通过开阔的屋顶花园、具有热带景观的天台和层叠的阳台增加绿色自然环境。同时将地面车辆的流通率减少到最低限度,使得项目的绿化面积达到最大化。此外加上对日照、风量和基地微气候条件所进行的环境分析,以及低耗能战略的引入。树木,植物和花卉是组成住宅计划的一部分,为居民提供一个郁郁葱葱的热带环境,享受休闲活动的设置。





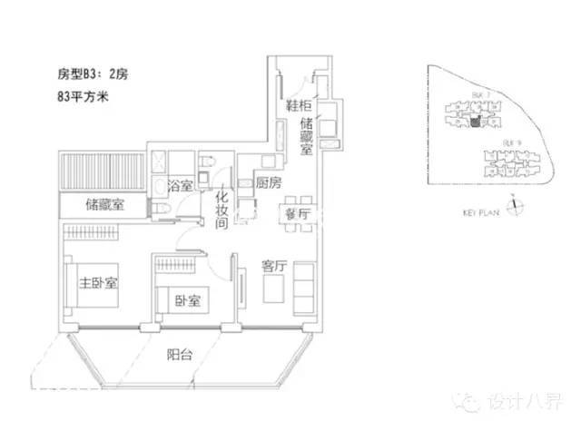
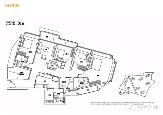
户型图:

现代风格案例:丽敦豪邸( d‘leedon公寓 )
项目地点:新加坡礼敦岭
开发商:凯德新加坡(35%份额)
旅店置业(22.5%份额)
摩根史坦利房地产基金(22.5%份额)
美联发展有限公司(20%份额)
主设计师:扎哈·哈迪德建筑事务所
建筑设计:雅思柏设计事务所
景观设计:ICN国际设计有限公司
室内设计:扎哈·哈迪德建筑事务所(会所及主要电梯大堂)
雅思柏设计事务所(住宅单元及其他区域)
占地面积:78043 m2
绿化率:46%
容积率:2.8
荣获奖项:新加坡建设局(BCA)颁发的“绿色建筑标志超金奖”
新加坡建设局(BCA)颁发的“通用设计标志超金奖”
新加坡公用事业局“活跃、美丽、干净”水源认证


丽敦豪邸(d'Leedon)坐落于充满活力的第十邮区(District 10)核心地段,地处礼敦岭沿线,占地面积达78 043 m2,拥有99年产权。它是新加坡迄今为止最大的私人公寓项目,也是世界知名建筑师、普利策克建筑奖桂冠得主扎哈•哈迪德(Zaha Hadid)在新加坡设计的第一个高层住宅项目。


项目包括七座36层的住宅塔楼和12户半独立式别墅,共推出1703套公寓,其周边分布著优质平房和12层高的公寓楼。作为该区域唯一的高层住宅项目,丽敦豪邸拥有开阔的景观视野,既能欣赏新加坡美丽的天际线,又能饱览绿意盎然的植物园和武吉知马天然保护区。丽敦豪邸以其独特的建筑线条和高耸的塔楼结构成为该区域的地标。

扎哈·哈迪德(Zaha Hadid)的设计方案始于对选址地段,即花拉路(Farrer Road)轴心地带的地貌与环境及周边的高级平房的研究。由此,意在勾绘出都市生活的活力与丽敦豪邸周边的天然绿意。流畅的线条呈带状分布,并预留出塔楼的位置,使之拥有绝佳的朝向和城市视野,同时有利于挖掘项目的景观特色和开展各项活动。

七座塔楼坐落于景观中,底部略微呈倒锥体,占地面积仅为总用地的22%。这种设计为景观和生活设施的打造留出了更大的空间。
住宅塔楼以基地景观为背景,如同公园中拔地而起的巨型人工乔木,高耸于私家花园中。倒锥体的塔楼底部既缩小了占地面积、形成更多的开放空间区域,又有助于打造私密性良好的花园空间,界定了项目的尺度和密度。
塔楼平面形如花朵,住宅单元便是一片片的“花瓣”,从而打造了一系列造型独特的建筑。纵向来看,因参数与户型的不同,每层平面布局随着“花瓣”形状及数量的变化而变化。如此一来便形成了创新的建筑基调:根据场地条件、内部组织和结构优化得出一系列参数,由此来定义相应的建筑肌理。
建筑体量的纵向切割形成了富有特色的建筑立面,实现了对流通风,使得“花瓣”呈三维立体形态。塔楼顶部采用层层退台式设计,形成了建筑肌理与天空之间的自然过渡。建筑体量的适当旋转、阳台与立面镶板的巧妙应用共同打造了项目的多样化特征,使每个住宅单元从里到外均拥有独一无二的位置和外观。



12座半独立式别墅沿场地西侧而建,与优质平房毗邻。别墅的设计体现了体块与玻璃的结合,既与服务区在视线上保持隔离,同时又确保了主要空间如客厅和主卧的通透性。丰富而细腻的立面设计与场地相契合,让住户既享有别墅式生活方式,又能坐拥便利的生活设施。




清新水景、茂盛植被、运动铺地、城市广场和绿色原野共同打造了五条特色景观带。每条景观带各具特色,分别以山地生态系统中不同的元素为主题:石、林、水、丘陵和草甸。
景观节点沿五条主带布置,既保留了现状布局,又与环绕场地的主轴相呼应。这些轴线被引入场地内部,并相互连接形成一系列的方向线。沿线设置了不同的景观主题,营造了独特的空间体验和氛围,并形成了通往塔楼和公共设施的清晰导向。





为了满足不同的需求,丽敦豪邸推出了多种的公寓户型,包括单卧+书房单元、双卧单元、三卧单元、四卧单元、阁楼住宅、三层花园住宅和半独立式花园别墅。公寓面积从54.81 m2到222.97m2不等,阁楼及三层花园住宅的面积则在260 m2到603.86m2之间。


现代风格案例:吉宝湾映水苑(Reflections at Keppel Bay)

著名的纽约Daniel Libeskind建筑师事务所近期完成了新加坡吉宝湾沿岸的“吉宝湾映水苑”综合住宅项目。项目占地面积840000 平方米,共1129户,包含公寓和别墅两种物业类型。其中公寓为2居到4居的高层公寓,面积从94到284平米;别墅户型为2房到4房,面积从90到371平米。

建筑外观如波浪般起伏,包括六幢拔地而起的高楼与11栋低楼层的公寓楼共1,129套住宅单元。项目配有按摩泳池、俱乐部、室外游泳池、健身房、网球场、儿童游泳池、儿童游乐场、蒸气桑拿、烧烤区、停车场。


精心编排的结构显现出优美的曲线轮廓,从建筑内部可近观海滨风情、遥望圣淘沙岛、俯瞰邻近的高尔夫球场以及极目花柏山,全方位美景尽收眼底。每个楼层依次变化,消除了直线排列的呆板感,同时也为每个楼层展开各种不同视角的画面。





高楼顶部皆有花园,包围在一个开放式的结构框架中,在视觉上延续了整幢建筑的形式,并做了一个优雅的结尾。人行天桥在建筑的不同楼层相连,铝制立面在阳光照射下闪闪发亮,反映着不断变换著的日照与海洋景象。






建筑概念草图

户型图

现代风格案例:晴宇(Sky Habitat)

晴宇(Sky Habitat)位于新加坡最好的居住区之一——碧山15街,是由凯德新加坡和三菱地产(亚洲)、清水建设(Shimizu Corporation)联合开发的一个项目。项目由知名建筑师萨夫迪(Moshe Safdie)设计,由两座高38层的塔楼组成,两座塔楼用三座步行天桥花园连接,共包括509个单位,占地面积为11997平方米,拥有2层地下停车场和众多的公共设施。
晴宇(Sky Habitat)改变了传统的设计风格,创造了三维立体外形,分形几何的外部模型,动态梯形结构,密集开放式花园,使得每户都拥有私人阳台。

两栋公寓大楼由三架“空中花园”桥梁连接起来,而不是单独的住宅楼,为住户提供了共享的花园和休闲空间,提供了开放式与可渗透的全局空间,非传统连接创造了更加通风与自然采光的居住环境。高层住户还可以享受到美丽的碧山公园绿化景观。地面上,宽阔的空间用来建造绿化公园、室外活动室、游泳池、小径,让住户充分享受他们的休闲时光。




此外,晴宇(Sky Habitat)设计独到的另一处在于将别墅独有元素融入到高楼,让摩天式公寓也能有如别墅,各单位特色各异之余,还有不同坐向方位的开放空间。高层住户还可以享受到美丽的碧山公园绿化景观。地面层,宽阔的空间用来建造绿化公园、室外活动室、游泳池、小径,让住户充分享受他们的休闲时光。
环境优美,空气清新。晴宇(Sky Habitat)周边公园林立,碧山和谐公园、碧山公园环踞在项目周围,同时晴宇(Sky Habitat)距新加坡国家植物园也仅6分钟的车程。葱郁垂直的绿化景观,结合自然采光、通风和宽阔的视野的绝佳地理位置造就了晴宇(Sky Habitat)这一新的碧山风景线。



户型图:



现代风格案例:华彬·汉美登(Hamilton Scotts)

项目名称:华彬·汉美登Hamilton Scotts
项目地点:新加坡斯克茨(Scotts)路37号
建筑规模:30层,56户
设计师:AMA Architects(意大利)
开发商:华彬投资(中国)集团
华彬·汉美登Hamilton Scotts,亚洲唯一“空中私车门廊寓所”,拥有空中双车位的顶级豪宅。汉美登位于新加坡市中心富豪云集的第九邮区,距乌节路商圈步行仅需五分钟。






256㎡阔朗三居空间布局,7米超大面宽阔景阳台,360°全景扫描视野,每个公寓单元机会均好地将12公顷GoodwoodHill热带雨林历史保护区尽收眼底,顶层约1800平米的空中博物馆,约600平米屋顶空中花园,为领袖精英会员提供一个休闲的社交私属领地。
沿街立面采用干挂石材及玻璃幕墙

内侧立面大部分采用玻璃幕墙,面向园林景观尽可能的打开视线,部分实墙为涂料。

建筑细部


空中停车库外部效果

楼下泳池

架空庭院

园林景观
新加坡建筑考察之行(二):酒店篇
设计八界 2015-06-05
设计是一场疾风行走,同时也是一站随性停泊。看过了新加坡颇具代表性的住宅,设计师又给我们带来了每天不一样的住宿体验。
新加坡樟宜机场皇冠假日酒店(Crowne Plaza Changi Airport) By WOHA

樟宜机场皇冠假日酒店外观设计非常独特,9层楼高大厦由一朵朵缅栀子花(俗称鸡蛋花)形状的装饰包裹。朵朵真人般大小的鸡蛋花在热带阳光下争艳,像是提醒旅客他们正身处阳光明媚的热带岛国。从每一间客房窗口望出去,朵朵鸡蛋花也成了风景的一部分。鸡蛋花是常见于热带的花卉,花瓣洁白,花心带淡黄色,真像蛋白包着蛋黄因而得名。

鸡蛋花设计是这家酒店的轴心,它只出现在酒店外墙上,每间客房的浴室玻璃墙则出现鸡蛋花浮雕。酒店把鸡蛋花造型融入建筑设计,希望能在现代化环境中营造出悠闲的热带度假风情。


该项目的基地本身问题重重,被遗留的空间内有3个机场停车场通风口,4条繁忙的进场路和一条环形停车场坡道。基地周围环绕的是大规模的基础设施,遍布著飞机、火车、汽车、铝、钢和彩色玻璃。



建筑师的解决方式是设计一个漂浮着的精巧雅致的花饰笼子,来过滤和柔化周边环境的影响,内部遍植热带植物。客房似漂浮于一片由丛林、水面和棕榈树组成的绿毯中,悬浮在混杂的道路之上。



立面表达了酒店的一些设计概念,作为全球化交通网络上一个带来感官冲击的节点,它应该是模数化而有机的,精巧而复杂的;由一系列中心和终点组成的明亮网络;透过抽象的兰花图案的网络,能够瞥见私密的热带花园。




建筑和室内表达的灵感来源于东南亚织物和热带丛林。立面是一层三维的蜡染织物结构,形成了60%的立面遮阳。自然通风和采光的走廊布满了弯曲的水平向彩绘条纹,与垂直向彩色铝板的肌理形成对比。公共区域包裹在木材贴面和中式金属网之中。舞厅抽象化了在雨树遮盖下的森林,顶棚由穿孔金属板制成。客房浴室遍布著盛开的鸡蛋花。材料被有意处理得粗糙不平,带来强烈的感官冲击力。色彩、质地和密实性对比强烈,以对抗商业航空环境的温和平淡。



新加坡圣淘沙岛嘉佩乐酒店(Capella Hotel Singapore) By Norman Foster

酒店委聘来自伦敦的普立兹克建筑奖得主、著名建筑事务所 Foster + Partners 创办人之一 Norman Foster 爵士主理酒店的建筑设计。



设计巧妙地融合了新加坡的新旧风貌,酒店外观呈“8”字形,而 8 在中华文化中是个吉利的数字。工作人员将在两栋Tanah Merah(或马来文中的"红土")旧式平房中迎接游客的到来。这些殖民时期建筑可追溯到1880年代,经过整修重建之后,能完美呼应全新增建的酒店与度假小屋。在新加坡嘉佩乐酒店的每一处,皆融合了传统与现代、自然与艺术的设计。庭院部分栽植了原生植物;海浪轻轻拍打着圣淘沙岛的海岸,随着每一个浪花释放出大自然的能量。




酒店门前的草坪上,矗立著名雕塑家 Bernar Venet 的巨型钢铁铸造装置艺术雕塑。


除室外宏伟的视觉艺术品外,酒店室内亦布置不少视觉艺术品,其中不容错过的是位于酒店宴会厅顶端、新加坡首见的圆形玻璃天幕。天幕中心悬垂著瑰丽的大型雕塑,由约10,000支透明玻璃管组成,与圆型天幕互相呼应,该雕塑由旧金山艺术家 Nikolas Weinstein 特别为酒店而设计。









新加坡圣淘沙湾W酒店(W Singapore-Sentosa Cove)By Rockwell

新加坡圣淘沙湾W酒店座落在新加坡圣淘沙岛上最富盛名的圣淘沙湾区,酒店设计融合了岛上独有的大自然元素并加入W全球酒店的现代时尚风格,纽约著名设计公司Rockwell集团将这座拥有240间客房的酒店注入有别以往的活泼气息,酒店内的每一个角落都充满着惊喜。兰花、紫檀和传统花卉纺织品是设计师的灵感来源,酒店的外部装饰材料和图案都来自圣淘沙湾。W酒店的整体设计反映了海岛的气候、文化、情感和环境,同时也保留了 W品牌的别致有趣和时尚前卫。












酒店客房设计






新加坡滨海湾金沙酒店(Marina Bay Sands Singapore) By PWP

新加坡滨海湾金沙项目是PWP事务所与新加坡政府合作,Moshe Safdie和当地的园林设计师,园艺师团队以及工程,建筑和商业的专业人士共同创建的景观项目。该项目在新加坡滨海湾入口处。它包括一个公共海滨长廊,公共屋顶长廊和1000m长的景观桥。位于57层的空中花园面积2.5英亩,横跨3个酒店大楼的屋顶。在这里可以欣赏到整个新加坡市中心的美景。



滨海湾金沙酒店包括了12万m2的世界级会议和展览设施;3栋56层的高层酒店,总共容纳了约2 600个房间;面积为1hm2(2.5英亩)的空中花园建于高层塔楼之上,为人们提供了可以360°欣赏城市和海景的场所,并为酒店提供包含游泳池、餐馆以及花园的室外娱乐设施;坐落于海角具有标志性的金沙博物馆;两座设计先进可以容纳4 000个座位的剧院;1座赌场;大量的购物及餐饮场所;以及一个沿着步行街、可容纳1万人的室外活动广场。







滨海湾金沙度假酒店共有2560个房间,每晚房价高达350英镑。其中有250间豪华客房、一座大型商业中心、一座会议大厦、两座剧院、一座超现代主义的博物馆,同时还拥有多家餐厅和酒吧。走进度假酒店,购物者可以乘坐根据17世纪中国传统船只样式打造的小木船在一条室内运河内游玩。此设计让人很自然想起同为美国拉斯维加斯金沙集团投资的威尼斯人。







新加坡皮克林宾乐雅酒店(Parkroyal on Pickering Singapore) By WOHA

酒店位于其中心商业区,是新加坡WOHA建筑事务所的杰作,负责景观设计的为Tierra事务所。皮克林宾乐雅采用花园酒店理念,贯彻节能,已获新加坡绿色建筑最高荣誉BCA绿色建筑白金奖,因其为首间使用太阳能酒店,获得太阳能先锋奖。酒店楼高16层,12层高的塔楼坐落在5层高裙楼楼顶上,塔楼每隔三层悬挑一座空中花园。裙楼被波状预制混凝土包围,WOHA称之为地形建筑、会呼吸的建筑。









建筑流动的几何体给人一种高耸入云之感,塔楼每隔三层客房拥有悬挑的空中花园,上面种满了热带植物,它已成为城市绿地的一部分,与邻近公园融为一体。酒店拥有自我遮阳功能,悬挑而出的空中花园和相邻的三座酒店客房大楼都能起到遮阳的作用,客房楼层立面采用低辐射玻璃。酒店顶楼的屋顶花园可将全城风光一览无余,独家兰花贵宾会所位处该层,并配有私人会议空间、图书馆和专用的贵宾会所门房。酒店五层设有可俯瞰城市的无边界泳池,设备先进的健身中心,特色的鸟笼休息凉亭及长达300米花园走道。













除了体验酒店设计之外,设计师们每天还要游走在新加坡各具特色的商业建筑中。敬请期待吧。
新加坡建筑考察之行(三):商业篇
看过了新加坡豪宅,体验了高大上的酒店,怎么能够少了那些极具代表性的新加坡商业建筑呢?
新加坡星商业(The Star Vista,One-north,Singapore)

建筑师:Andrew Bromberg of Aedas
地点:新加坡,1 Vista Exchange Green
客户:Rock Productions Pte Ltd and CapitaMalls Asia Limited
面积:62,000 sqm
用地面积:19,200 sqm
总面积:Retail 24,000 sqm / Civic 8,000 sqm
项目高度:75 metres
土木与结构工程师:Parsons Brinckerhoff; Thornton Tomasetti (Before DD Stage) Alt Limited Mott Macdonald Andrew Bromberg of Aedas Artec Consultants Inc Langdon & Seah Singapore Pte Ltd
环境工程师:Arup Singapore Pte Ltd
防火工程师:Arup Singapore Pte Ltd
立面:Alt Limited
机电:Mott Macdonald
室内设计:Andrew Bromberg of Aedas
剧场与声效顾问:Artec Consultants Inc
照明:Lighting Planners Associates(S) Pte Ltd
景观:ICN Design International Pte Ltd
竣工年份:2012
建筑基地位于新加坡Buona Vista一个更大的总体规划项目——纬壹科技城之中,这里将建成一个区域中心,为种类多样的城市及文化活动提供场所,并推动创新和创造力。在符合纬壹科技城大胆前景的基础上,最重要的是在建筑设计上响应客户的设计需求,在地标性建筑的外形内整合功能和技术方面的要求。

此外,总体规划在步行的连通性、建筑外围护结构、高度限制、基地地貌保持、关键的基地特色,以及保留/移植重要的成熟树木等方面制定了详细的规划约束条件。
概念素描

自然地势的保留——城市规划指导方针要求保留原始地形的水平高度,并突出某些重要的基地特色。建筑物呼应了水平面高度参差不齐的情况(从+118.50FFL到+111.00FFL),将一层分为两个高度,分别为Level 1(从南部、东南部和西部进入)和Level 2(从北部和东北部进入)。

开放的广场上综合了高度从+111.0FFL到+115.0FFL的各种入口与下车地点,欢迎来自所有主要交通节点的游客。
山顶的高度从+111.00FFL到+118.50FFL,其特色通过一连串的阶梯式露台得到了重现,星宇表演艺术中心的VIP下车处也位于这里。
步行的连通性——一块自然通风的多孔地面板及其核心位置的35米高大型广场向来自地铁系统、纬壹公园及其他未来发展项目的主要人流敞开了怀抱。
市民空间一体化——考虑周到的设计师将非正式的市民空间与建筑地下一层、二层和三层结合起来,创建了几个景观美化的公共区域,在这里可以举行表演、展览、会议及其他公民活动。

设计要求对市民活动区域和文化区域的总建筑面积(GFA)有一定的限制,因而需要对机电系统进行优化布置,尽量将其堆叠摆放,空出更多空间用于更加重要的演出、休息及循环通道空间。
地下层平面:

首层平面图:
二层平面图:

三层平面图:
架空层平面图:
剧院夹层平面图:
剧院层平面图:
星商业文化综合体
零售空间的设计响应了富有挑战性的现场地形,因为该地区向内盘旋,经过主要入口处,最终到达一个开放的圆形剧场。该综合体既能在建筑内部举办丰富多彩的活动,同时也能保持一定的功能性。
斜道图解

立面采用小块玻璃的设计,不但分解了大块体量,还创造了一种正负空间的动态组合以及一种平衡感。南立面完全开放,其设施从外面清晰可见。该建筑成了一个向公众开放、期待他们发现的有机体。人们可以经由一系列复杂的坡道、自动扶梯、阶地和公共花园在综合体内爬下爬上、纵横穿行。所有的循环通道、设备运转及内部形式都是温和而蜿蜒的,就好像其内部是由公民活动发展而来的。
在面向公众开放的零售空间与私营的封闭剧院之间实现了柔和的垂直过渡。这一过渡从视觉上和空间上均与33米高的宏伟大堂联系起来,连接着地下的零售区域和剧院主要大堂的顶部玻璃楼层,并展现出了漂浮在上方的体量。
星宇表演艺术中心
星宇表演艺术中心的市民与公众活动空间是综合体的重中之重,从外观看起来极富表现力。其南立面与The Star Vista购物中心一样对外开放,展示了内部可见部分的设施运营状况。仿佛漂浮的剧院体量在小块玻璃的设计中被分解了,并采用了定制的带状声学底层来包裹剧院,这样有助于分解、割裂上部的体量,在玩味对正负空间的解读的同时,与下方的虚实空间保持平衡。
剧院有超过5000个座位以及两个包厢,是迄今为止新加坡最大的同类型场地,能够上演音乐剧、音乐会及其他大型演出。空心墙系统能挡住来自休息厅和外部环境的噪音与振动。剧院的整体钢结构都以传统的“盒中盒”的设计方法实现。
剖面图:
可持续性
星综合体首先是一种社会建筑物。它的设计目的是通过公开的前院和零售区域为附近居民提供一个活跃的、受人欢迎的社会界面。
一系列具有改善气候效果的户外空间强调自然的空气流动,它们的创建是为了保护游客免遭新加坡热带大雨的洗礼和烈日的烘烤,同时为户外的顾客提供生理降温。
为了避免限制公共空间,也为了不像新加坡许多其他公共场所那样使用空调,建筑的外形经过设计,可收集盛行的从南北两个方向刮来的微风,并使其加速通过室外空间,为顾客营造舒适的户外座位区,让人们能在健康的户外环境中交往。
在建筑上安装了雨篷,可避免人们直接受到暴晒或淋到雨水,并进一步收集微风,控制内部和外部环境之间的视觉对比,提高居住者的舒适度。
本建筑的愿望是成为可持续和被动式节能设计的典范。它以被动式设计的使用为首要原则,成为环境的补充,并与之密切结合。
计算流体动力学是用来优化自然和生理通风效果的,共同为公共空间和循环通道创造了舒适的热度条件,否则这些地方就需要使用空调了。
另外还使用了混合通风策略,最大化实现各区域的舒适条件,这种条件只依靠自然通风是无法达成的。机械辅助蒸发冷却系统采用高容量、低转速的风扇,将它安装在地下市民广场中,可提供户外热舒适度所必需的空气流动,同时避免了机械制冷。
该发展项目的定向利用建筑物理技术实现了最优化。设计师对白天的太阳能得热、眩光和热舒适度都进行了分析。尽量减少东方和西方的曝光率,使太阳能得热最小化。立面的设计、性能和窗墙比都得到了优化处理,以在使用区域最大化利用日光,并进一步控制太阳能得热。
除了上述作为第一设计原则的整体被动式设计,该发展项目也运用了多种策略来降低整体能耗:
具有变频调速和睡眠模式的节能电梯和自动扶梯的特点是能减少能源消耗。
在楼梯和卫生间等公共空间安装运动传感器照明控制装置,可减少照明能耗。
在礼堂的地板内安装置换通风系统,可减少制冷需求和能源消耗,为温度较高的已使用楼层带来清凉的空气。
装有一氧化碳传感器的无导管风扇用于地下室停车场,可最小化系统热阻,并减少能源消耗。
零售空间的开放式设计在空气调节方面具有巨大的节能效果。
目前,本项目在空调系统、空调热泵和冷却塔上分别节约了20%、39.1%和29%的能耗。当下的总体节能水平是,估计比未按照可持续方针设计的项目节省15% 的能耗,据估计约为499千瓦时/平方米/年。这些数据符合BCA绿色标志黄金级认证的要求。
新加坡 Iluma商业综合体
Iluma是由WOHA的建筑师、柏林建筑师和艺术家联合创建的,投资了1.0亿新元,占地近万平方米,商场净出租面积为185,190平方英尺,共120 多家店铺,是一个集娱乐和零售于一体的开发项目。该项目作为新加坡第一个城市娱乐中心,强调表演和展览空间的组合,专门针对20多岁和30岁的年轻人士。
项目坐落在武吉士街区内(Bugis Street),目前艺术、教育及娱乐是这一街区的主要职能。Iluma购物中心60%的面积是娱乐场所,每天能够接待6~8万消费者。其中在五楼有一个电影院,由Filmgarde管理。该商场还包括舞厅,吸引更多喜欢夜生活的年轻顾客。不像新加坡典型的购物商场,Iluma没有设置超市。
项目档案
地理位置:新加坡,维多利亚大街201号
占地面积:8,920.5平方米
建筑面积:26,761.5平方米
竣工时间:2012年
建筑类别:商业建筑
建筑设计:WOHA建筑事务所
土木 &结构工程师: LBW Consultants
机械 &电气工程师: Lincolne Scott Ng Pte Ltd
工料测量师: KPK Quantity Surveyors Pte Ltd
媒体立面设计: Realities United Gmbh
照明顾问: Lighting Planners Associates Inc.
景观顾问: ICN Design International
建筑立面顾问: Arup Fa?ade Engineering
防火顾问: Arup Fire (S) Pte Ltd
声学顾问: Acviron Acoustics Consultants Pte Ltd
主要承包商: Sim Lian Construction Co (Pte) Ltd
造型与立面
Iluma 以其独特的造型和鲜亮的外立面引人注目,红色的线性体块与曲面的非线性造型体块形成了鲜明对比。
线性建筑元素为巨大的矩形体块,其中包纳了停车场、零售店、电影院和演艺空间,它的表面是钢架固定的多孔铝合金板,组合的铝合金板组合为红橙灰三色,明亮的颜色与中空的块体错落的阴影,令人感到快乐并舒适。而曲面造型建筑元素拥有不同体块的层落,内部主要是零售和娱乐空间。在4~6楼伸展出悬空部分形成花园和露台,并种植绿色植物,即符合花园城市空中绿化需求,也增添了更丰富的室内采光。这两种建筑元素之间的交流通过建筑处理得到了强化:充满生气的暖色调赋予了线性体块生机,而曲面非线性体块则以纯净的白色调包裹全身。建筑外表皮和内部颜色纷繁亮丽却不眼花缭乱,无论从哪个角度看去,整个建筑都会给人一种生机勃勃、典雅亲和的感觉。
规模与材质
虽然在造型上是当代风格,但这栋建筑的规模及采用的材质与周边建筑极其协调。彩色的线性元素使人回忆起色彩明亮的公共住宅区,而极具装饰感的曲线形建筑立面对变化多端的体块,细致的纹理以及历史遗留下来的店屋那生机勃勃却又杂乱细致的装饰做了全新的诠释。
结构与功能
Iluma在空间结构上、使用功能上也和周围环境充分结合。设计师希望在顶层创造一个开放的室外空间,一个位于底层的自由活动的室内空间。还有两层空间作为中庭的上面形成一个剧场,这样人们就可以在其中感受到更加丰富的活动。
建筑室内活动围绕中央空间分三层布置,建筑一层与周边街道形成一个连续的路网,方便行人从各个方向进入Iluma。
建筑二层的一座人行天桥作为疏导场所冲出Iluma,跨越街道,延伸到街对面与对面的建筑体形成连廊,连廊顶部装饰著Ilumn内部的黑白灰图案,即指明动向,又将整个项目从内之外的与整体环境形成交流。为了方便顾客和行人,所有通道都通向主厅,并向四周发散。
主厅是一个高 40 m 的中庭,自动扶梯、电梯和每层格局的错落,最大化地避免视觉盲点。动感的黑白灰色块形成的图案使内部充满动感、时尚气息。中庭在水平方向被分割成上下两个体量,每个体量都有各自的特色,从视觉上依靠图案将之关联。分割两个空间的是一个城市广场,高出街道20m,上面有酒吧,游戏,电影院和餐厅。大厅下半部分主要用于小规模的专卖零售,而上半部分则用于各种娱乐活动。
第三个主要空间是屋顶剧场和活动空间,它拥有大片 露天葱翠的植被,屋顶平台和咖啡厅都在这儿,你可以同时欣赏到地中海和巴厘岛风情表演。屋顶平台中央有一个玻璃天窗,透过天窗向下可以看到中庭,在中庭向上可以看到植被屋顶。
设计亮点——水晶网媒体墙
为了凸显Iluma是新加坡首个最炫目耀眼的购物、文化艺术和娱乐中心,特邀德国 Realities United艺术与建筑工作室的Tim Edler和Jan Edler两兄弟,联手设计建筑体的外观。Realities United旨在通过新媒质或技术咨询来支持建筑解决方案,他们相信无论功能或者外观,通过媒质的增加或者改变,能够带来更多的信息,体现媒质价值,并实现交流。在建筑领域专注于不同方向的设计师们密切合作,最终决定选用水晶网,将之巧妙地应用于建筑的外观:撷取水晶织网为设计概念,棋盘式、模数化排列样式的形成,利用多媒体技术与LED 照明设备,让像结晶体的静止建筑立面变换到动态艺术表演,打造活力的光彩,该技术有望使Iluma在未来15年都能够持续作为最具优势及竞争力的醒目地标性建筑。
六边形立体水晶织网的面积超过5000㎡,是由3000个耐冲击的聚碳酸酯纤维材质的模块壳体组成;约有1900安装了多媒体设施;LED设施作为照明配合,6069个壳体内嵌可独立控制的 36W 萤光灯管,双重光源交互运用,经由多媒体控制系统将程式传送照明设备的驱动器上,可控的光源穿透壳体就像闪耀的水晶闪闪发亮,形成一个模数式组织编排的水晶织网。水晶媒体墙立面被建筑师处理成堆叠的、波浪起伏的条带,或重叠,或退让。根据主体需要,商场建筑外体呈现不同的色彩和造型,完全成为夜里具有主题性的视觉焦点,同时具有高科技功能感,并创造一个超大媒体屏幕的形象。
在正面媒体艺术家可以展示他们的作品,打造了一个充满活力的夜生活区的设想,以及在熙熙攘攘的邻里地区里更加增强Iluma 的可见性。艺术机构已经参与正在进行的策划和奖励计划,为给水晶媒体墙立面增添活力创造素材。持续进行的一系列展览活动将展示当地艺术和建筑作品,以及设计专业学生的作品。
总平面图
首层平面图
二层平面图
剖面图
新加坡克拉码头Clarke Quay
建筑师事务所: Sparch Architects
总建筑面积: 34000平米
项目地址: 新加坡河与里巴巴利路(RiverVally)
上世纪90年代新加坡旅游委员会(STB)提出了新亚洲新加坡口号,新加坡河滨河地区就属于11处城市地段之一,计划改造成主题旅游区。改造范围包括3km的河道以及滨河区,由驳船码头,克拉克码头和罗伯逊码头三部分组成。
克拉码头位于新加坡河的上游,地理位置优越,过去曾经是二手商店和跳蚤市场的聚集地。街区改造把60多个仓库和商店改建成200多家餐馆酒吧商店和娱乐场所。既保留原有的市场功能,还系统地添加了餐饮,娱乐,购物等功能,活化了所在街区,多元化的体系为周边地区带来了新的活力和经济效益。
一些具有较高历史和文化价值的传统建筑被保留下来,以强化历史记忆和地方特征。传统店屋、仓库等历史建筑内部通过功能置换,被改造成商店、餐厅、酒吧、旅馆、高档住宅等,以适应商业和旅游发展的需要。驳船码头、克拉克码头、罗伯逊码头三个码头区分别被赋予餐饮休闲、节日市场、酒店和高尚居住三种不同特征的功能区段,并实现分区发展。改造提供大约20%的居住功能和80%的商业功能. 游客所占的分量低于20%;滨河地区大部分商业设施(63.6%)的消费主体是新加坡市民.一定程度上避免了旅游季节性的负面影响,保证历史地段经济发展的可持续性。
在改造中,以河道形成的线性空间作为公共活动的轴线,整合沿岸各个空间节点。新加坡河两岸分别设置了15m宽的连续人行步道,串联沿线的各种功能和旅游吸引物。为适应当地的湿热气候,在滨水建筑的首层设置连续的“有顶人行道“(covered walkway)。在人流较多的驳船码头和克拉克码头,人行步道主要以室外家具的设置分割活动的区域,为人们提供更多的活动空间;而在人流较少的罗伯逊码头,通过适当的绿化地带,塑造安静、私密的空间氛围,与周边的酒店和居住功能相适应。
克拉克码头由五座有超过60间仓库,ADE区域以新加坡著名餐厅\咖啡店为主,BC区域以购物\娱乐中心为主.这里有特产,工艺品和各种时装以及电子游戏中心。
节能技术
(ETFE)乙烯-四氟乙烯共聚物膜作为结晶性高聚物化学性能稳定,电绝缘性和耐辐照性能好。ETFE薄膜的实际使用始于上世纪90年代,主要作为农业温室的覆蓋材料、各种异型建筑物的篷膜材料,如运动场看台、建筑锥型顶、娱乐场、娱乐厅篷盖、停车场、展览馆和博物馆等. 其特有抗粘著表面使其具有高抗污,易清洗的特点。通常雨水即可清除主要污垢。
ETFE膜使用寿命至少为25-35年,是用于永久性多层可移动屋顶结构的理想材料。该膜材料多用于跨距为4米的两层或三层充气支撑结构,ETFE膜达到B1、DIN4102防火等级标准,燃烧时也不会滴落。且该膜质量很轻,每平方米只有0.15-0.35公斤。这种特点使其即使在由于烟、火引起的膜融化情况下也具有相当的优势。根据位置和表面印刷的情况,ETFE膜的透光率可高达95%。该材料不阻挡紫外线等光的透射,以保证建筑内部自然光线。通过表面印刷,该材料的半透明度可进一步降低到50%。
新加坡乌节中央城Orchard central
乌节中央城(Orchard Central)是新加坡最高的垂直型购物商场,4台在外立面上的通天梯把人流拉向12层上的屋顶花园,其购物空间设计独特之处在于整个建筑构思以玻璃为中心,使之空间更具透明度, 并让顾客有宾至如归的感觉。
该购物中心楼层多、单层面积小,因而采用了大量跨层电梯和将停车场设置在中间楼层的方式来弥补该项目的不足。
其布局特点如下:1、该项目设有三组大型跨层电梯,可以覆蓋各个主要楼层,并让客人在最短的时间内快速到达顶楼花园餐厅。2、项目规划了大型停车场,并将停车场设置在中间楼层。
通天梯
作为新加坡最高的垂直型商场,乌节中央城其设计出彩之处在于整个建筑架构以玻璃为中心,在内部的雕琢也非常巧妙,将艺术气息发挥到了极致。乌节中央城被宣传为时尚人士的购物天堂,商品从时装到食品,从德国的时尚用品到其他专卖店无所不包。这里拥有新加坡首个地中海风格的市场,这是区分它与其他商业竞争对手的一个亮点。该商场划分成诸如休闲、时尚、活跃的生活方式和食品等不同独立的区域。
在B2和L3-L4层有大量的面向年轻人的精品服饰店。此外,大众书局在乌节中央城新开的Urban Write,引进日韩台及欧美新式文具,满足追求生活品味的都市人的需求。此外,orchard central的Via Ferrata 室内攀岩墙,是世界上最高的室内攀岩墙,由新加坡攀岩探险公司“BorderX”引进并建造的这面攀岩墙高30米,共有5层楼高,让城市攀爬狂能爬到购物中心的最高点。
10楼艺术中心由The RICE Company Limited经营管理,提供的艺术培训课程涵盖视觉艺术(绘画)和表演艺术(戏剧、音乐和舞蹈)。《商业时报》的“新进艺术家基金”(Budding Artists Fund)将协助来自低收入家庭的年轻学员支付学费。艺术中心的场地是由房地产发展商远东机构免费提供,使用年限为10年,装修费也由该机构承担。中心每年能为500名青少年提供培训课程。
屋顶花园
停车场分布在L9-L10的全部、L5-L8的部分;装饰也非常注重细节,围墙等都做了处理,更加赏心悦目。
如果觉得我的文章对您有用,请随意打赏。你的支持将鼓励我继续创作!