在新加坡有一套房对大部分人来说其实不难
相比于国内被“炒上天”的房价
新加坡算是十分亲民了!
毕竟无论从宜居程度还是硬件设施
可都是世界一流的级别
性价比可想而知~
而且新加坡“居者有其屋”的组屋政策
更是让大家在新加坡轻松有“家”
不过,有房只是生活的基础保障
并不能保证生活品质!
而真正过上高品质生活的人
大部分都集中在新加坡最繁华的市中心地段
不仅彰显身份
还能享受新加坡最好的各类设施
所以,住在市中心究竟是怎样的体验呢?
一起来提前感受下吧!

住在市中心是不必担心“交通”问题滴
四通八达的交通网几乎都是从市中心“发散”出去的
所以,真的就是想去哪就去哪
不用担心去某个地方要转很多趟车
且很多地铁线路均交汇于此
真心方便!

新加坡最繁华的购物商圈——乌节路购物区
是多少新加坡女孩做梦都想扎根的地儿啊
只要一到这里,身体就像安上磁条一样
越逛越精神
而且,不逛到打烊绝不说stop!
但是!
如果住的稍微远一些的朋友
傍晚回家又是一大麻烦事儿
车少,耗时长,还不安全!
然而...
住在附近的朋友
逛完街散个步就能到家~(傲娇脸)
这么一对比,是不是充满了羡慕...

住在新加坡市中心
除了交通和购物便利外
当然还得为下一代考虑最重要的“教育”氛围了
毕竟是市中心!代表着新加坡的门面
当然周边设施什么都是“最好”的,包括教育!
这里拥有新加坡顶级学府
而住在附近不仅能拥有更多入学机会
还能走进新加坡顶尖教育圈
让自己的孩子赢在起跑线~

当然,除了以上三大亮点
在周边环境、医疗设施、视野等方面
都是新加坡顶级享受!
看完是不是心痒痒~
毕竟条件这么好,市中心的房子可谓是炙手可热
无论从投资角度还是自用角度
都是相当好的购房选择
所以,种草需早,购房得快!
今儿小编就给大家安利两处性价比超高的房产!
小本本准备好了吗!

01

Sky Everton
中央丹戎巴葛区
下拉详情
Sky Everton是新加坡中央丹戎巴葛区高档公寓项目
位于新加坡的中央区第12区的丹戎巴葛区(Tanjong Pagar)
毗邻新加坡中央商区
所处的地段是由Sustained Land带领的财团在2018年集体出售时成功收购
建造的永久产权项目
预计于2023年9月完工

Sky Everton总占地面积约6694.5㎡
容积率为2.8
由1栋36层的高楼组成
共有262个住宅单位
户型包括一居室、两居室、三居室、四居室以及顶层阁楼
建筑面积介于43—207㎡
Sky Everton 的位置优越,距离欧南园地铁转换站(Outram Park MRT)约600米,该地铁站目前营运的是东西线(MRT East West Line)和东北线(MRT North East Line),汤申-东海岸地铁线(Thomson-East Coast MRT)即将在2021年通车。
驾车人士可以通过靠近滨海高速公路(MCE)、中央高速公路(CTE)和亚逸拉惹高速公路(AYE),便捷到达岛上任意地方。
地铁站
Outram Park (EW16/NE3/TE17)– 0.6km
Cantonment (CC31) – 0.4km(2025年完工)
公交站
Blk 3– 0.2km
Opp New Bridge Rd Ter – 0.2km
Sky Everton距离牛车水(Chinatown)非常近,这里有多家商场,并且汇集了各类美食。
商场
100AM – 0.6km
Icon Village – 0.7km
Oriental Plaza – 0.7km
Tanjong Pagar Xchange – 0.8km
Lucky Chinatown – 1.0km
People’s Park Complex – 1.0km
People’s Park Centre – 1.2km
Chinatown Point – 1.2km
俱乐部
Singapore Mariners Club– 0.3km
Home TeamNS – 1.0km
周边学校
幼儿园:
PCF SPARKLETOTS PRESCHOOL @ TANJONG PAGAR-TIONG BAHRU Blk 1E – 0.3km
CS Montessori Kindergarten– 1.0km
Artskidz Preschool – 1.1km
Chinese Kindergarten – 1.1km
小学:
康达小学 – 0.2km
圣婴女子小学(客落)– 1.2km
拉丁马士小学– 1.6km
彰德小学 – 1.6km
中学:
欧南中学 – 1.1km
圣婴德兰女子中学– 1.8km
大学&大专:
Duke-NUS Graduate Medical School Singapore – 0.7km
Marketing Institute of Singapore – 0.9km
Nanyang Institute of Management – 1.7km
PSB Academy Campus @ Delta – 1.8km
国际学校:
Shelton College International – 2.0km
Sky Everton建造了一套完善的配套设施,6层以上为居民区,1—4层及地下室为立体停车场。
5层、14层、24层以及顶层分别建有不同主题的花园、健身房、游泳池、宴会厅等为住户提供了运动健身、休闲娱乐的场所。
左滑有惊喜

一居室
建筑面积:43—55㎡/463—592 sqft
售价:S$1,140,000起/约¥576万起
一居室+书房
建筑面积:43—55㎡/506—635 sqft
售价:S$1,210,000起/约¥611万起
左滑查看户型
两居室
建筑面积:60—75㎡/646—807 sqft
售价:S$1,560,000起/约¥788万起
两居室+书房
建筑面积:61—87㎡/657—840 sqft
售价:S$1,660,000起/约¥838万起
左滑查看户型
三居室
建筑面积:85—99㎡/915—1066 sqft
售价:S$2,300,000起/约¥1162万起
三居室+书房(私人电梯)
建筑面积:89㎡/958 sqft
售价:S$2,360,000起/约¥1192万起
左滑查看户型
四居室(私人电梯)
建筑面积:125㎡/1345 sqft
售价:S$3,660,000起/约¥1848万起

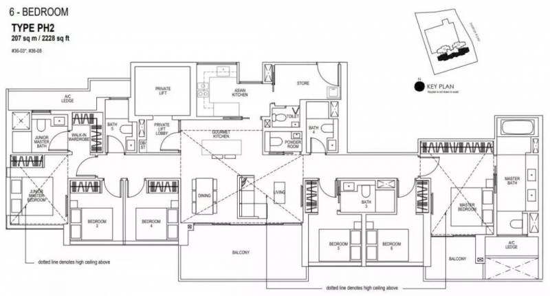
顶层阁楼(私人电梯)
建筑面积:169—207㎡/1819—2228sqft
售价:S$5,660,000起/约¥2859万起


以上售价均为实时价格,供客户参考
左滑查看更多
左滑查看更多
02

HAUS ON HANDY
新加坡第九区
下拉详情
HAUS ON HANDY这个项目的建立备受大家的喜爱与追捧
主要原因之一就是HAUS ON HANDY位于新加坡的第九区
第九区是新加坡的投资者们及居民们
评价为黄金地区和象征身份的高级区域
能在这个区域拥有一套房子
是众多新加坡人都梦寐以求的事情
而第九区邻近乌节路购物区了
繁华热闹,是新加坡最富裕的地区之一
HAUS ON HANDY坐落于乌节路购物区
房产内装规划自一个卧室单元450-570平方尺起
至三个卧室单元房980平方尺
共计有188间

HAUS ON HANDY位于三条地铁线交汇的地方,和新加坡避风港地区相连,起到了连接黄金地段的作用,到滨海湾金融区、乌节路购物区、中央商务区也都只有几分钟的车程。

除了购物区以外,HAUS ON HANDY距离顶级学校也是非常近的,如圣马加利英文中小学、SOTA等优秀的学府,人文风气浓郁,自然对于人才的培育来说更具有优势。

这个房产项目的单个住宅内部区域面积是很大的,空间结构也十分合理,设计合理,住户入住之后能得到极佳的居住体验。

一房

一房+书房

两房
两房+书房

三房

HAUS ON HANDY规划了丰富的共同设施,如顶楼露台设有沙发,由上往下俯瞰,新加坡河的夜景与车灯相映成趣;户外泳池、健身房,在自家即可享有运动的乐趣;设计出众的交谊厅空间,更可供来访宾客休憩,或作为短暂会议使用;而精致小酒吧与餐厅,则是别有韶味。这里是完美的居住空间,设计师不仅将空间运用得淋漓尽致,更具有生活的品味。

出入大厅备有专人接待来访宾客,预约计程车或安排其他大众运输,健身房亦有服务,另外也有脚踏车的承租服务;最特别的是私人服务中心,能客制预约餐点及厨师服务,或是宠物护理、个人美容,你所想的到的,这里一应具全。

在一至两房的配置中,设有带门的洗干衣机,以及内嵌式的壁挂式电视,让居家空间与收纳一体成形;衣柜采木纹、色泽饱和,备滑动式衣轨等,所有的居住细节都设想周到。

建筑物内部融合了绿色植物,注重光影的剪裁,而乌节路购物圈,未来也即将增加绿化公园区段,不仅维持原本交通及购物商圈的便利优势,更让居住空间变的宜人,减少了喧嚣之感。

HAUS ON HANDY的各种户型参考价格如下,
一个卧室单元 价格 $130万 起
二个卧室单元 价格 $178万 起
三个卧室单元 价格 $260万 起
特约房产作者-李娜Lina

高级市场营销董事(Senior Marketing Director )
主营业务:商业,豪宅和投资
HP:+65 8720 4343 / 9653 3422
EMAIL: [email protected]
个人简介
特约新加坡房地产顾问:李娜,毕业于新加坡,专注房地产投资多年年,善长数据分析和投资。我乐意为您分享更多新加坡房地产投资经验和心得。目前就职于新加坡最大的房产公司ERA 的市场营销董事一职,对房地产事业非常热爱,了解和熟悉新加坡房地产的销售和交易流程,交易过上千种买卖,深受顾客好评。
欢迎扫描二维码
或添加我的微信ID: 564353899.
或拨打电话:96533422/87204343

新加坡地产上市公司 ERA集团
作为一名ERA团队精英,诚信待人,以多年新加坡投资经验给您提供行业高水准的房地产一站式服务,业务包括新楼盘投资,豪宅买卖,投资建议和财务分析等
如果觉得我的文章对您有用,请随意打赏。你的支持将鼓励我继续创作!