
大家五月好,群众们喜闻乐见的促销活动又来了!
这次打折的楼盘,是一处超过700户的大型公寓楼盘,位于新加坡东部,距离丹那美拉地铁站仅仅180米距离,属于货真价实的地铁房。
这处地铁楼盘的名称,就是Grandeur Park Residences (豪佳苑)。
广告截止四月,豪佳苑已经卖出了94%的单位,一卧到三卧户型售罄,还有最后34套四卧和五卧大户型单位待售。
针对这34套大户型单位,发展商推出了让利促销活动,售价直降30000元。机会难得,寻找大户型公寓自住的买家,可以特别留意一下。
折后价位,标准四卧户型172万起,优质四卧户型184万起,五卧户型(含私人电梯)205万起。
下面的篇幅里,我会全方位介绍这个楼盘,供大家参考。


位于新加坡东部第16邮区的豪佳苑公寓,拥有99年地契,占地两万四千平米,发展商是本地上市公司CEL Development。楼盘设计兴建720套住宅单位,一个幼儿园和2间商铺,预计于2021年第一季度之前完工。
豪佳苑的具体位置,位于丹那美拉(Tanah Merah)地铁站斜对面。
广告公寓门外建造有盖走廊,直接连接地铁站入口。

从丹那美拉地铁站出发,仅仅一站地铁到达新加坡博览中心(Expo),两站地铁到达樟宜机场。
博览中心常年举办各种大型活动,本地朋友们都知道。樟宜机场更是一处拥有三百多间店面的综合购物中心,集奢侈品牌专卖店,餐饮零售和休闲娱乐于一体。这两处都是家庭周末吃喝玩乐,休闲采购的好去处。
同样两站地铁,5分钟即可到达淡滨尼地铁站,这里也是新加坡大力发展的东部区域中心,拥有Tampines Mall商场,CenturySquare商场,区域大型图书馆等设施。
从丹那美拉地铁站往市中心方向出行,9站地铁,20分钟即可直达市区CBD。

对于有学龄孩子的家庭来说,淡马锡小学和务德小学都位于豪佳苑公寓一公里距离内。
广告
周末开车出行的话,去东海岸公园很近。

豪佳苑属于大型楼盘,整体兴建了六栋小高层建筑,楼高介于14层和15层之间,总共720个公寓单位,户型从一卧到五卧不等。
占地2.4公顷的小区内,公寓设施数量庞大,总计超过90种,在新加坡的公寓市场也算是很罕见了。
50米无边际泳池,网球场,波浪池,山顶水疗池,慢跑小径,游戏室,影剧院,香料园,专门为儿童设计的森林探索乐园,儿童健身房,探索花园等等,多种多样,应有尽有。
小区内配备幼儿园和日用品零售商铺,为居民家庭解除了后顾之忧。
智能家居设计,以及SMEG,ROCA等精品厨卫品牌的使用,进一步提升了屋主的居住体验。
下面多图放送,各种公寓设施以及样板房照片。
广告



广告



豪佳苑一卧到三卧的户型已经售罄,四卧和五卧大户型单位还有最后34间。
下图的标准四卧户型,四室一厅三卫+家庭室(可用作书房或工人房),面积105平米(1130平方尺),2楼售价172万2千,最后一间。
广告
下图的优质四卧户型,四室一厅四卫+家庭室(可用作书房或工人房),主卧比较大,面积115平米(1238平方尺),2楼售价187万8千,扣掉三万新币折扣价钱184万8千。

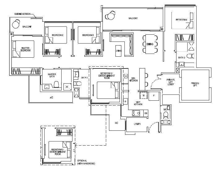
下图的五卧+工人房户型,私人电梯入户,厨房干湿分区,面积135平米(1453平方尺),3楼售价208万4千,扣掉三万新币折扣价钱205万4千。

文章的最后总结一下:
豪佳苑属于大型地铁住宅楼盘,交通便利,生活方便,小区面积大,公寓设施众多,适合家庭自住。
豪佳苑的建成时间预计会在2020年底或者2021年初,不过这个盘的销售速度快过建设速度,估计近期就会100%售罄。
如果觉得我的文章对您有用,请随意打赏。你的支持将鼓励我继续创作!