休假期间整理屋子,想到今年就是我们入住这间4房式组屋的第5年了!翻出当时的设计图,还是很庆幸那时的选择。
记得5年前拿到钥匙时,我刚怀孕。所以装修的目的很明确,总的来说就是:实用,易打扫,有延展性。
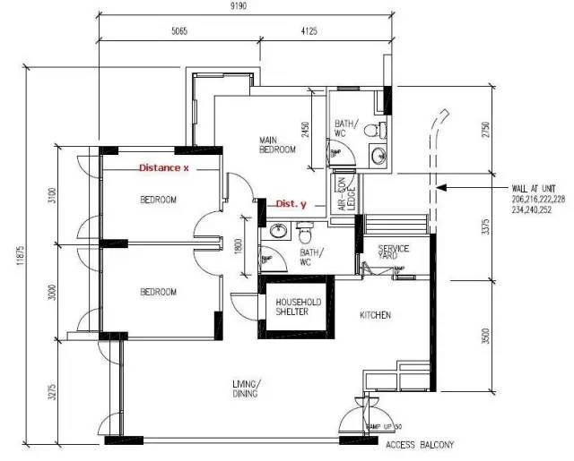
房型是近几年很典型的4-roompremium flat的样子,地砖墙砖已铺,厕所大,有飘窗,卧室小。
(原始平面图)
广告
几家比较和沟通后,选择了Starry Homestead。因为设计满足了我们的预设需求点:
增即减,减即增
从下移至上
用不规则划分空间
(设计平面图)

>>>>
先说”增即减,减即增“:
主要是指我们的玄关和主卧设计。
玄关需求:
1)因为老公拜观音,所以我们需要神台;
2)老公很喜欢吃零食,需要橱柜;
3)为了打扫容易,必须要有鞋柜和零碎的收纳处。
通过和StarryHomestead设计师讨论,在玄关处连接厨房处做一个多功能玄关柜(如下图)。看着是占了地方,但实际上是除了解决以上所有需求外,还“借柜立墙”划分出厨房区域。之后就安装了灵活的PDdoor,既保留了厨房至厅的动线又随时可以成为封闭式,作为华人就不用担心油烟了!
(2012年设计图)
广告
(2012年刚装修好时的照片)

主卧需求:
1)老公是一定要有电视的;
2)他也需要架子放些平日使用的零钱等小物;
3)我需要展示和储物柜,用来放置这些年来的纪念品;
4)含有全身镜的衣柜
5)我还有个私心,就是尽量避免暗处角落,活动空间要大,方便打扫。
房间不大,要求不少。幸得最后的方案简直是神来一笔,完美周全!看似占了更多面积的迷你步入式衣柜,却正好解决电视墙、展示收纳柜和穿衣镜的需求!于是整个卧室功能齐全,真的是最大程度的拥有活动空间,保留完整动线,方便日常打扫…现在家里住的人多,这些真的太重要了!
(2012年设计图)

广告
>>>>
再来是”从下移至上“:
一般卫浴的储物都是在洗手台的下方。可是我们家全部设计成在上方。
原因即优点是:
1、避免底部受潮,可以随便冲刷卫生间地板;
2、不用弯腰曲背找东西;
3、墙面空间大,家里所有洗漱用品,可以放在储物柜里;
4、柜子的门上按镜子,一物多用
5、由于日常物品都可以放在上面的柜子里,所以洗手台面整洁易清理(嗯,我小孩子手闲,有娃必懂)。
厕所是最容易出现问题的部分,但使用了4年多,它依旧如初,实用性的设计也让我们使用起来也省了不少麻烦。
(2012年设计图)

(2012年厕所刚装修好时的照片)

(2017年现状照片)
广告
>>>>
最后回到入门即视的厅——“用不规则划分空间”:
说起吊顶,十有八九就是四周一圈并加桶灯。可4房式组屋厅真的不大而且层高也就2.8米,我们要的是减少大灯的使用和区分空间!设计师因需提出了Z型吊顶配槽灯方案:立马视觉上就区分了餐厅和客厅。
(2012年设计图)

(2012年刚装修好时照片)

从5年前刚拿到钥匙只住了我和老公的房子,到现在已经有两个小孩且父母常会来常住的家,我想我这里写的装修心得不是想说当时有多时髦好看,而是想表达真正用心的设计是应该经得起时间的推敲和需求变化的!
如果觉得我的文章对您有用,请随意打赏。你的支持将鼓励我继续创作!