
欧美建筑不同于其它地区建筑,独特的历史文化都会影响建筑色彩,每个细节的差距都是非常关键的。建筑网小编就欧美建筑和大家介绍一下。欧式风格强调以华丽的装饰、浓烈的色彩、精美的造型达到雍容华贵的装饰效果。具体内容如下:
欧美建筑基本包括哥特式建筑,巴洛克建筑,法国古典主义建筑,古罗马建筑,古典复兴建筑,罗曼建筑,文艺复兴,浪漫主义,折衷主义。喷泉、罗马柱、雕塑、尖塔、八角房这些都是欧式建筑的典型标志。
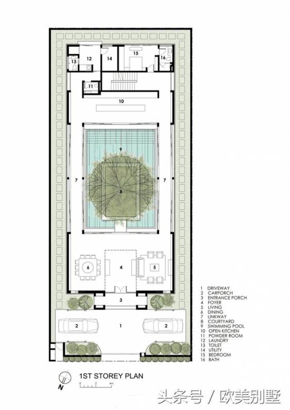
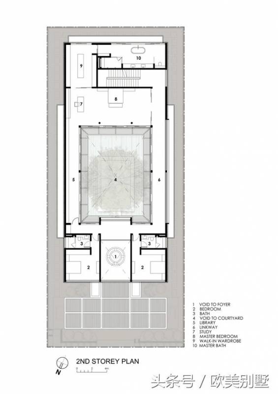
百年树屋是由花墙建筑 + 设计创建的, 它坐落在新加坡的东海岸大道。这所房子是一个令人兴奋的当代家, 设有中央庭院, 带来了大量的光线和空气。该住宅占地面积8400平方尺, 并于2012年完工。主人想要外部空白墙壁。然后继续讨论固定屏幕。中心庭院为光和空气。这些都是为他们总结出来的, 是理想家园的有形层面, 是孤独的保护外壳。这种保护屏障为那些在自我反省和沉思中茁壮成长的房主创造了积极的能量。这种力量是视觉上的表达由100岁的老花树字面上发现内, 中心在一个大的庭院周围的水。这棵树被赋予了新的生命, 从荷兰的一个道路遗址中解救出来, 以寻求新的发展。

内化意向的纯度导致三侧建筑海拔的纯度;没有院子, 开放, 房子的后面, 而是一个鹅卵石的路径在一个有节奏的木材屏幕和郁郁葱葱的 墙之间。这棵树被赋予了新的生命, 从荷兰的一个道路遗址中解救出来, 以寻求新的发展。视觉上, 美学在生理和心理上都不存在, 但在第一层外围的木材屏幕允许微风梳理, 刷新遮蔽的走廊和居住空间。
























如果觉得我的文章对您有用,请随意打赏。你的支持将鼓励我继续创作!