
项目亮点:
(1) 低入场价格,1房只需58.7万起,2房76.6万起,三房108万起,12xx/每平方英尺,大户型的价格11xx/平方英尺 ,预计很可能是今年开盘最低的楼盘
(2) 名校圣婴小学HoLy Innocents’ Primary在一公里内
(3) 大部分单位可以享受漂亮的河景朝向或游泳池朝向 (参考下面小区图片放送)
(4) 新加坡著名的多次获得建筑设计奖的ADDP Architects LLP公司打造
(5) 约10分钟步行距离就可到达后港地铁站/Hougang MRT,小区提供巴士服务
(6) 户型设计方正,实用为主,利用率高,无浪费的面积等
(7) 高达101项公寓配套设施,比一般公寓多好多公寓设施
(8) 跟着现在科技潮流走起来,所有单位采用智能家居系统Smart Home System
(9) 第一年提供免费短程巴士直达后港地铁站,生活交通便利
项目基本信息:
Riverfront Residence 是今年推出的刚需盘, 由新加坡发展商豪利控股等四个公司一起联合开发,占地面积高达36, 810平方米,小区总共有1472户单位, 由9栋17层的小高层,21栋别墅还有6个店铺组成, 预计交房时间为2022年.
该项目由新加坡著名的设计公司ADDP公司打造,ADDP设计公司也是杰克君所喜欢的,小区多达101项公寓配套设施,相比一般的公寓是50项配套设施是数量直接翻倍了,有没有很爽哦。设计师打造为三个主题区,Botanic Cove, Mangrove Resort Cove和River Lifestyle Cove,其中Mangrove Resort Cove区的公寓会所有大餐厅,还有KTV/家庭影院,中央大泳池。River Lifestyle Cove区有长达75米的大泳池。除了三个主题区,还有三个不同主题的公寓会所和五个不同主题的户外花园,400米的散步跑道,网球场和一个篮球场等等。(设施实在太多就不一一介绍了)
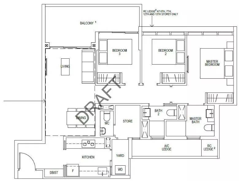
上平面图

参考价格
参考价格:预计是2018年楼盘里价格最低总价的,超有吸引力的进场价格
一房只需58.7万起,1+书房价格67.6万起,2房价格76.6万起,3房108.1万起,4房170.1万起 (以看房时价格为准,发展商保留调整价格权利)
地理位置介绍
项目位于后港7道,从Riverfront项目步行到后港地铁约10分钟。由于靠近实龙岗水道(Sugei Serangoon),加建筑设计公司考虑周到的设计,大部分单位可以享受无阻挡的漂亮河景(在新加坡河景房属于罕见的),实龙岗水道边上就有公园通道,适合喜欢健身锻炼的朋友,一般跑步健身一边享受河流景观。周围有很多著名小学如圣婴小学,CHIJ女校,榜鹅小学(Punggol Primary School)等。
教育方面
名校圣婴小学HoLy Innocents’ Primary在一公里内,还有CHIJ Our Lady Of The Nativity,榜鹅小学/Punggol Primary School,全面满足您小孩入学方面需求。

生活配套/交通方面
靠近位于后港的Hougang Mall,高文的Heartland Mall,实龙岗的Nex Mall(东北部最大的商场),后港高文一带属于成熟的住宅区,生活极为便利。 喜欢美食的朋友可以去实龙岗花园一带的忠忠熟食中心/Chomp Chomp Food Centre,或去高文一带吃四川火锅,麻辣香锅,鸡公煲,榜鹅椰浆饭,后港还有特色的泰国餐,物美价廉哦.
实龙岗地铁是转换线,有环线地铁黄线和东北线,方便到达全岛各地。
驾车朋友通过高速KPE可以直达中央商业区CBD只需18分钟左右,通过TPE高速到樟宜机场/樟宜商业区约15分钟。
户型分布图:

3房样板房照片:
户型图介绍:
1房户型,43平方米/ 463平方英尺,适合单身人士和年轻的情侣住,价格只需58.7万起

1+书房户型,48平方米/ 517平方英尺, 带一个书房,适合单身人士和年轻的情侣住

2房普通型,57平方米/ 614平方英尺,可以改成封闭式厨房,2房价格76.6万起
2房豪华型,68平方米/ 721平方英尺,可以改成受国人喜欢的封闭式厨房,房间都可放置双人床

3房普通型,85平方米/ 915平方英尺,还有一种81平方米的户型,适合小家庭。
还有一种81平方米/872平方英尺户型,价格为108.1万起

3房豪华型,106平方米/1109平方英尺,配大阳台享受漂亮河景或者小区泳池景,每个房间都够大可以放双人床,主人房就更不用说了

小区精美图片大放送,让您大饱眼福!





分析发展商的定价策略
预计发展商的策略是会以很吸引人的价格$12xx/平方英尺抢占市场,以价格直接回馈买家,先卖个几百套单位,以后再慢慢调整价格。由于发展商在2017年拿了太多地,希望以成本价卖出部分单位以方便资金回流。这样对于刚需买房或者投资客是个好消息哦,以相对较低的价格入场。不管买房是自住还是投资,只要入场价格合理,就可以大胆进场买入。
对比其他项目分析
今年3月份热卖的淡滨尼项目Tapestry以均价$1387/平方英尺卖出445个单位,距离最近的地铁站Tampines West约1.5公里。在西部武吉巴督的项目心乐轩 Le Quest在去年8月份开盘以$1280/平方英尺卖出280间,在今年第二次开盘以均价约$1380/平方英尺卖出70间,该项目离地铁约2公里哦,今年5月份Twin Vew开盘第一天的以均价$1399/平方英尺卖出整个项目92%,现在剩余单位不多。还来说说位于盛港西Parc Botannia已卖出的单位均价约$1312/平方英尺,现在的价格1350~1380/平方英尺,需要坐轻轨4个站才可以到盛港地铁,相比Riverfront 可以直接步行到后港地铁,后港相比盛港更靠近市区,地理位置和价格都胜出,可见Riverfront的高性价比.

参考下面图片,今年有块执行共管公寓的地已经被开发商标出,在靠近新加坡最北端的榜鹅,需坐几站轻轨才可以到地铁站,预计开盘价格是12xx~13xx/平方英尺,注意是执行共管公寓哦,限制条件多,要新加坡人才可以买,收入不可以超过14000/月,购买者名下不可以有私人住宅等等。现在Riverfront价格12xx/英尺,大户型的价格甚至只需11xx/英尺,这样价格哪里找。没有什么限制,地点还更好些哦,贷款这块相比执行共管公寓更容易。

最后来个投资小贴士:
现在名下有组屋的屋主,需要想办法在自己年轻时从组屋提升到公寓,政府一直不断强调组屋是来自住的。如果要投资的话,还是要学会在年轻时提升到买公寓,相当于给您自己以后养老时留了一个资产,或者是帮您储蓄。随着年龄增加,由于贷款年限缩短,贷款数目减少,难度会相应增大。要如何提升买公寓?组屋是该保留还是卖掉?如何合理避开额外印花税?
若您对新加坡任何房产感兴趣,请免费咨询我们的特约房产经纪人张琼/Linda,开发商直接代理销售团队,买公寓无任何中介费用,协助客户办理买房银行贷款,买房产业托管一条龙服务。
如果您喜欢这边文章,请分享在你的朋友圈或转发您需要的朋友,谢谢!
微信号:zhangqiong046456 电话:65-93397258
如果觉得我的文章对您有用,请随意打赏。你的支持将鼓励我继续创作!